Ivybridge, Devon
JU

Ivybridge, Devon

By Julian Marks

£ 475,000

Reviews

3 out of 5 stars

Julian Marks says ..

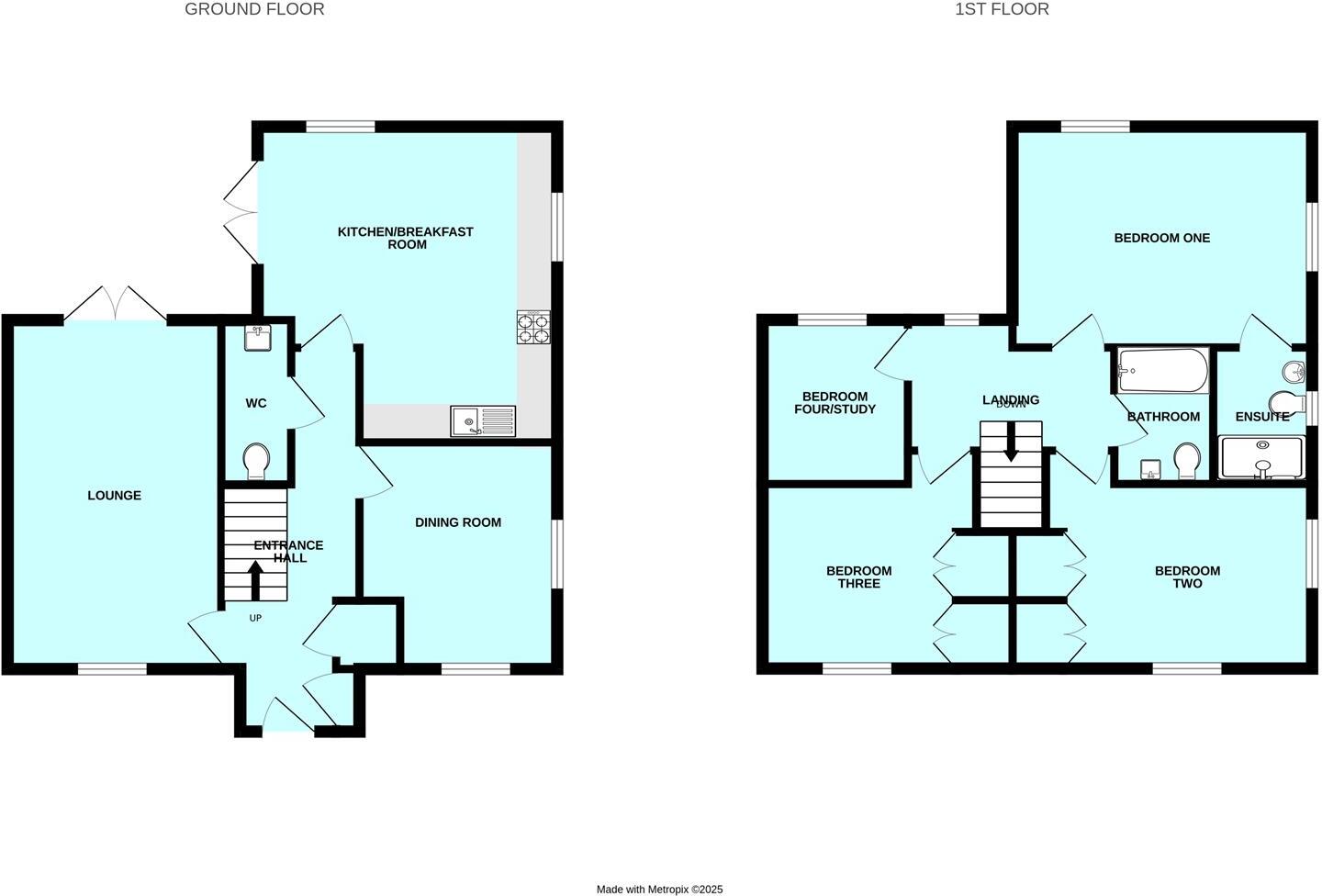
Elegant, detached red-brick property situated in a quiet street within the historic town of Ivybridge. In immaculate condition throughout it briefly comprises an entrance hall & downstairs wc, lounge, separate dining room & a spacious kitchen/breakfast room whilst upstairs there are 4 generous be...

Property Oracle says ..

This is a detached property located in Ivybridge, Devon. The property has 4 bedrooms and 2 bathrooms. The property is in good condition and has a modern kitchen and bathrooms. The property has a small garden and a garage. The property is located close to schools and transportation. The property is listed for £475,000, which is higher than the average price for a detached property in the area, but the property is smaller than average.

Therefore, we give this property 7 / 10. *Disclaimer: This is our option and does constitute a recommendation or financial advice. Do your own research. *

Price
6
Condition
9
Location
7
Land
6
Bedrooms
4
Bathrooms
2
Sqft (est)
595.00

The heatmap indicates the level of crime in the area. The color of the heatmap indicates the crime severity and recency.

Metrics Year-on-Year

Average area value
216,225.00 £
Decreased by 4.32 %
from 225,977.00 £
Est sale value
155,890.00 £
Increased by 37.89 %
from 113,050.00 £
Average area rental value
863.00 £/mo
Decreased by 37.87 %
from 1,389.00 £/mo
Est letting value
595.00 £/mo
Unchanged by 0.00 %
from 595.00 £/mo
Est rental Yield
4.79 %
Decreased by 35.09 %
from 7.38 %
Crime Rate
12.00 %
Unchanged by 0.00 %
from 12.00 %

Agent Activity

  • Julian Marks created the listing.

Nearby Schools

NameTypeOfstedDistance
Stowford SchoolAcademy ConverterGood0.89 KM
Ivybridge Community CollegeAcademy ConverterGood1.14 KM
Seamoor Ivybridge Area Children'S CentreChildren's Centre1.21 KM
The Erme Primary SchoolCommunity SchoolGood1.50 KM
Manor Primary School, IvybridgeAcademy Converter1.88 KM

Images

Button Lane AERIAL LOUNGE LOUNGE KITCHEN/BREAKFAST ROOM KITCHEN/BREAKFAST ROOM KITCHEN/BREAKFAST ROOM DINING ROOM ENTRANCE HALL BEDROOM ONE BEDROOM ONE ENSUITE BEDROOM TWO BEDROOM THREE BEDROOM FOUR BATHROOM IMG_1090.jpeg IMG_1093.jpeg IMG_1091.jpeg IMG_5869.jpeg IMG_1088.jpeg 1.jpeg BUTTON LANE 3.jpeg

Nearby Streets

NameAverage PriceAverage SqftDistance
Canterbury Close £ 325,00000.00 KM
Leyland Drive £ 000.00 KM
Elm Park £ 294,95000.00 KM
Brook Road £ 239,80000.00 KM
Papermakers Lane £ 000.00 KM

Nearby Transport

NameNLCTLCDistance
Ivybridge3555IVY1.09 KM

Nearby Listings

AddressPriceTypeScoreDistance
Ivybridge, Devon £ 475,000BUY7 / 100.00 KM
Bonville Drive, Lucerne Fields, Ivybridge, PL21 0GB £ 299,950BUYUnknown0.06 KM
Bonville Drive, Ivybridge, Devon, PL21 £ 445,000BUYUnknown0.06 KM
Bonville Drive, Ivybridge £ 335,000BUYUnknown0.09 KM
New Green Street,Ivybridge,Devon,PL21 0GD £ 245,000BUY7 / 100.13 KM

Nearby Properties

AddressPriceDistance
Godwell House £ 892,5000.14 KM
The Old Barn £ 480,0000.17 KM
Godwell Court £ 670,0000.18 KM
2 Torrhill Gardens £ 645,0000.22 KM
3 Charles Hankin Close £ 577,5000.27 KM