Ingleton, Bracknell, Berkshire, RG12
By Prospect Estate Agency
£ 380,000
Reviews
3 out of 5 stars
Prospect Estate Agency says ..
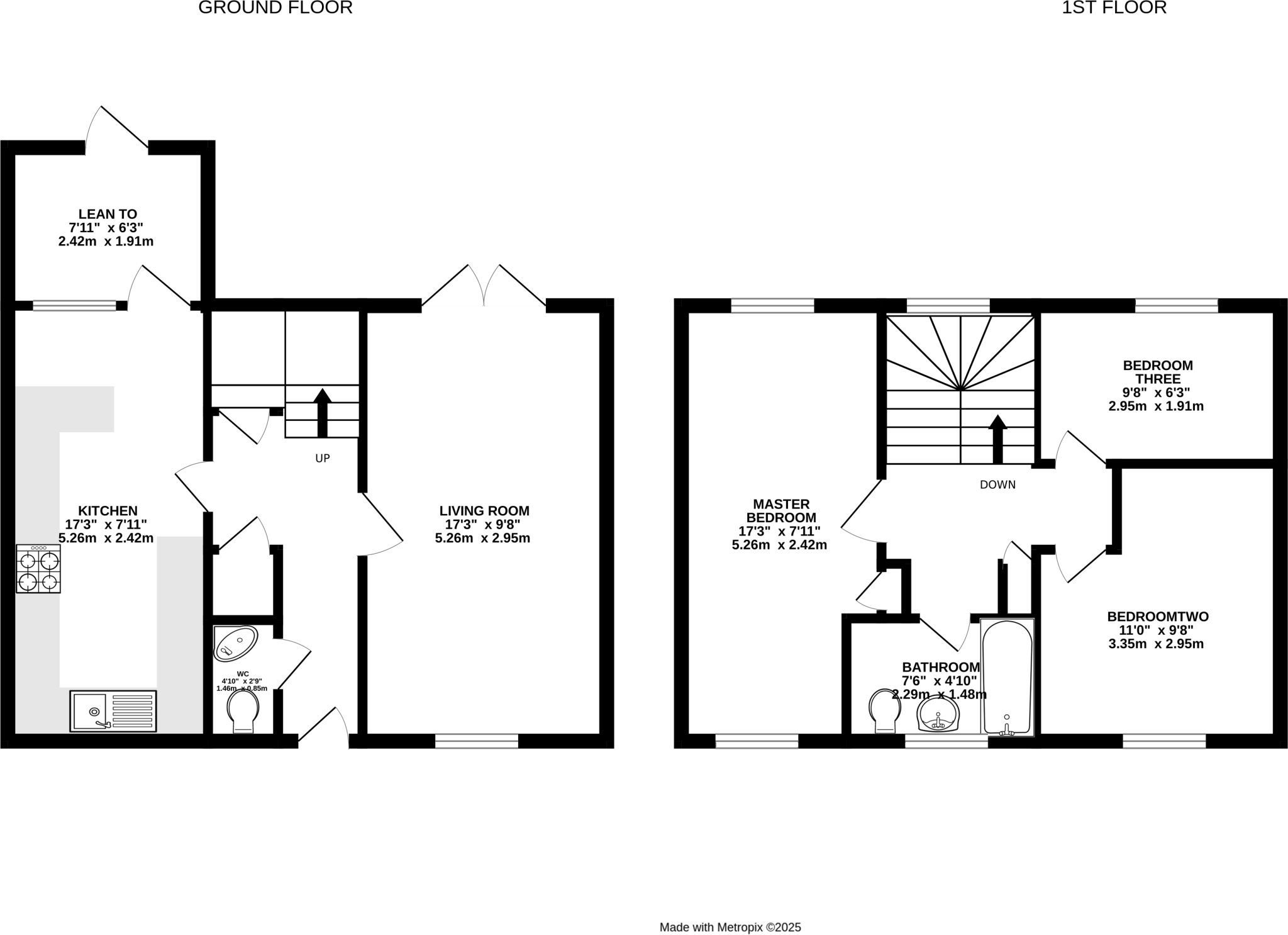
This terrace home is situated in the popular area of Wildridings and is located within close proximity to Bracknell town centre. The property comprises a porch with storage, cloakroom, separate living room, kitchen with fitted appliances with the added benefit of a breakfast bar and ...
Property Oracle says ..
This three-bedroom terraced house in Ingleton, Bracknell is listed at £380,000. The property benefits from a good location, close to local schools and transport links. The average house price in the area is £293,910, and the average price per square foot is £323. This property is slightly above average in price per sqft. While the property appears to be well-maintained and in good condition from the photos, the lack of plot size information makes it difficult to fully assess the value. The presence of a garden is a positive feature. More information on the property’s specific features and condition would be needed for a more comprehensive analysis.
Therefore, we give this property 7 / 10. *Disclaimer: This is our option and does constitute a recommendation or financial advice. Do your own research. *
- Price
- 7
- Condition
- 8
- Location
- 7
- Land
- 6
- Bedrooms
- 3
- Bathrooms
- 1
- Sqft (est)
- 864.34
The heatmap indicates the level of crime in the area. The color of the heatmap indicates the crime severity and recency.
Metrics Year-on-Year
- Average area value
- 335,000.00 £Increased by 5.62 %
- Est sale value
- 439,084.72 £Increased by 46.82 %
- Average area rental value
- 1,350.00 £/moIncreased by 2.12 %
- Est letting value
- 1,728.68 £/moIncreased by 100.00 %
- Est rental Yield
- 4.84 %Decreased by 3.20 %
- Crime Rate
- 9.00 %Unchanged by 0.00 %
Agent Activity
Prospect Estate Agency created the listing.
Nearby Schools
| Name | Type | Ofsted | Distance |
|---|---|---|---|
| Wildridings Primary School | Community School | Requires improvement | 0.44 KM |
| St Michael'S Easthampstead Church Of England Voluntary Aided Primary School | Voluntary Aided School | Good | 1.04 KM |
| The Brakenhale School | Academy Sponsor Led | Good | 1.05 KM |
| Rowans And Sycamores Children'S Centre | Children's Centre | 1.14 KM | |
| Fox Hill Primary School | Community School | Good | 1.21 KM |
Images
Nearby Streets
| Name | Average Price | Average Sqft | Distance |
|---|---|---|---|
| Western Roundabout | £ 400,000 | 0 | 0.00 KM |
| Crowthorne Road North | £ 0 | 0 | 0.00 KM |
| Rainforest Walk | £ 0 | 0 | 0.00 KM |
| The Crescent | £ 350,000 | 0 | 0.00 KM |
| Windmill Road | £ 0 | 0 | 0.00 KM |
Nearby Transport
| Name | NLC | TLC | Distance |
|---|---|---|---|
| Bracknell | 5693 | BCE | 0.94 KM |
| Martins Heron | 5692 | MAO | 3.93 KM |
| Crowthorne | 5628 | CRN | 8.19 KM |
| Camberley | 5682 | CAM | 8.44 KM |
| Sandhurst (Berks) | 5646 | SND | 8.64 KM |
Nearby Listings
| Address | Price | Type | Score | Distance |
|---|---|---|---|---|
| Ingleton, Bracknell, Berkshire, RG12 | £ 380,000 | BUY | 7 / 10 | 0.00 KM |
| Ingleton, Bracknell, Berkshire, RG12 | £ 375,000 | BUY | 7 / 10 | 0.05 KM |
| Keldholme, Bracknell, Berkshire, RG12 | £ 365,000 | BUY | 6 / 10 | 0.07 KM |
| Keldholme, Bracknell, Berkshire, RG12 | £ 400,000 | BUY | 7 / 10 | 0.07 KM |
| Keldholme, Bracknell, Berkshire, RG12 | £ 385,000 | BUY | 6 / 10 | 0.09 KM |
Nearby Properties
| Address | Price | Distance |
|---|---|---|
| 13 Ingleton | £ 287,000 | 0.01 KM |
| 26 Ingleton | £ 312,000 | 0.01 KM |
| 7 Ingleton | £ 176,000 | 0.01 KM |
| 24 Ingleton | £ 180,000 | 0.01 KM |
| 55 Ingleton | £ 177,000 | 0.01 KM |