Acorn says ..
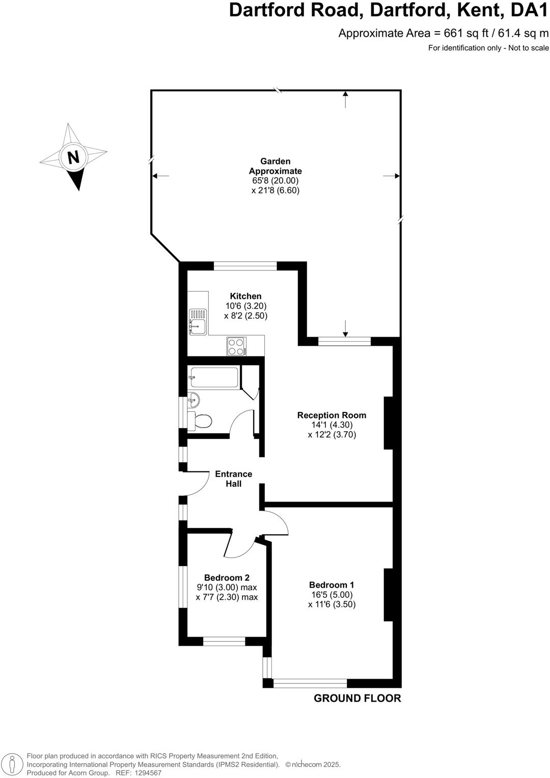
**Guide Price £250,000 to £275,000** Acorn are pleased to present to the market, this two-bedroom ground floor maisonette located in a desirable residential area. Internally, the property boasts a bright and spacious living room, perfect for relaxing or entertai...
Property Oracle says ..
This Dartford maisonette is listed at £250,000, significantly below the area average of £597,589. While the property benefits from a garden and proximity to several schools (West Hill Primary Academy, Wentworth Primary School, and Dartford Grammar School for Girls are all within a kilometer), its condition appears to require some modernisation or renovation. The interior photos show a dated bathroom and kitchen, and the garden, while present, looks somewhat unkempt. The average price per square foot in the area is £713, while this property is listed at a much lower price per square foot, given its size (1,516.50 sqft). However, the need for potential renovations should be factored into any valuation. Nearby comparable properties show a range of prices, further highlighting the need for a thorough property survey to determine a fair market value. The location is good, being close to schools and transport links. The land is of average size for the area. The price, however, is significantly lower than the average, possibly reflecting the condition of the property.
Therefore, we give this property 6 / 10. *Disclaimer: This is our option and does constitute a recommendation or financial advice. Do your own research. *
- Price
- 7
- Condition
- 5
- Location
- 7
- Land
- 6
- Bedrooms
- 2
- Bathrooms
- 1
- Sqft (est)
- 1,516.50
- Lot (est)
- 661.00
The heatmap indicates the level of crime in the area. The color of the heatmap indicates the crime severity and recency.
Metrics Year-on-Year
- Average area value
- 522,333.00 £Decreased by 15.71 %
- Est sale value
- 1,085,814.00 £Increased by 4.22 %
- Average area rental value
- 2,481.00 £/moDecreased by 21.34 %
- Est letting value
- 4,549.50 £/moUnchanged by 0.00 %
- Est rental Yield
- 5.70 %Decreased by 6.71 %
- Crime Rate
- 8.00 %Unchanged by 0.00 %
Agent Activity
Acorn marked this listing as sold.
Acorn created the listing.
Nearby Schools
| Name | Type | Ofsted | Distance |
|---|---|---|---|
| West Hill Primary Academy | Academy Converter | Good | 0.78 KM |
| Wentworth Primary School | Academy Converter | Good | 0.92 KM |
| Dartford Grammar School For Girls | Academy Converter | Outstanding | 1.08 KM |
| Dartford Science & Technology College | Foundation School | Good | 1.12 KM |
| Haberdashers' Aske'S Crayford Temple Grove | Academy Converter | 1.16 KM |
Images
Nearby Streets
| Name | Average Price | Average Sqft | Distance |
|---|---|---|---|
| Western Terrace | £ 550,000 | 0 | 0.00 KM |
| Maiden Lane | £ 325,000 | 0 | 0.00 KM |
| Dartford Road | £ 0 | 0 | 0.00 KM |
| Auction Place | £ 0 | 0 | 0.00 KM |
| Sullivan Close | £ 0 | 0 | 0.00 KM |
Nearby Transport
| Name | NLC | TLC | Distance |
|---|---|---|---|
| Crayford | 5100 | CRY | 1.80 KM |
| Slade Green | 5154 | SGR | 2.29 KM |
| Dartford | 5101 | DFD | 2.65 KM |
| Barnehurst | 5089 | BNH | 4.38 KM |
| Erith | 5104 | ERH | 4.38 KM |
Nearby Listings
| Address | Price | Type | Score | Distance |
|---|---|---|---|---|
| Dartford Road, Dartford, Kent | £ 250,000 | BUY | 6 / 10 | 0.00 KM |
| Dartford Road, West Dartford, Kent, DA1 | £ 240,000 | BUY | 7 / 10 | 0.00 KM |
| Dartford Road, Dartford | £ 230,000 | BUY | 6 / 10 | 0.03 KM |
| 187A Dartford Road, Dartford, Kent, DA1 3EW | £ 65,000 | BUY | Unknown | 0.06 KM |
| Broomhill Road, Dartford | £ 575,000 | BUY | 7 / 10 | 0.09 KM |
Nearby Properties
| Address | Price | Distance |
|---|---|---|
| 181 Dartford Road | £ 355,000 | 0.01 KM |
| 199 Dartford Road | £ 315,000 | 0.01 KM |
| 177a Dartford Road | £ 162,000 | 0.01 KM |
| 185a Dartford Road | £ 135,000 | 0.01 KM |
| 195 Dartford Road | £ 451,000 | 0.01 KM |