Great Barn Crescent, West End, Woking, Surrey,, GU24
SE

Great Barn Crescent, West End, Woking, Surrey,, GU24

By Seymours Estate Agents

£ 450,000

Reviews

3 out of 5 stars

Seymours Estate Agents says ..

This beautifully presented terraced home is offered to the market in excellent condition and is ideally situated within 700m of the highly sought after Gordons School in West End. The property offers deceptively spacious accommodation, including two generously sized double bedrooms. The principal...

Property Oracle says ..

This terraced property at Great Barn Crescent, West End, Woking, presents a well-maintained modern home with a manageable garden. The interior boasts contemporary finishes, particularly in the kitchen and bathroom, suggesting it’s ready for immediate occupancy. Its location offers a balance between suburban calm and accessibility, with nearby schools and transportation links. Considering the condition, garden, and location, the asking price of £450,000 seems reasonable within the local market context, making it an attractive option for potential buyers.

Therefore, we give this property 7 / 10. *Disclaimer: This is our option and does constitute a recommendation or financial advice. Do your own research. *

Price
8
Condition
8
Location
7
Land
7
Bedrooms
2
Bathrooms
2
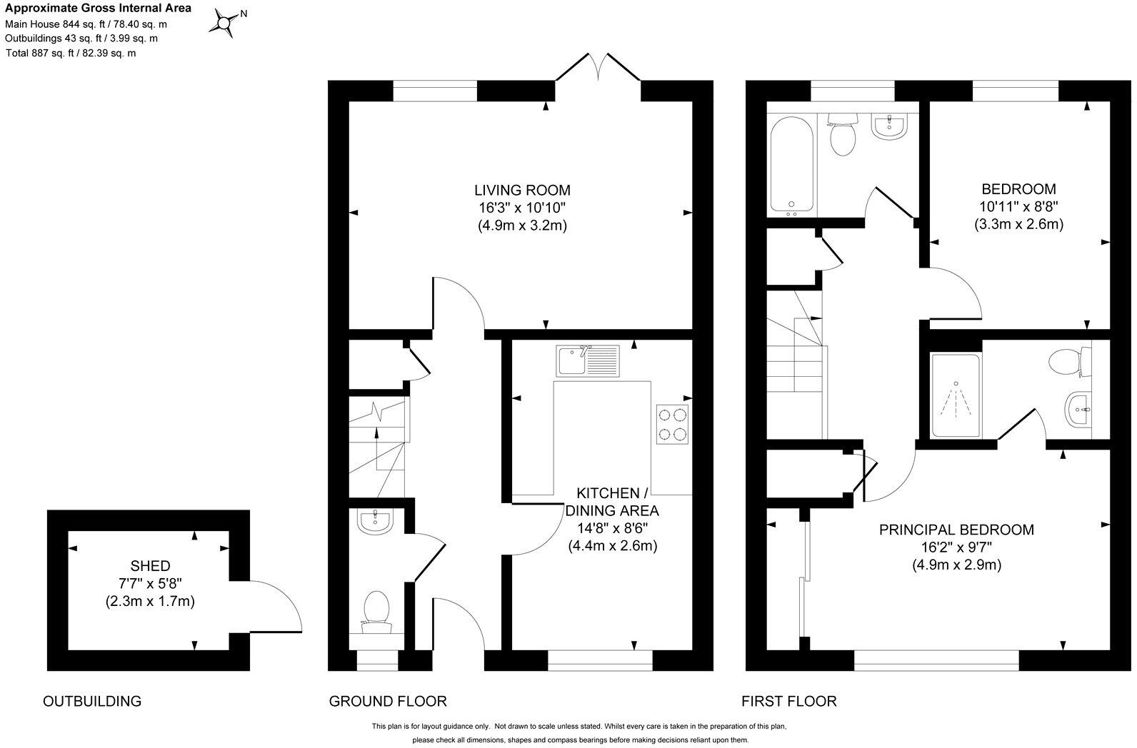
Sqft (est)
886.84
Lot (est)
886.84

The heatmap indicates the level of crime in the area. The color of the heatmap indicates the crime severity and recency.

Metrics Year-on-Year

Average area value
644,188.00 £
Increased by 3.54 %
from 622,146.00 £
Est sale value
376,020.16 £
Decreased by 26.64 %
from 512,593.52 £
Average area rental value
2,466.00 £/mo
Decreased by 21.84 %
from 3,155.00 £/mo
Est letting value
886.84 £/mo
Decreased by 50.00 %
from 1,773.68 £/mo
Est rental Yield
4.59 %
Decreased by 24.63 %
from 6.09 %
Crime Rate
22.00 %
Unchanged by 0.00 %
from 22.00 %

Agent Activity

  • Seymours Estate Agents created the listing.

Nearby Schools

NameTypeOfstedDistance
Holy Trinity Cofe Primary SchoolAcademy Converter0.36 KM
Gordon'S SchoolAcademy ConverterOutstanding1.03 KM
Bisley Cofe Primary SchoolVoluntary Aided SchoolGood1.99 KM
Valley End Cofe Infant SchoolVoluntary Controlled SchoolOutstanding2.56 KM
Knaphill SchoolAcademy Converter3.22 KM

Images

Picture No. 17 Picture No. 18 Picture No. 19 Picture No. 21 Picture No. 23 Picture No. 24 Picture No. 06 Picture No. 05 Picture No. 20 Picture No. 08 Picture No. 10 Picture No. 11 Picture No. 12 Picture No. 07 Picture No. 02 Picture No. 04 Picture No. 22 Picture No. 16 Picture No. 14 Picture No. 09 Picture No. 15 Picture No. 13 Picture No. 03

Nearby Streets

NameAverage PriceAverage SqftDistance
Sarsen Court £ 625,00000.00 KM
Queens Place £ 000.00 KM
Burnt Pollard Lane £ 1,100,00000.00 KM
Halebourne Lane £ 3,000,00000.00 KM
Iris Drive £ 000.00 KM

Nearby Transport

NameNLCTLCDistance
Brookwood5687BKO4.30 KM
Sunningdale5671SNG5.54 KM
Bagshot5681BAG6.19 KM
Longcross5674LNG6.71 KM
Ascot (Berks)5666ACT8.29 KM

Nearby Listings

AddressPriceTypeScoreDistance
Great Barn Crescent, West End, Woking, Surrey,, GU24 £ 450,000BUY7 / 100.00 KM
Great Barn Crescent, West End, Woking, Surrey, GU24 £ 635,000BUY8 / 100.01 KM
Tithe Lane, West End, Woking, Surrey, GU24 £ 900,000BUYUnknown0.06 KM
Benner Lane, West End, Woking, Surrey, GU24 £ 650,000BUY6 / 100.20 KM
Benner Lane, West End, Woking, Surrey, GU24 £ 840,000BUY7 / 100.24 KM

Nearby Properties

AddressPriceDistance
65 Benner Lane £ 365,0000.13 KM
15 Malthouse Lane £ 390,0000.21 KM
2 Malthouse Lane £ 470,0000.21 KM
6 Malthouse Lane £ 562,5000.21 KM
14 Malthouse Lane £ 245,0000.21 KM