HE
RUDLAND CLOSE, THATCHAM
By Henwick Properties
£ 345,000
Reviews
3 out of 5 stars
Henwick Properties says ..
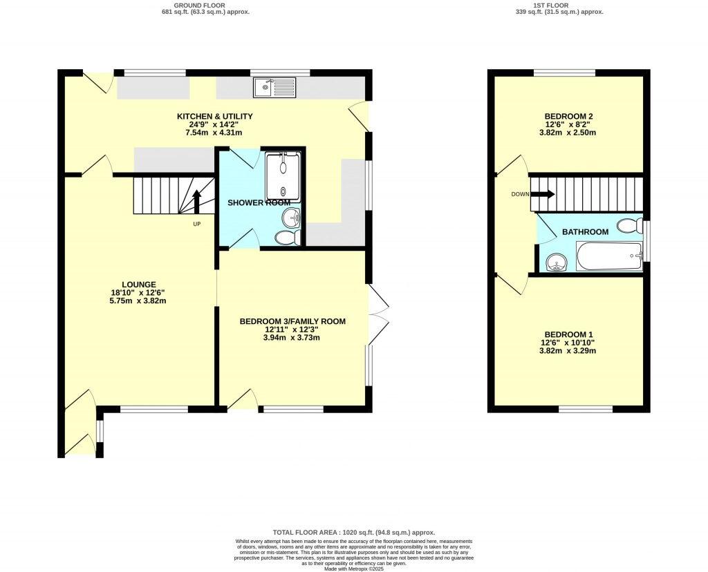
Mature residence situated in a quiet cul-de-sac on the ever popular Moors development. The property has been extended to the ground floor providing sizeable accommodation and with the potential of Annexe (subject to planning permission). The property occupies a large corner plot with a total degr...
Property Oracle says ..
Therefore, we give this property 6 / 10. *Disclaimer: This is our option and does constitute a recommendation or financial advice. Do your own research. *
- Price
- 8
- Condition
- 4
- Location
- 7
- Land
- 7
- Bedrooms
- 2
- Bathrooms
- 1
- Sqft (est)
- 1,020.00
The heatmap indicates the level of crime in the area. The color of the heatmap indicates the crime severity and recency.
Metrics Year-on-Year
- Average area value
- 525,000.00 £Increased by 70.84 %
- Est sale value
- 481,440.00 £Increased by 10.02 %
- Average area rental value
- 1,050.00 £/moDecreased by 53.02 %
- Est letting value
- 0.00 £/moDecreased by 100.00 %
- Est rental Yield
- 2.40 %Decreased by 72.51 %
- Crime Rate
- 9.00 %Unchanged by 0.00 %
from 307,297.00 £
from 437,580.00 £
from 2,235.00 £/mo
from 3,060.00 £/mo
from 8.73 %
from 9.00 %
Agent Activity
Henwick Properties created the listing.
Nearby Schools
| Name | Type | Ofsted | Distance |
|---|---|---|---|
| Spurcroft Primary School | Community School | Good | 0.38 KM |
| Kennet School | Academy Converter | Outstanding | 1.15 KM |
| Thatcham Park Cofe Primary | Voluntary Controlled School | Good | 1.17 KM |
| Central Family Hub - Thatcham | Children's Centre | 1.46 KM | |
| Francis Baily Primary School | Academy Converter | 1.49 KM |
Images
Nearby Streets
| Name | Average Price | Average Sqft | Distance |
|---|---|---|---|
| Bluecoats | £ 254,000 | 0 | 0.00 KM |
| Oak Tree Road | £ 435,000 | 0 | 0.00 KM |
| Coombe Square | £ 369,950 | 0 | 0.00 KM |
| Tudor Court | £ 0 | 0 | 0.00 KM |
| Brownsfield Road | £ 0 | 0 | 0.00 KM |
Nearby Transport
| Name | NLC | TLC | Distance |
|---|---|---|---|
| Thatcham | 3152 | THA | 1.65 KM |
| Newbury Racecourse | 3071 | NRC | 5.53 KM |
| Newbury | 3074 | NBY | 7.19 KM |
| Midgham | 3159 | MDG | 8.86 KM |
Nearby Listings
| Address | Price | Type | Score | Distance |
|---|---|---|---|---|
| RUDLAND CLOSE, THATCHAM | £ 345,000 | BUY | 6 / 10 | 0.00 KM |
| RUDLAND CLOSE, THATCHAM | £ 300,000 | BUY | 6 / 10 | 0.05 KM |
| Rudland Close, Thatcham, Berkshire, RG19 | £ 350,000 | BUY | Unknown | 0.07 KM |
| Braemore Close, Thatcham, Berkshire, RG19 | £ 290,000 | BUY | 7 / 10 | 0.09 KM |
| Thatcham, Berkshire, RG19 | £ 395,000 | BUY | 7 / 10 | 0.09 KM |
Nearby Properties
| Address | Price | Distance |
|---|---|---|
| 5 Spackman Close | £ 234,500 | 0.07 KM |
| 7 Spackman Close | £ 375,000 | 0.07 KM |
| 18 Spackman Close | £ 153,000 | 0.07 KM |
| 19 Spackman Close | £ 148,000 | 0.07 KM |
| 17 Rudland Close | £ 350,000 | 0.08 KM |