Stephensons says ..
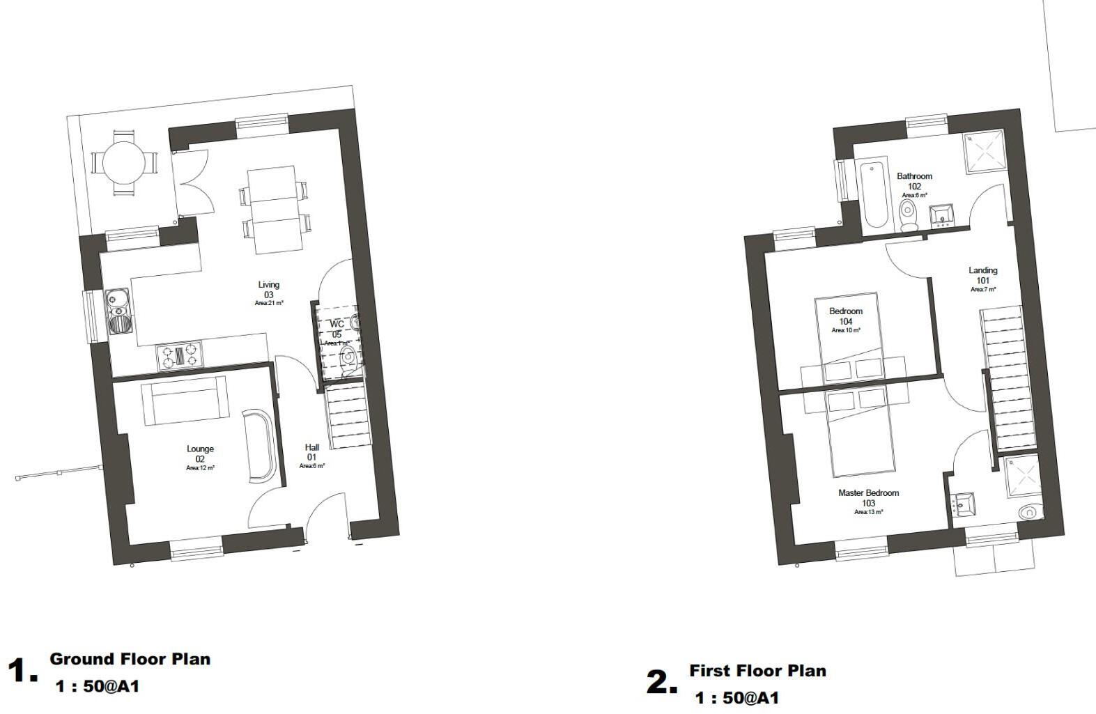
A prime residential building plot with planning in place to build a 2 bedroom detached house on the rural fringes of a fabulous village 4 miles north of Easingwold, 9 miles south of Thirsk and just under 15 miles north of York. For sale by way of Informal Tender with all bids to be received in wr...
Property Oracle says ..
Therefore, we give this property 7 / 10. *Disclaimer: This is our option and does constitute a recommendation or financial advice. Do your own research. *
- Price
- 8
- Condition
- 0
- Location
- 6
- Land
- 7
- Bedrooms
- 0
- Bathrooms
- 0
The heatmap indicates the level of crime in the area. The color of the heatmap indicates the crime severity and recency.
Metrics Year-on-Year
- Average area value
- 235,000.00 £Increased by 13.70 %
- Average area rental value
- 1,100.00 £/moDecreased by 0.99 %
- Est rental Yield
- 5.62 %Decreased by 12.87 %
- Crime Rate
- 0.00 %
from 206,683.00 £
from 1,111.00 £/mo
from 6.45 %
from 0.00 %
Agent Activity
Stephensons created the listing.
Nearby Schools
| Name | Type | Ofsted | Distance |
|---|---|---|---|
| Husthwaite Church Of England Voluntary Controlled Primary School | Voluntary Controlled School | Requires improvement | 0.66 KM |
| Easingwold Community Primary School | Community School | Good | 4.98 KM |
| Outwood Academy Easingwold | Academy Sponsor Led | 6.27 KM | |
| Crayke Church Of England Voluntary Controlled Primary School | Voluntary Controlled School | Outstanding | 8.42 KM |
| Sessay Church Of England Voluntary Controlled Primary School | Voluntary Controlled School | Good | 9.22 KM |
Images
Nearby Listings
| Address | Price | Type | Score | Distance |
|---|---|---|---|---|
| West Terrace, Husthwaite, York | £ 95,000 | BUY | 7 / 10 | 0.00 KM |
| The Nookin, Husthwaite, York | £ 675,000 | BUY | 7 / 10 | 0.27 KM |
| The Nookin, Husthwaite, York | £ 650,000 | BUY | 7 / 10 | 0.29 KM |
| Husthwaite, York | £ 300,000 | BUY | 6 / 10 | 0.34 KM |
| Low Street, Husthwaite, York, YO61 4QA | £ 475,000 | BUY | 7 / 10 | 0.40 KM |
Nearby Properties
| Address | Price | Distance |
|---|---|---|
| Honeysuckle | £ 250,000 | 0.27 KM |
| Stonewold | £ 500,000 | 0.27 KM |
| Hunters Lodge | £ 888,500 | 0.27 KM |
| Wortley Cottage | £ 388,500 | 0.27 KM |
| Holly House | £ 425,000 | 0.27 KM |