Treagust & Co says ..
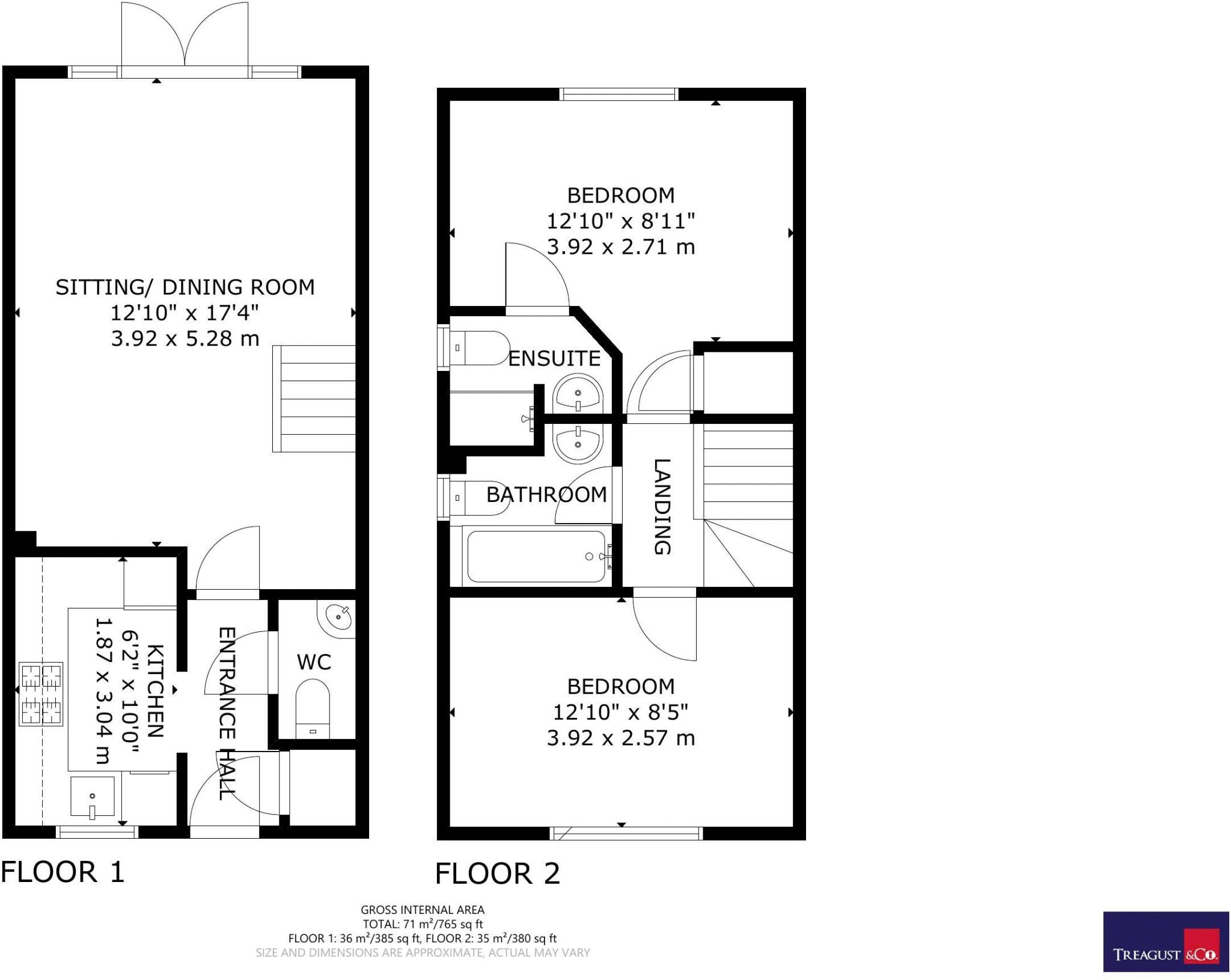
Treagust & Co is delighted to offer this beautifully presented two double bedroom, two bathroom semi-detached home with allocated parking and rear garden, set in a cul-de-sac position within this modern development in Denvilles. The front door opens into the entrance hall with built-in storag...
Property Oracle says ..
This two-bedroom, two-bathroom semi-detached house in Denvilles, Havant, presents itself as a well-maintained and modern property. The interior photographs showcase a clean and updated aesthetic, with a modern kitchen and bathrooms. The property benefits from a manageable rear garden, suitable for relaxation and family use. The location in Denvilles offers convenient access to local transport links, including nearby train stations, and is within reasonable proximity to several well-regarded schools. While the exact square footage is unavailable, making a precise price-per-square-foot comparison difficult, the list price appears to be in line with comparable properties in the area, indicating reasonable value. The lack of specifics regarding the plot size and property square footage, however, prevents a more definitive assessment of the overall value and land size. Potential buyers should independently verify all details and conduct a thorough survey before purchase.
Therefore, we give this property 6 / 10. *Disclaimer: This is our option and does constitute a recommendation or financial advice. Do your own research. *
- Price
- 7
- Condition
- 8
- Location
- 7
- Land
- 4
- Bedrooms
- 2
- Bathrooms
- 2
The heatmap indicates the level of crime in the area. The color of the heatmap indicates the crime severity and recency.
Metrics Year-on-Year
- Average area value
- 354,000.00 £Decreased by 21.23 %
- Average area rental value
- 1,321.00 £/moIncreased by 24.62 %
- Est rental Yield
- 4.48 %Increased by 58.30 %
- Crime Rate
- 1.00 %Unchanged by 0.00 %
Agent Activity
Treagust & Co marked this listing as sold.
Treagust & Co created the listing.
Nearby Schools
| Name | Type | Ofsted | Distance |
|---|---|---|---|
| Warblington School | Community School | Good | 0.94 KM |
| St Alban'S Church Of England Aided Primary School | Voluntary Aided School | Good | 1.44 KM |
| The Orchard Children'S Centre | Children's Centre Linked Site | 1.61 KM | |
| Sharps Copse Primary And Nursery School | Community School | Good | 1.62 KM |
| Emsworth Primary School | Community School | Good | 1.62 KM |
Images
Nearby Streets
| Name | Average Price | Average Sqft | Distance |
|---|---|---|---|
| Turret Avenue | £ 340,000 | 0 | 0.00 KM |
| Gold Street | £ 347,500 | 0 | 0.00 KM |
| Wren Grove | £ 279,500 | 0 | 0.00 KM |
| Bartons Road | £ 0 | 0 | 0.00 KM |
| A27 | £ 385,000 | 0 | 0.00 KM |
Nearby Transport
| Name | NLC | TLC | Distance |
|---|---|---|---|
| Warblington | 5264 | WBL | 0.72 KM |
| Havant | 5532 | HAV | 2.24 KM |
| Emsworth | 5257 | EMS | 2.61 KM |
| Bedhampton | 5538 | BDH | 3.81 KM |
| Rowlands Castle | 5658 | RLN | 3.97 KM |
Nearby Listings
| Address | Price | Type | Score | Distance |
|---|---|---|---|---|
| Iris Close, Denvilles | £ 325,000 | BUY | 6 / 10 | 0.00 KM |
| Iris Close, Havant | £ 325,000 | BUY | 7 / 10 | 0.07 KM |
| Poppy Way, Denvilles, Havant | £ 375,000 | BUY | Unknown | 0.09 KM |
| Daffodil Way, Denvilles | £ 425,000 | BUY | 6 / 10 | 0.09 KM |
| Daffodil Way, Denvilles | £ 340,000 | BUY | 6 / 10 | 0.10 KM |
Nearby Properties
| Address | Price | Distance |
|---|---|---|
| 1 Daffodil Way | £ 425,000 | 0.07 KM |
| 3 Daffodil Way | £ 305,000 | 0.07 KM |
| 8 Daffodil Way | £ 324,500 | 0.09 KM |
| 15 Daffodil Way | £ 442,500 | 0.09 KM |
| 27 Daffodil Way | £ 283,000 | 0.09 KM |