Marsh Road, Oxford, Oxfordshire
By Scottfraser
£ 350,000
Reviews
3 out of 5 stars
Scottfraser says ..
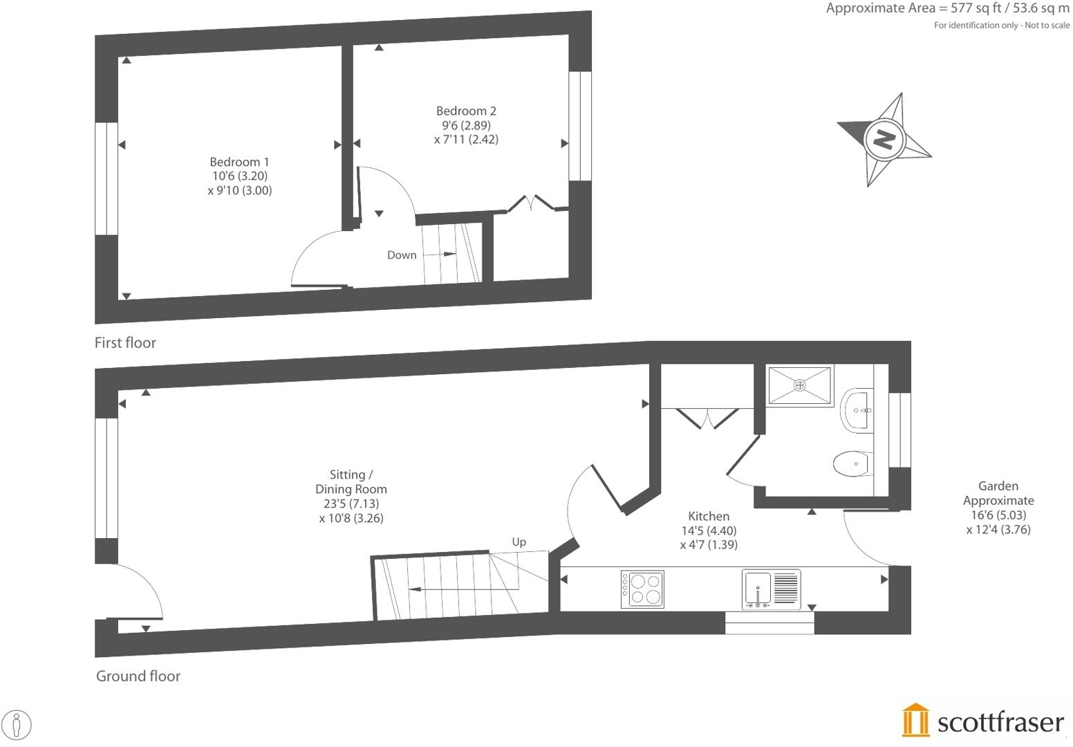
A two-bedroom Victorian home situated off Cowley Road, with a south facing courtyard garden, less than 150 yards from Cowley Marsh Park. Upon entering the property, there is an open plan sitting/diner that leads into the kitchen. Off the kitchen is a renovated bathroom and access to th...
Property Oracle says ..
This end-of-terrace property on Marsh Road, Oxford, presents a blend of traditional features and modern updates. The location is advantageous, with proximity to schools, transportation, and local amenities. While the bathroom has been renovated, the kitchen and garden require attention, suggesting potential for further enhancement. The price aligns with the local market, making it a reasonable investment for those willing to undertake some renovation work. The property is suitable for families or individuals seeking a well-located home with the opportunity to add value through improvements.
Therefore, we give this property 6 / 10. *Disclaimer: This is our option and does constitute a recommendation or financial advice. Do your own research. *
- Price
- 7
- Condition
- 6
- Location
- 7
- Land
- 5
- Bedrooms
- 2
- Bathrooms
- 1
The heatmap indicates the level of crime in the area. The color of the heatmap indicates the crime severity and recency.
Metrics Year-on-Year
- Average area value
- 312,500.00 £Decreased by 31.71 %
- Average area rental value
- 1,568.00 £/moDecreased by 14.08 %
- Est rental Yield
- 6.02 %Increased by 25.68 %
- Crime Rate
- 10.00 %Unchanged by 0.00 %
Agent Activity
Scottfraser created the listing.
Nearby Schools
| Name | Type | Ofsted | Distance |
|---|---|---|---|
| Oxford Spires Academy | Academy Sponsor Led | Good | 0.54 KM |
| St Christopher'S Church Of England School, Cowley | Academy Sponsor Led | Good | 0.56 KM |
| Kings Education (Oxford) | Other Independent School | Good | 0.80 KM |
| Our Lady'S Roman Catholic Primary School | Academy Converter | Good | 0.89 KM |
| St Gregory The Great | Academy Converter | 0.98 KM |
Images
Nearby Streets
| Name | Average Price | Average Sqft | Distance |
|---|---|---|---|
| Littlehay Road | £ 0 | 0 | 0.00 KM |
| St James Place | £ 350,000 | 0 | 0.00 KM |
| William Morris Close | £ 372,500 | 0 | 0.00 KM |
| Singletree | £ 187,500 | 0 | 0.00 KM |
| Mayfair Road | £ 0 | 0 | 0.00 KM |
Nearby Transport
| Name | NLC | TLC | Distance |
|---|---|---|---|
| Oxford | 3115 | OXF | 6.00 KM |
| Radley | 3118 | RAD | 6.32 KM |
| Oxford Parkway | 3121 | OXP | 9.61 KM |
| Culham | 3107 | CUM | 9.64 KM |
| Islip | 3110 | ISP | 9.97 KM |
Nearby Listings
| Address | Price | Type | Score | Distance |
|---|---|---|---|---|
| Marsh Road, Oxford, Oxfordshire | £ 350,000 | BUY | 6 / 10 | 0.00 KM |
| Marsh Road, Oxford | £ 385,000 | BUY | 6 / 10 | 0.01 KM |
| East Oxford, Oxford, OX4 | £ 200,000 | BUY | 6 / 10 | 0.12 KM |
| East Oxford, Oxford, OX4 | £ 150,000 | BUY | 6 / 10 | 0.12 KM |
| Cowley | £ 325,000 | BUY | Unknown | 0.15 KM |
Nearby Properties
| Address | Price | Distance |
|---|---|---|
| 16 Marsh Road | £ 315,000 | 0.01 KM |
| 54 Marsh Road | £ 140,000 | 0.01 KM |
| 14 Marsh Road | £ 400,000 | 0.01 KM |
| 22 Marsh Road | £ 356,100 | 0.01 KM |
| 4 Marsh Road | £ 96,500 | 0.01 KM |