Building Plot Nevill Road, Hove, East Sussex, BN3 6BF
By Austin Gray
£ 125,000
Reviews
3 out of 5 stars
Austin Gray says ..
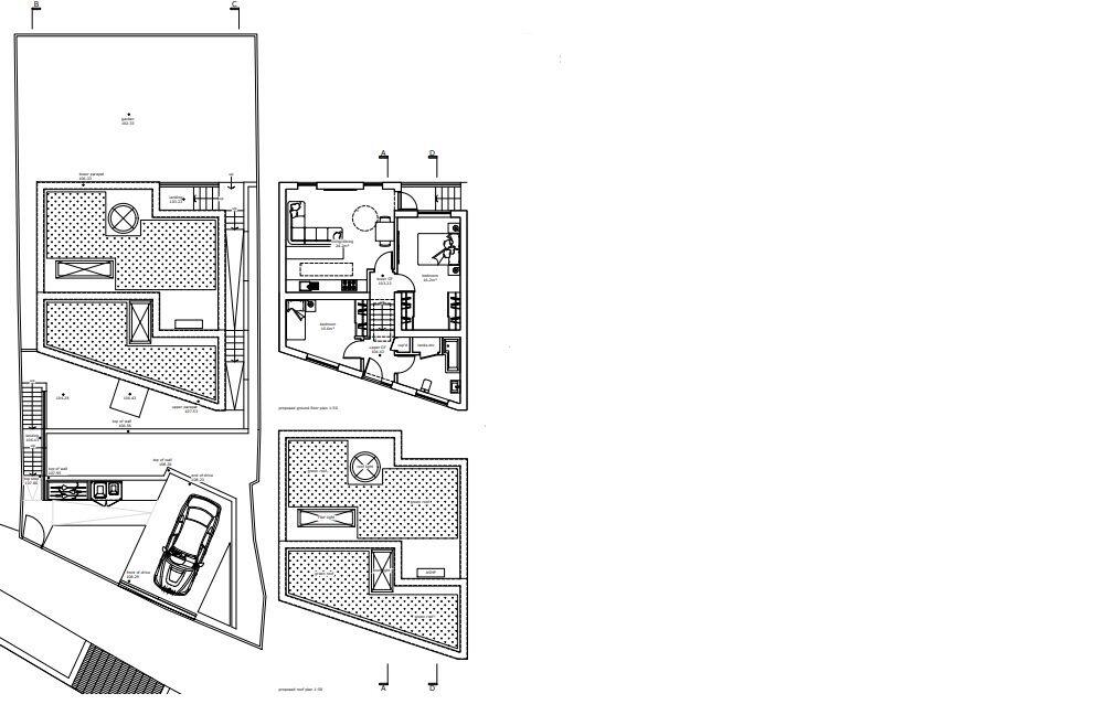
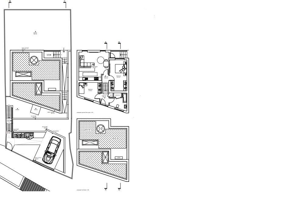
**For Sale By Auction on Thursday 13 March 2025 ** Land with Planning Permission for a single storey split level 2 bedroom detached dwelling
Property Oracle says ..
This property is a building plot located in Hove, East Sussex. The plot is situated on Nevill Road, close to several schools and transportation links. While the listing price is relatively low compared to nearby properties, the lack of a structure and the need for significant development should be considered. The area appears desirable, with many properties exceeding £500,000. The plot size is not specified, which makes a complete price analysis difficult. Further information on the plot size and permitted development would be beneficial in determining the overall value.
Therefore, we give this property 6 / 10. *Disclaimer: This is our option and does constitute a recommendation or financial advice. Do your own research. *
- Price
- 5
- Condition
- 0
- Location
- 8
- Land
- 7
- Bedrooms
- 2
- Bathrooms
- 0
The heatmap indicates the level of crime in the area. The color of the heatmap indicates the crime severity and recency.
Metrics Year-on-Year
- Average area value
- 1,133,750.00 £Increased by 20.02 %
- Average area rental value
- 2,298.00 £/moDecreased by 9.42 %
- Est rental Yield
- 2.43 %Decreased by 24.53 %
- Crime Rate
- 7.00 %Unchanged by 0.00 %
Agent Activity
Austin Gray created the listing.
Nearby Schools
| Name | Type | Ofsted | Distance |
|---|---|---|---|
| Blatchington Mill School | Community School | Good | 0.47 KM |
| Aldrington Cofe Primary School | Voluntary Aided School | Good | 0.63 KM |
| Hove Park School And Sixth Form Centre | Community School | Good | 0.98 KM |
| Bilingual Primary School - Brighton & Hove | Free Schools | Good | 1.09 KM |
| West Blatchington Primary And Nursery School | Community School | Good | 1.10 KM |
Images
Nearby Streets
| Name | Average Price | Average Sqft | Distance |
|---|---|---|---|
| George VI Mansions | £ 0 | 0 | 0.00 KM |
| Howard Court | £ 0 | 0 | 0.00 KM |
| King George VI Avenue | £ 265,000 | 0 | 0.00 KM |
| Nevill Close | £ 800,000 | 0 | 0.00 KM |
| Clayton Way | £ 500,000 | 0 | 0.00 KM |
Nearby Transport
| Name | NLC | TLC | Distance |
|---|---|---|---|
| Aldrington | 5280 | AGT | 1.43 KM |
| Hove | 5273 | HOV | 2.04 KM |
| Portslade | 5276 | PLD | 2.92 KM |
| Preston Park | 5285 | PRP | 3.06 KM |
| Fishersgate | 5284 | FSG | 4.39 KM |
Nearby Listings
| Address | Price | Type | Score | Distance |
|---|---|---|---|---|
| Goldstone Crescent, Hove | £ 800,000 | BUY | 6 / 10 | 0.00 KM |
| Building Plot Nevill Road, Hove, East Sussex, BN3 6BF | £ 125,000 | BUY | 6 / 10 | 0.00 KM |
| Goldstone Crescent, Hove, East Sussex | £ 850,000 | BUY | Unknown | 0.02 KM |
| Goldstone Crescent, Hove, BN3 | £ 950,000 | BUY | 7 / 10 | 0.03 KM |
| Nevill Road, Hove, BN3 | £ 260,000 | BUY | Unknown | 0.07 KM |
Nearby Properties
| Address | Price | Distance |
|---|---|---|
| 126 Goldstone Crescent | £ 700,000 | 0.00 KM |
| 116 Goldstone Crescent | £ 760,000 | 0.00 KM |
| 122 Goldstone Crescent | £ 715,000 | 0.00 KM |
| 108 Goldstone Crescent | £ 455,000 | 0.02 KM |
| 124 Goldstone Crescent | £ 325,000 | 0.02 KM |