Chancellors says ..
Being sold via Secure Sale online bidding. Terms & Conditions apply. Starting Bid £340,000
Property Oracle says ..
Therefore, we give this property 6 / 10. *Disclaimer: This is our option and does constitute a recommendation or financial advice. Do your own research. *
- Price
- 8
- Condition
- 8
- Location
- 8
- Land
- 1
- Bedrooms
- 3
- Bathrooms
- 2
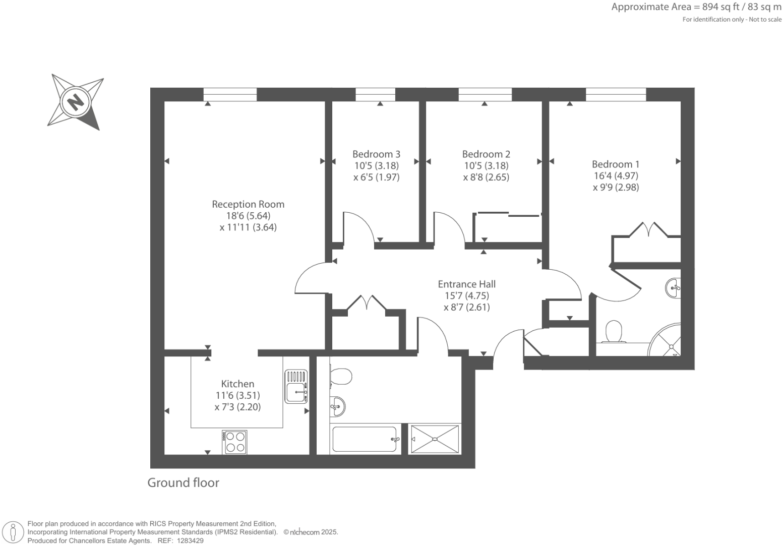
- Sqft (est)
- 758.28
The heatmap indicates the level of crime in the area. The color of the heatmap indicates the crime severity and recency.
Metrics Year-on-Year
- Average area value
- 312,500.00 £Decreased by 31.71 %
- Est sale value
- 554,302.68 £Increased by 36.13 %
- Average area rental value
- 1,568.00 £/moDecreased by 14.08 %
- Est letting value
- 2,274.84 £/moIncreased by 50.00 %
- Est rental Yield
- 6.02 %Increased by 25.68 %
- Crime Rate
- 9.00 %Unchanged by 0.00 %
from 457,576.00 £
from 407,196.36 £
from 1,825.00 £/mo
from 1,516.56 £/mo
from 4.79 %
from 9.00 %
Agent Activity
Chancellors created the listing.
Nearby Schools
| Name | Type | Ofsted | Distance |
|---|---|---|---|
| Oxford Spires Academy | Academy Sponsor Led | Good | 0.39 KM |
| St Frideswide Church Of England Primary School | Academy Sponsor Led | 0.57 KM | |
| St Gregory The Great | Academy Converter | 0.57 KM | |
| Larkrise Primary School | Academy Sponsor Led | 0.96 KM | |
| Comper Foundation Stage School | Local Authority Nursery School | Good | 1.04 KM |
Images
Nearby Streets
| Name | Average Price | Average Sqft | Distance |
|---|---|---|---|
| Littlehay Road | £ 0 | 0 | 0.00 KM |
| Evelyn Court | £ 290,000 | 0 | 0.00 KM |
| Magdalen Road | £ 0 | 0 | 0.00 KM |
| Essex Street | £ 1,450,000 | 0 | 0.00 KM |
| Singletree | £ 187,500 | 0 | 0.00 KM |
Nearby Transport
| Name | NLC | TLC | Distance |
|---|---|---|---|
| Oxford | 3115 | OXF | 5.40 KM |
| Radley | 3118 | RAD | 6.40 KM |
| Oxford Parkway | 3121 | OXP | 9.04 KM |
| Islip | 3110 | ISP | 9.58 KM |
| Culham | 3107 | CUM | 9.82 KM |
Nearby Listings
| Address | Price | Type | Score | Distance |
|---|---|---|---|---|
| East Oxford, Oxfordshire, OX4 | £ 320,000 | BUY | 6 / 10 | 0.00 KM |
| Reliance Way, East Oxford | £ 350,000 | BUY | Unknown | 0.02 KM |
| Reliance Way, East Oxford, OX4 | £ 375,000 | BUY | 7 / 10 | 0.03 KM |
| Reliance Way, Oxford, Oxfordshire, OX4 | £ 325,000 | BUY | 5 / 10 | 0.04 KM |
| Reliance Way, Oxford, Oxfordshire, OX4 | £ 325,000 | BUY | 6 / 10 | 0.04 KM |
Nearby Properties
| Address | Price | Distance |
|---|---|---|
| 122 Reliance Way | £ 445,000 | 0.02 KM |
| 140 Reliance Way | £ 244,950 | 0.02 KM |
| 74 Reliance Way | £ 250,000 | 0.02 KM |
| 88 Reliance Way | £ 315,000 | 0.02 KM |
| 84 Reliance Way | £ 315,000 | 0.02 KM |