Apartment Elisabeth Mill Elisabeth Gardens, Reddish
By Edward Mellor Ltd
£ 140,000
Reviews
3 out of 5 stars
Edward Mellor Ltd says ..
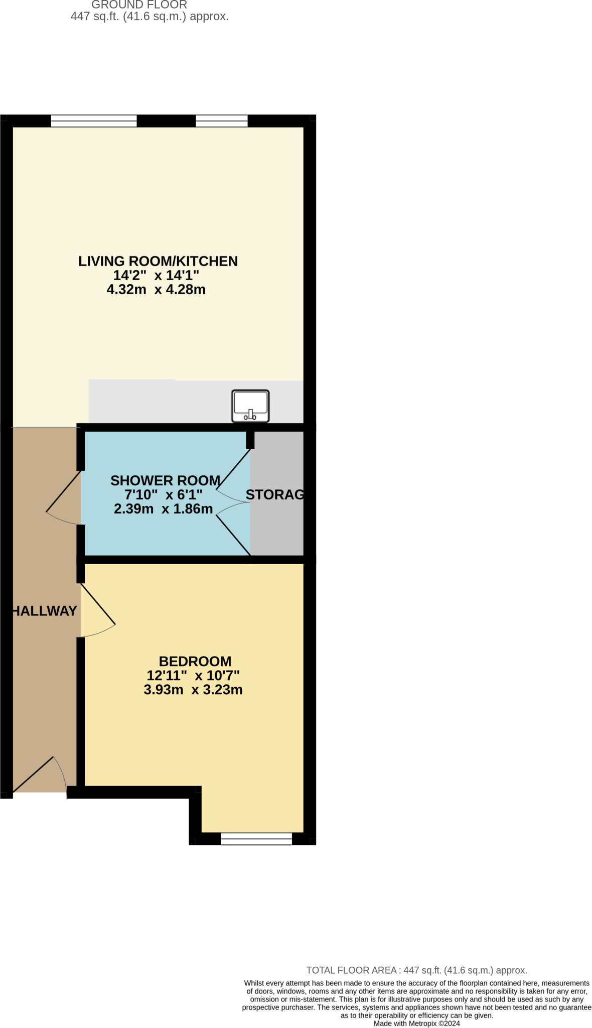
A BEAUTIFUL ONE BEDROOM APARTMENT located on the TOP FLOOR of the ever so popular Elisabeth Mill. Developed in 2019, this stunning property is ready to move in and offers lift access to all floors. Situated ideally, a four-minute walk away from Houldsworth square, you will find all of your dai...
Property Oracle says ..
This property is a one-bedroom apartment located in the Elisabeth Mill development in Reddish, Stockport. The apartment is modern and well-presented, as shown in the photos. The development appears to be a converted mill, offering a unique and contemporary living space. The location benefits from proximity to several primary schools, including St. Joseph’s Catholic Primary School (rated “Good” by Ofsted) and St Elisabeth’S Church Of England Primary, both within a short distance. Reddish South train station is also conveniently located nearby, providing easy access to Manchester and other areas. The list price of £140,000 is lower than the average property price in the area (£210,830), and significantly lower than other nearby apartments in Elisabeth Mill. However, it’s important to note that the average price per square foot in the area (£252) is higher than what this property offers. Considering the modern condition, convenient location, and relatively low price, this property could represent good value for money, particularly for first-time buyers or investors looking for a rental property. The lack of outdoor space is a notable drawback.
Therefore, we give this property 6 / 10. *Disclaimer: This is our option and does constitute a recommendation or financial advice. Do your own research. *
- Price
- 7
- Condition
- 9
- Location
- 8
- Land
- 3
- Bedrooms
- 1
- Bathrooms
- 1
- Sqft (est)
- 379.95
- Lot (est)
- 447.00
The heatmap indicates the level of crime in the area. The color of the heatmap indicates the crime severity and recency.
Metrics Year-on-Year
- Average area value
- 262,143.00 £Decreased by 4.95 %
- Est sale value
- 183,515.85 £Increased by 50.47 %
- Average area rental value
- 975.00 £/moDecreased by 5.43 %
- Est letting value
- 379.95 £/moUnchanged by 0.00 %
- Est rental Yield
- 4.46 %Decreased by 0.67 %
- Crime Rate
- 0.00 %
Agent Activity
Edward Mellor Ltd created the listing.
Nearby Schools
| Name | Type | Ofsted | Distance |
|---|---|---|---|
| St Elisabeth'S Church Of England Primary | Academy Sponsor Led | 0.17 KM | |
| St. Joseph'S Catholic Primary School, Reddish | Voluntary Aided School | Good | 0.39 KM |
| Broadstones School | Other Independent Special School | Good | 0.64 KM |
| Broadstone Hall Primary School | Community School | Good | 1.05 KM |
| Reddish Vale Nursery School | Local Authority Nursery School | Outstanding | 1.12 KM |
Images
Nearby Streets
| Name | Average Price | Average Sqft | Distance |
|---|---|---|---|
| St. Elisabeths Way | £ 0 | 0 | 0.00 KM |
| Castlerigg Close | £ 270,000 | 0 | 0.00 KM |
| David Street | £ 0 | 0 | 0.00 KM |
| Arthur Street | £ 221,000 | 0 | 0.00 KM |
| Oldham Street | £ 0 | 0 | 0.00 KM |
Nearby Transport
| Name | NLC | TLC | Distance |
|---|---|---|---|
| Reddish South | 2857 | RDS | 0.79 KM |
| Reddish North | 2979 | RDN | 1.48 KM |
| Ryder Brow | 2977 | RRB | 2.11 KM |
| Heaton Chapel | 2861 | HTC | 2.19 KM |
| Belle Vue | 2785 | BLV | 3.07 KM |
Nearby Listings
| Address | Price | Type | Score | Distance |
|---|---|---|---|---|
| Apartment Elisabeth Mill Elisabeth Gardens, Reddish | £ 140,000 | BUY | 6 / 10 | 0.00 KM |
| Elisabeth Gardens, Stockport, Greater Manchester, SK5 | £ 160,000 | BUY | 5 / 10 | 0.01 KM |
| Elisabeth Gardens, Stockport, SK5 | £ 220,000 | BUY | 7 / 10 | 0.01 KM |
| Apartment , Elisabeth Mill, Elisabeth Gardens, Stockport | £ 130,000 | BUY | 6 / 10 | 0.02 KM |
| Elisabeth Mill, Elisabeth Gardens, Stockport | £ 130,000 | BUY | 5 / 10 | 0.02 KM |
Nearby Properties
| Address | Price | Distance |
|---|---|---|
| 5 Harrogate Drive | £ 81,250 | 0.26 KM |
| 19 Harrogate Drive | £ 135,000 | 0.26 KM |
| 12 Harrogate Drive | £ 186,000 | 0.26 KM |
| 4 Harrogate Drive | £ 115,000 | 0.26 KM |
| 22 Harrogate Drive | £ 124,950 | 0.26 KM |