33 Main Street, Repton, Derby, Derbyshire DE65 6EZ
By SDL Property Auctions
£ 175,000
Reviews
3 out of 5 stars
SDL Property Auctions says ..
For sale on 27 November 2025 Our national property auction will be broadcast online with live auctioneers. To bid by proxy, online, or by phone, please submit your registration form no later than 5pm the day before the auction. The auction will commence at 09:00. On behalf of Newton Fallowell...
Property Oracle says ..
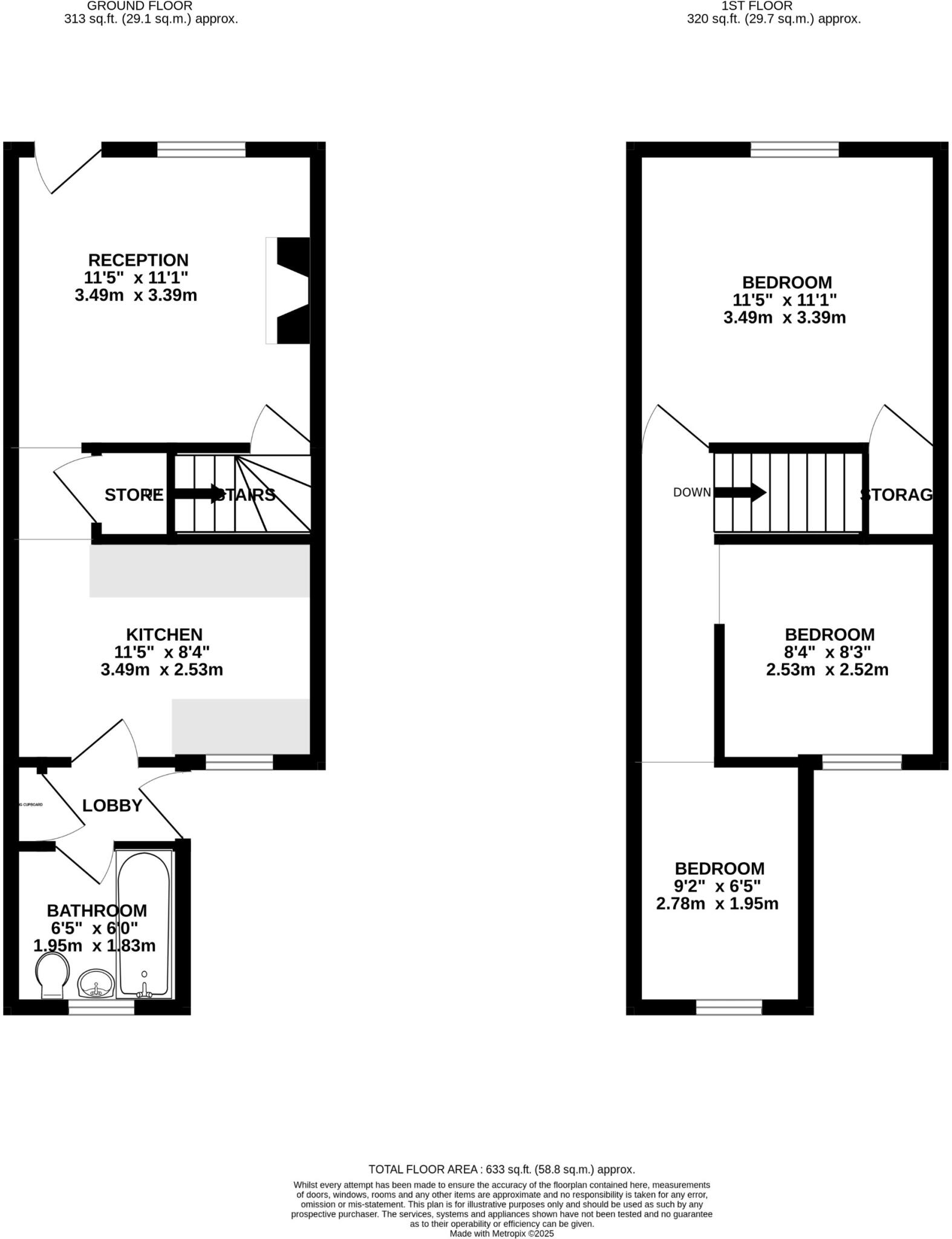
This is a 3-bedroom semi-detached property located on Main Street in Repton. The property requires extensive renovation but offers a good-sized garden. The location is convenient, with schools and transportation links nearby. The asking price of £175,000 reflects the condition of the property and offers a potential investment opportunity.
Therefore, we give this property 6 / 10. *Disclaimer: This is our option and does constitute a recommendation or financial advice. Do your own research. *
- Price
- 9
- Condition
- 3
- Location
- 7
- Land
- 6
- Bedrooms
- 3
- Bathrooms
- 0
- Sqft (est)
- 633.00
The heatmap indicates the level of crime in the area. The color of the heatmap indicates the crime severity and recency.
Metrics Year-on-Year
- Average area value
- 405,727.00 £Decreased by 7.36 %
- Est sale value
- 234,843.00 £Decreased by 4.13 %
- Average area rental value
- 1,483.00 £/moIncreased by 13.64 %
- Est letting value
- 633.00 £/moUnchanged by 0.00 %
- Est rental Yield
- 4.39 %Increased by 22.63 %
- Crime Rate
- 7.00 %Unchanged by 0.00 %
Agent Activity
SDL Property Auctions created the listing.
Nearby Schools
| Name | Type | Ofsted | Distance |
|---|---|---|---|
| Repton Primary School | Community School | Good | 0.57 KM |
| St Wystan'S School | Other Independent School | 0.84 KM | |
| Repton School | Other Independent School | 1.12 KM | |
| Willington Primary School | Community School | Outstanding | 2.54 KM |
| Findern Primary School | Community School | Good | 3.24 KM |
Images
Nearby Streets
| Name | Average Price | Average Sqft | Distance |
|---|---|---|---|
| Shakespeare Meadow | £ 0 | 0 | 0.00 KM |
| Stratford Close | £ 0 | 0 | 0.00 KM |
| Hill View | £ 0 | 0 | 0.00 KM |
| Maple Court | £ 0 | 0 | 0.00 KM |
| Coppice Rise | £ 0 | 0 | 0.00 KM |
Nearby Transport
| Name | NLC | TLC | Distance |
|---|---|---|---|
| Willington | 1905 | WIL | 3.07 KM |
Nearby Listings
| Address | Price | Type | Score | Distance |
|---|---|---|---|---|
| 33 Main Street, Repton, Derby, Derbyshire DE65 6EZ | £ 175,000 | BUY | 6 / 10 | 0.00 KM |
| Main Street, Derby, DE65 | £ 360,000 | BUY | Unknown | 0.10 KM |
| Main Street, Repton, Derby | £ 380,000 | BUY | 7 / 10 | 0.10 KM |
| Main Street, Repton, Derby | £ 975,000 | BUY | 7 / 10 | 0.12 KM |
| Land Adjacent to 42 Main Street, Repton , Derby DE65 6EZ | £ 250,000 | BUY | 7 / 10 | 0.15 KM |
Nearby Properties
| Address | Price | Distance |
|---|---|---|
| 1 Stratford Close | £ 425,000 | 0.10 KM |
| 2 Stratford Close | £ 310,000 | 0.10 KM |
| 3 Stratford Close | £ 340,000 | 0.10 KM |
| 5 Main Street | £ 88,000 | 0.10 KM |
| 42 Main Street | £ 590,000 | 0.10 KM |