PE
St Edwards Road, Southsea
By Pearsons
£ 175,000
Pearsons says ..
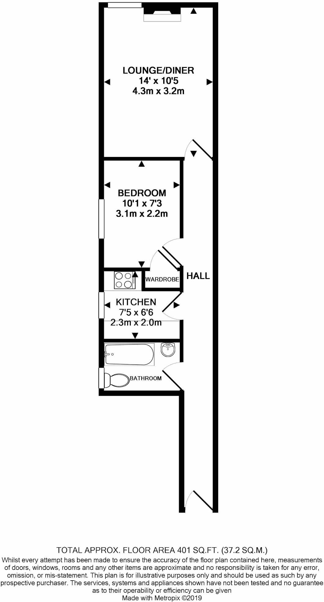
Sold with a 1/4 Share of Freehold, this quite superb one-bedroom apartment provides a smartly designed and beautifully decorated apartment which would make an ideal first time buy or buy to let investment. Occupying the first floor of this grand Victorian building in a much requested central Sout...
- Bedrooms
- 1
- Bathrooms
- 1
The heatmap indicates the level of crime in the area. The color of the heatmap indicates the crime severity and recency.
Metrics Year-on-Year
- Average area value
- 421,780.00 £Increased by 21.83 %
- Average area rental value
- 1,390.00 £/moDecreased by 6.33 %
- Est rental Yield
- 3.95 %Decreased by 23.15 %
- Crime Rate
- 3.00 %Unchanged by 0.00 %
from 346,205.00 £
from 1,484.00 £/mo
from 5.14 %
from 3.00 %
Agent Activity
Pearsons created the listing.
Nearby Schools
| Name | Type | Ofsted | Distance |
|---|---|---|---|
| Portsmouth High School | Other Independent School | 0.27 KM | |
| Cottage Grove Primary School | Academy Converter | 0.49 KM | |
| St John'S College | Other Independent School | 0.52 KM | |
| University Of Portsmouth | Higher Education Institutions | 0.76 KM | |
| Ark Charter Academy | Academy Sponsor Led | Good | 0.89 KM |
Images
Nearby Streets
| Name | Average Price | Average Sqft | Distance |
|---|---|---|---|
| Castle Close | £ 0 | 0 | 0.00 KM |
| Sussex Road | £ 0 | 0 | 0.00 KM |
| Kent Road | £ 0 | 0 | 0.00 KM |
| Worsley Road | £ 0 | 0 | 0.00 KM |
| Queens Way | £ 0 | 0 | 0.00 KM |
Nearby Transport
| Name | NLC | TLC | Distance |
|---|---|---|---|
| Portsmouth And Southsea | 5537 | PMS | 1.07 KM |
| Portsmouth Harbour | 5540 | PMH | 2.03 KM |
| Fratton | 5509 | FTN | 2.09 KM |
| Hilsea | 5539 | HLS | 5.67 KM |
| Cosham | 5896 | CSA | 6.48 KM |
Nearby Listings
| Address | Price | Type | Score | Distance |
|---|---|---|---|---|
| St Edwards Road, Southsea | £ 175,000 | BUY | Unknown | 0.00 KM |
| Garden Lane, Southsea | £ 825,000 | BUY | 7 / 10 | 0.07 KM |
| St. Edwards Road, Southsea, PO5 | £ 860,000 | BUY | 8 / 10 | 0.08 KM |
| Wilberforce Road, Southsea | £ 699,950 | BUY | 7 / 10 | 0.09 KM |
| Wilberforce Road, Southsea | £ 650,000 | BUY | 7 / 10 | 0.09 KM |
Nearby Properties
| Address | Price | Distance |
|---|---|---|
| 28a St Edwards Road | £ 550,000 | 0.01 KM |
| 24 St Edwards Road | £ 679,000 | 0.01 KM |
| 2 St Edwards Road | £ 215,000 | 0.01 KM |
| 2a St Edwards Road | £ 230,000 | 0.01 KM |
| 12 St Edwards Road | £ 320,000 | 0.01 KM |