Yopa says ..
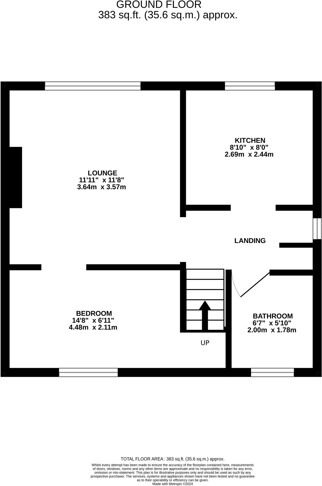
Yopa Plymouth are thrilled to be showing this spacious one bedroom purpose built one bedroom top floor apartment. The property boasts a good size south facing rear garden, two outside storage sheds, entrance hall, lounge, bedroom, kitchen, bathroom and plenty of storage space.
Property Oracle says ..
This property is a one bedroom flat located on Trevithick Road in St Budeaux, Plymouth. The property benefits from being close to local amenities and schools, including Marine Academy Primary School which is located directly on Trevithick Road. The property itself appears to be in reasonable condition, although some modernisation may be desirable. There is a small garden to the rear of the property. At £95,000, the property is significantly below the average price for the area, however, it is important to note that the average house price in the area is based on larger properties than this one bedroom flat. The property is likely to appeal to first-time buyers or investors looking for a property in a convenient location.
Therefore, we give this property 6 / 10. *Disclaimer: This is our option and does constitute a recommendation or financial advice. Do your own research. *
- Price
- 8
- Condition
- 6
- Location
- 7
- Land
- 4
- Bedrooms
- 1
- Bathrooms
- 1
- Sqft (est)
- 324.00
- Lot (est)
- 383.00
The heatmap indicates the level of crime in the area. The color of the heatmap indicates the crime severity and recency.
Metrics Year-on-Year
- Average area value
- 210,833.00 £Increased by 5.82 %
- Est sale value
- 79,380.00 £Increased by 13.43 %
- Average area rental value
- 925.00 £/moDecreased by 21.81 %
- Est letting value
- 324.00 £/moUnchanged by 0.00 %
- Est rental Yield
- 5.26 %Decreased by 26.23 %
- Crime Rate
- 9.00 %Unchanged by 0.00 %
Agent Activity
Yopa created the listing.
Nearby Schools
| Name | Type | Ofsted | Distance |
|---|---|---|---|
| Marine Academy Primary | Free Schools | Outstanding | 0.00 KM |
| Marine Academy Plymouth | Academy Sponsor Led | 0.22 KM | |
| Mount Tamar School | Community Special School | Good | 0.30 KM |
| Plaistow Hill Infant And Nursery School | Academy Converter | 0.37 KM | |
| St Budeaux Foundation Cofe (Aided) Junior School | Voluntary Aided School | Good | 0.47 KM |
Images
Nearby Streets
| Name | Average Price | Average Sqft | Distance |
|---|---|---|---|
| Clifford Close | £ 200,000 | 0 | 0.00 KM |
| Green Gates | £ 0 | 0 | 0.00 KM |
| Bridwell Lane North | £ 0 | 0 | 0.00 KM |
| Kinsale Road | £ 0 | 0 | 0.00 KM |
| Second Avenue | £ 145,000 | 0 | 0.00 KM |
Nearby Transport
| Name | NLC | TLC | Distance |
|---|---|---|---|
| St Budeaux Ferry Road | 3590 | SBF | 1.14 KM |
| St Budeaux Victoria Road | 3592 | SBV | 1.17 KM |
| Keyham | 3571 | KEY | 1.79 KM |
| Dockyard (Devonport) | 3588 | DOC | 2.63 KM |
| Devonport | 3579 | DPT | 3.12 KM |
Nearby Listings
| Address | Price | Type | Score | Distance |
|---|---|---|---|---|
| Trevithick Road, Plymouth, PL5 | £ 95,000 | BUY | 6 / 10 | 0.00 KM |
| Trevithick Road, Plymouth, Devon, PL5 | £ 180,000 | BUY | 7 / 10 | 0.00 KM |
| Trevithick Road, St Budeaux, Plymouth, PL5 | £ 100,000 | BUY | 5 / 10 | 0.05 KM |
| Byard Close, Plymouth, PL5 | £ 270,000 | BUY | 6 / 10 | 0.06 KM |
| Byard Close, Plymouth, PL5 | £ 245,000 | BUY | 6 / 10 | 0.06 KM |
Nearby Properties
| Address | Price | Distance |
|---|---|---|
| 39 Trevithick Road | £ 83,300 | 0.00 KM |
| 15 Trevithick Road | £ 88,500 | 0.01 KM |
| 30 Trevithick Road | £ 115,000 | 0.01 KM |
| 38 Trevithick Road | £ 120,000 | 0.01 KM |
| 37 Trevithick Road | £ 96,000 | 0.01 KM |