Murray Drive, Stonehouse
CR

Murray Drive, Stonehouse

By Cruive Estate Agents

£ 129,995

Reviews

3 out of 5 stars

Cruive Estate Agents says ..

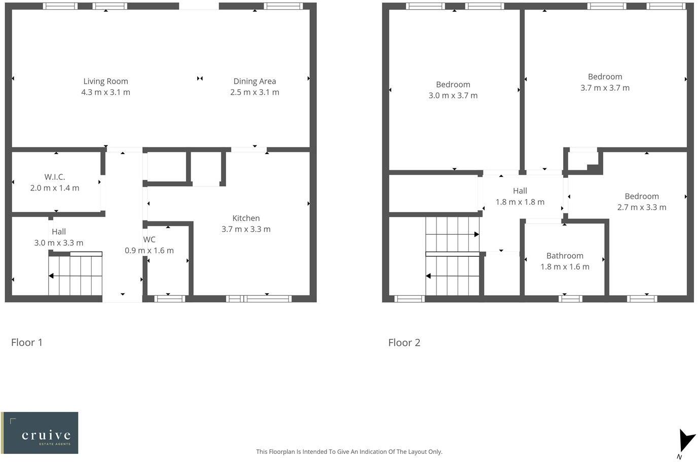
Tucked away to the rear of a child friendly cul de sac, enjoying an enviable South facing outlook across the stunning surrounding countryside is this deceptively spacious three-bedroom mid-terraced family home. Well-presented throughout, with beautifully tended gardens, spacious garage with mezza...

Property Oracle says ..

This is a 3-bedroom terraced house located on Murray Drive, Stonehouse. The property appears to be in good condition, with a modern interior and well-maintained gardens. The location offers a balance between a quieter residential setting and accessibility to nearby towns and transportation links. The asking price of £129,995 seems reasonable given the property’s condition, size, and location relative to the local market. The property is being listed by Cruive Estate Agents.

Therefore, we give this property 7 / 10. *Disclaimer: This is our option and does constitute a recommendation or financial advice. Do your own research. *

Price
8
Condition
7
Location
6
Land
7
Bedrooms
3
Bathrooms
1
Sqft (est)
316.46

The heatmap indicates the level of crime in the area. The color of the heatmap indicates the crime severity and recency.

Metrics Year-on-Year

Average area value
256,995.00 £
Increased by 4.00 %
from 247,111.00 £
Est sale value
76,583.32 £
Increased by 26.04 %
from 60,760.32 £
Average area rental value
1,120.00 £/mo
Increased by 13.48 %
from 987.00 £/mo
Est letting value
316.46 £/mo
from 0.00 £/mo
Est rental Yield
5.23 %
Increased by 9.19 %
from 4.79 %
Crime Rate
0.00 %
from 0.00 %

Agent Activity

  • Cruive Estate Agents created the listing.

Images

Murray Drive-3.jpg Murray Drive-30.jpg Murray Drive-9.jpg Murray Drive-39.jpg Murray Drive-23.jpg Murray Drive-19.jpg Murray Drive-21.jpg Murray Drive-22.jpg Murray Drive-11.jpg Murray Drive-16.jpg Murray Drive-15.jpg Murray Drive-13.jpg Murray Drive-14.jpg Murray Drive-12.jpg Murray Drive-25.jpg Murray Drive-27.jpg Murray Drive-29.jpg Murray Drive-26.jpg Murray Drive-32.jpg Murray Drive-37.jpg Murray Drive-35.jpg Murray Drive-41.jpg Murray Drive-5.jpg Murray Drive-40.jpg Murray Drive-42.jpg Murray Drive-8.jpg

Nearby Streets

NameAverage PriceAverage SqftDistance
Murray Drive £ 99,80000.00 KM
Lockhart Street £ 125,74800.00 KM
Candermill Road £ 000.00 KM
Lockhart Place £ 110,00000.00 KM
Inglis Court £ 143,00000.00 KM

Nearby Transport

NameNLCTLCDistance
Larkhall9728LRH4.37 KM
Merryton9705MEY5.51 KM
Chatelherault9707CTE8.11 KM
Shieldmuir9552SDM8.86 KM
Airbles9695AIR9.56 KM

Nearby Listings

AddressPriceTypeScoreDistance
Murray Drive, Stonehouse £ 129,995BUY7 / 100.00 KM
Murray Drive, Stonehouse £ 69,995BUY7 / 100.13 KM
Lockhart Street, Larkhall, Lanarkshire, ML9 £ 87,000BUY6 / 100.27 KM
Lockhart Place, Larkhall, ML9 £ 80,000BUY6 / 100.30 KM
Camnethan Street, Stonehouse £ 182,000BUY7 / 100.38 KM