James.Dean says ..
A lovely, two double, bed end of terrace house situated in a popular residential area benefitting from an easily managed garden and garage.
Property Oracle says ..
The property is located on St Davids Street, in Brecon. The internal photos suggest the property is in good condition, with a modern kitchen and bathroom. The property has a garden. The property is well-priced compared to the local average.
Therefore, we give this property 7 / 10. *Disclaimer: This is our option and does constitute a recommendation or financial advice. Do your own research. *
- Price
- 9
- Condition
- 8
- Location
- 7
- Land
- 7
- Bedrooms
- 2
- Bathrooms
- 1
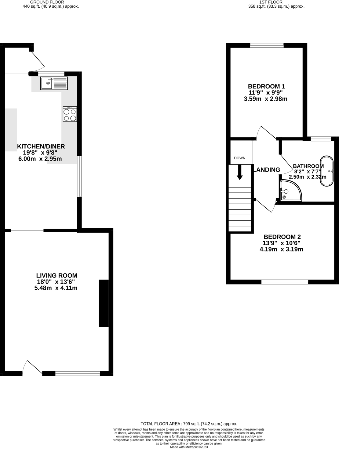
- Sqft (est)
- 799.00
The heatmap indicates the level of crime in the area. The color of the heatmap indicates the crime severity and recency.
Metrics Year-on-Year
- Average area value
- 311,704.00 £Increased by 34.17 %
- Est sale value
- 292,434.00 £Increased by 10.57 %
- Average area rental value
- 1,067.00 £/moDecreased by 19.35 %
- Est letting value
- 799.00 £/moUnchanged by 0.00 %
- Est rental Yield
- 4.11 %Decreased by 39.82 %
- Crime Rate
- 15.00 %Unchanged by 0.00 %
from 232,321.00 £
from 264,469.00 £
from 1,323.00 £/mo
from 799.00 £/mo
from 6.83 %
from 15.00 %
Agent Activity
James.Dean created the listing.
Nearby Schools
| Name | Type | Ofsted | Distance |
|---|---|---|---|
| Llanfaes C.P. School | Welsh Establishment | 0.31 KM | |
| Christ College | Welsh Establishment | 0.54 KM | |
| Mount Street C.P. Junior | Welsh Establishment | 1.01 KM | |
| Priory C.I.W. School | Welsh Establishment | 1.05 KM | |
| Mount Street C.P. Infants | Welsh Establishment | 1.21 KM |
Images
Nearby Streets
| Name | Average Price | Average Sqft | Distance |
|---|---|---|---|
| St David Street | £ 238,000 | 0 | 0.00 KM |
| Newmarch St. | £ 197,500 | 0 | 0.00 KM |
| Church Street | £ 180,000 | 0 | 0.00 KM |
| Orchard Gardens | £ 0 | 0 | 0.00 KM |
| Beilhelig Road | £ 0 | 0 | 0.00 KM |
Nearby Listings
| Address | Price | Type | Score | Distance |
|---|---|---|---|---|
| St Davids Street, Brecon, LD3 | £ 215,000 | BUY | 6 / 10 | 0.00 KM |
| St Davids Street, Brecon, LD3 | £ 220,000 | BUY | 7 / 10 | 0.00 KM |
| Newmarch Street, Brecon, LD3 | £ 220,000 | BUY | 7 / 10 | 0.06 KM |
| Newmarch Street, Brecon, LD3 | £ 225,000 | BUY | 7 / 10 | 0.06 KM |
| Newmarch Street, Brecon, LD3 | £ 180,000 | BUY | 6 / 10 | 0.07 KM |
Nearby Properties
| Address | Price | Distance |
|---|---|---|
| 19 St Davids Street | £ 143,000 | 0.01 KM |
| 1a St Davids Street | £ 115,000 | 0.01 KM |
| 9 St Davids Street | £ 140,000 | 0.01 KM |
| Cambridge House | £ 145,500 | 0.01 KM |
| 17 St Davids Street | £ 100,000 | 0.01 KM |