Plymstock, Plymouth
JU

Plymstock, Plymouth

By Julian Marks

£ 350,000

Reviews

3 out of 5 stars

Julian Marks says ..

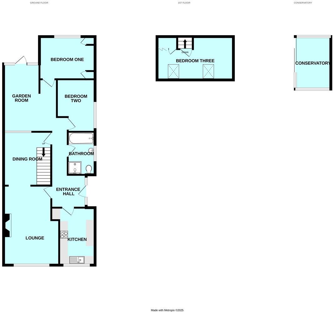
Superb & spacious semi-detached bungalow in a highly popular position. The accommodation has been extended & briefly comprises an entrance & inner hallway, lounge with separate dining room, kitchen, garden room overlooking & opening onto the rear garden, 2 bedrooms & bathroom on the ground floor....

Property Oracle says ..

This is a three-bedroom semi-detached bungalow in Plymstock, Plymouth. The property features a good-sized garden with a greenhouse and shed. It also has a conservatory. While the property is in reasonable condition, some aspects could benefit from updating. The location offers access to nearby schools and transportation links. The asking price of £350,000 appears reasonable when compared to average property prices in the area.

Therefore, we give this property 7 / 10. *Disclaimer: This is our option and does constitute a recommendation or financial advice. Do your own research. *

Price
7
Condition
6
Location
7
Land
8
Bedrooms
3
Bathrooms
1
Sqft (est)
733.00

The heatmap indicates the level of crime in the area. The color of the heatmap indicates the crime severity and recency.

Metrics Year-on-Year

Average area value
311,919.00 £
Decreased by 6.41 %
from 333,288.00 £
Est sale value
341,578.00 £
Increased by 32.76 %
from 257,283.00 £
Average area rental value
1,169.00 £/mo
Increased by 9.05 %
from 1,072.00 £/mo
Est letting value
733.00 £/mo
Unchanged by 0.00 %
from 733.00 £/mo
Est rental Yield
4.50 %
Increased by 16.58 %
from 3.86 %
Crime Rate
5.00 %
Unchanged by 0.00 %
from 5.00 %

Agent Activity

  • Julian Marks created the listing.

Nearby Schools

NameTypeOfstedDistance
Goosewell Primary AcademyAcademy Sponsor LedGood0.13 KM
Coombe Dean SchoolAcademy ConverterRequires improvement0.67 KM
Plymstock SchoolAcademy ConverterGood1.00 KM
Plymstock Children'S CentreChildren's Centre1.22 KM
Pomphlett Primary SchoolAcademy Converter1.60 KM

Images

IMG_2629.jpeg IMG_2644.jpeg IMG_2639.jpeg IMG_2640.jpeg IMG_2641.jpeg IMG_2642.jpeg IMG_2651.jpeg IMG_2650.jpeg IMG_2631.jpeg IMG_2632.jpeg IMG_2630.jpeg IMG_2628.jpeg IMG_2648.jpeg IMG_2649.jpeg IMG_2643.jpeg IMG_2647.jpeg IMG_2646.jpeg IMG_2636.jpeg IMG_2638.jpeg

Nearby Streets

NameAverage PriceAverage SqftDistance
Woodlands £ 000.00 KM
Church Road £ 327,50000.00 KM
Paddock Close £ 000.00 KM
Springfield Lane £ 000.00 KM
Reigate Road £ 282,50000.00 KM

Nearby Transport

NameNLCTLCDistance
Plymouth3580PLY7.08 KM
Devonport3579DPT9.98 KM

Nearby Listings

AddressPriceTypeScoreDistance
Plymstock, Plymouth £ 350,000BUY7 / 100.00 KM
Shute Park Road, Plymouth, Devon £ 560,000BUY6 / 100.04 KM
Shute Park Road, Plymouth, Devon, PL9 £ 351,750BUY6 / 100.04 KM
Goosewell Park Road, Plymouth, Devon, PL9 £ 350,000BUY7 / 100.10 KM
Rosewood Close, Plymouth, Devon, PL9 £ 241,250BUYUnknown0.13 KM

Nearby Properties

AddressPriceDistance
36 Shute Park Road £ 242,0000.04 KM
12 Shute Park Road £ 202,5000.04 KM
22 Shute Park Road £ 64,0000.04 KM
10 Shute Park Road £ 439,9500.04 KM
38 Shute Park Road £ 230,0000.04 KM