AL
New Caledonian Wharf, Canada Water, SE16
By Alex & Matteo
£ 260,000
Reviews
3 out of 5 stars
Alex & Matteo says ..
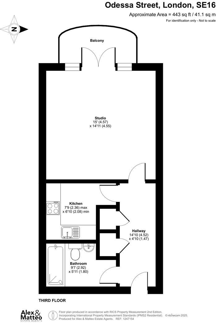
A stylish third floor studio apartment located in an exclusive residential development overlooking the Thames, enjoying the best Docklands has to offer, from riverside walkways, nature walks, bike paths and historic buildings, to top restaurants, cafes and shops. The property is located only ...
Property Oracle says ..
Therefore, we give this property 6 / 10. *Disclaimer: This is our option and does constitute a recommendation or financial advice. Do your own research. *
- Price
- 8
- Condition
- 8
- Location
- 7
- Land
- 3
- Bedrooms
- 1
- Bathrooms
- 1
- Sqft (est)
- 406.36
The heatmap indicates the level of crime in the area. The color of the heatmap indicates the crime severity and recency.
Metrics Year-on-Year
- Average area value
- 491,111.00 £Decreased by 10.47 %
- Est sale value
- 262,102.20 £Decreased by 1.68 %
- Average area rental value
- 2,267.00 £/moIncreased by 15.90 %
- Est letting value
- 812.72 £/moUnchanged by 0.00 %
- Est rental Yield
- 5.54 %Increased by 29.44 %
- Crime Rate
- 4.00 %Unchanged by 0.00 %
from 548,573.00 £
from 266,572.16 £
from 1,956.00 £/mo
from 812.72 £/mo
from 4.28 %
from 4.00 %
Agent Activity
Alex & Matteo created the listing.
Nearby Schools
| Name | Type | Ofsted | Distance |
|---|---|---|---|
| Redriff Primary School | Academy Converter | 0.57 KM | |
| Arnhem Wharf Primary School | Community School | Good | 0.85 KM |
| St John'S Roman Catholic Primary School | Voluntary Aided School | Good | 0.89 KM |
| Bacon'S College | Academy Sponsor Led | 1.07 KM | |
| Alfred Salter Primary School | Community School | Good | 1.09 KM |
Images
Nearby Streets
| Name | Average Price | Average Sqft | Distance |
|---|---|---|---|
| Commercial Pier Wharf | £ 400,000 | 0 | 0.00 KM |
| Thames Path | £ 0 | 0 | 0.00 KM |
| Durand's Wharf | £ 0 | 0 | 0.00 KM |
| Defoe Close | £ 0 | 0 | 0.00 KM |
| Helsinki Square | £ 0 | 0 | 0.00 KM |
Nearby Transport
| Name | NLC | TLC | Distance |
|---|---|---|---|
| Surrey Quays | 1083 | SQE | 1.58 KM |
| Canada Water | 1659 | ZCW | 1.75 KM |
| New Cross | 5150 | NWX | 1.75 KM |
| Limehouse | 7491 | LHS | 1.78 KM |
| Rotherhithe | 1039 | ROE | 2.04 KM |
Nearby Listings
| Address | Price | Type | Score | Distance |
|---|---|---|---|---|
| New Caledonian Wharf, Canada Water, SE16 | £ 260,000 | BUY | 6 / 10 | 0.00 KM |
| Walker House, Odessa Street, Rotherhithe, SE16 | £ 325,000 | BUY | Unknown | 0.02 KM |
| Odessa Street, Canada Water, SE16 | £ 475,000 | BUY | 6 / 10 | 0.02 KM |
| Gabriel House, Rotherhithe, SE16 | £ 375,000 | BUY | 6 / 10 | 0.02 KM |
| Odessa Street, London, SE16 | £ 600,000 | BUY | 6 / 10 | 0.02 KM |
Nearby Properties
| Address | Price | Distance |
|---|---|---|
| 9 Royal Court | £ 239,950 | 0.10 KM |
| 5 Royal Court | £ 950,000 | 0.10 KM |
| 3 Royal Court | £ 925,000 | 0.10 KM |
| 7 Royal Court | £ 184,995 | 0.10 KM |
| 6 Royal Court | £ 382,000 | 0.10 KM |