Hockeys says ..
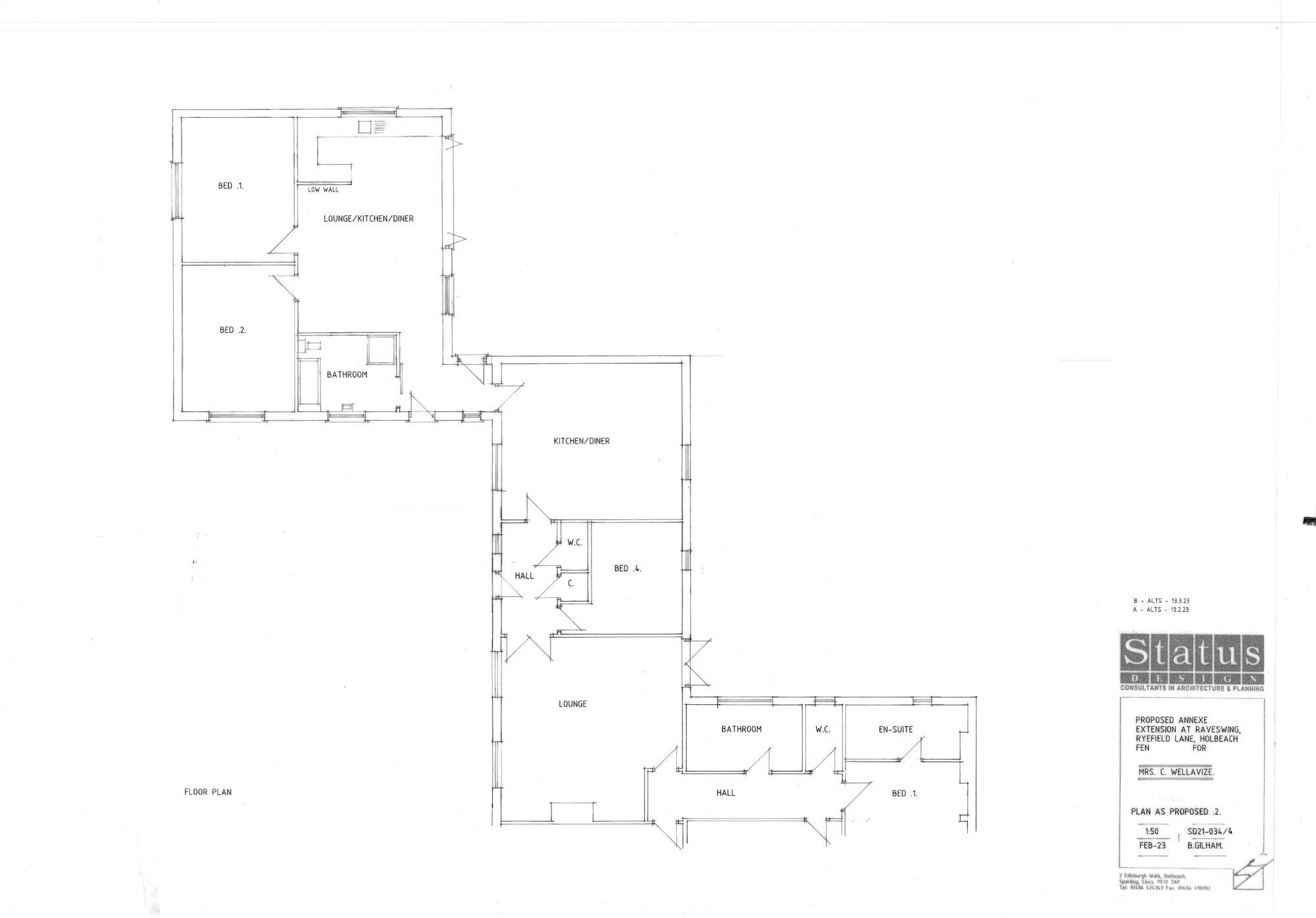
Nestled in a picturesque rural location, this exceptional bungalow offers a tranquil escape from the hustle and bustle of city living with planning permission for a two bedroom annexe granted.
Property Oracle says ..
Therefore, we give this property 6 / 10. *Disclaimer: This is our option and does constitute a recommendation or financial advice. Do your own research. *
- Price
- 8
- Condition
- 7
- Location
- 6
- Land
- 6
- Bedrooms
- 4
- Bathrooms
- 2
- Sqft (est)
- 1,118.00
The heatmap indicates the level of crime in the area. The color of the heatmap indicates the crime severity and recency.
Metrics Year-on-Year
- Average area value
- 536,667.00 £Increased by 14.03 %
- Est sale value
- 433,784.00 £Increased by 12.46 %
- Average area rental value
- 1,423.00 £/moIncreased by 11.26 %
- Est letting value
- 1,118.00 £/mo
- Est rental Yield
- 3.18 %Decreased by 2.45 %
- Crime Rate
- 1.00 %Unchanged by 0.00 %
from 470,623.00 £
from 385,710.00 £
from 1,279.00 £/mo
from 0.00 £/mo
from 3.26 %
from 1.00 %
Agent Activity
Hockeys created the listing.
Nearby Schools
| Name | Type | Ofsted | Distance |
|---|---|---|---|
| Sutton St James Community Primary School | Community School | Good | 3.61 KM |
| Fleet Wood Lane School | Community School | Good | 4.15 KM |
| The Holbeach William Stukeley Church Of England Voluntary Aided Primary School | Voluntary Aided School | Good | 5.96 KM |
| Gedney Church End Primary Academy | Academy Converter | 6.03 KM | |
| University Academy Holbeach | Academy Sponsor Led | Good | 6.18 KM |
Images
Nearby Streets
| Name | Average Price | Average Sqft | Distance |
|---|---|---|---|
| Raven's Gate | £ 0 | 0 | 0.00 KM |
| Old Fendyke | £ 0 | 0 | 0.00 KM |
| Green Lane | £ 0 | 0 | 0.00 KM |
Nearby Listings
| Address | Price | Type | Score | Distance |
|---|---|---|---|---|
| Ryefield Lane, Holbeach, PE12 | £ 425,000 | BUY | 6 / 10 | 0.00 KM |
| Ryefield Lane, Holbeach, PE12 | £ 800,000 | BUY | 8 / 10 | 0.05 KM |
| Old Fendyke, Holbeach, Spalding, Lincolnshire, PE12 8SH | £ 180,000 | BUY | 6 / 10 | 1.92 KM |
| Fishergate, Sutton St James | £ 400,000 | BUY | 8 / 10 | 1.92 KM |
| Old Fendyke, Holbeach, PE12 | £ 180,000 | BUY | 6 / 10 | 1.94 KM |
Nearby Properties
| Address | Price | Distance |
|---|---|---|
| Tumbleweed Farm | £ 295,000 | 0.15 KM |
| Rushmoor | £ 390,000 | 0.15 KM |
| Brooklands | £ 243,000 | 0.15 KM |
| Ravenswing | £ 215,000 | 0.15 KM |
| Hollyhock Farm | £ 450,000 | 1.76 KM |