Julie Philpot says ..
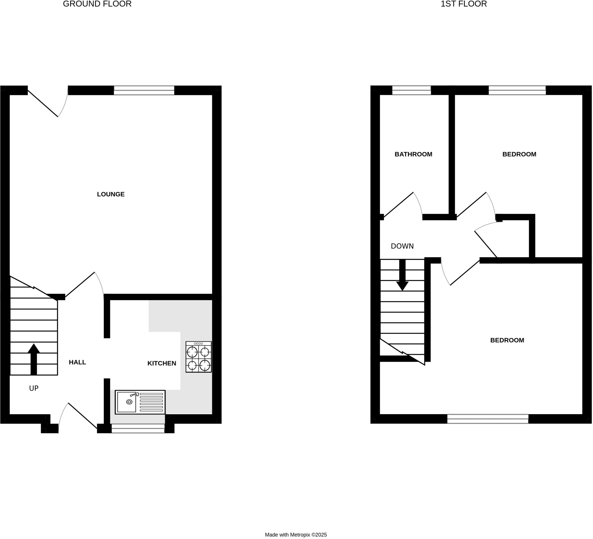
Viewing recommended for this superb two bedroom mid-terraced home, refurbished to a high standard throughout, offering modern, stylish living in a quiet, popular residential location with easy access of local schools, shops, and Kenilworth Common. The property boasts a brand-new kitchen and bath...
Property Oracle says ..
Therefore, we give this property 7 / 10. *Disclaimer: This is our option and does constitute a recommendation or financial advice. Do your own research. *
- Price
- 8
- Condition
- 8
- Location
- 7
- Land
- 7
- Bedrooms
- 2
- Bathrooms
- 1
- Sqft (est)
- 622.00
The heatmap indicates the level of crime in the area. The color of the heatmap indicates the crime severity and recency.
Metrics Year-on-Year
- Average area value
- 450,680.00 £Increased by 2.66 %
- Est sale value
- 292,962.00 £Increased by 11.61 %
- Average area rental value
- 1,290.00 £/moIncreased by 8.77 %
- Est letting value
- 622.00 £/moUnchanged by 0.00 %
- Est rental Yield
- 3.43 %Increased by 5.86 %
- Crime Rate
- 6.00 %Unchanged by 0.00 %
from 438,987.00 £
from 262,484.00 £
from 1,186.00 £/mo
from 622.00 £/mo
from 3.24 %
from 6.00 %
Agent Activity
Julie Philpot created the listing.
Nearby Schools
| Name | Type | Ofsted | Distance |
|---|---|---|---|
| Park Hill Junior School | Community School | Good | 0.28 KM |
| Kenilworth School And Sixth Form | Academy Converter | 0.56 KM | |
| Crackley Hall School | Other Independent School | 0.79 KM | |
| Thorns Community Infant School | Community School | Good | 1.21 KM |
| St Nicholas Cofe Primary School | Voluntary Controlled School | Good | 1.52 KM |
Images
Nearby Streets
| Name | Average Price | Average Sqft | Distance |
|---|---|---|---|
| Field Close | £ 0 | 0 | 0.00 KM |
| Dalebrook Place | £ 0 | 0 | 0.00 KM |
| Hidcote Road | £ 0 | 0 | 0.00 KM |
| Denemoor Court | £ 0 | 0 | 0.00 KM |
| Cannadine Road | £ 375,000 | 0 | 0.00 KM |
Nearby Transport
| Name | NLC | TLC | Distance |
|---|---|---|---|
| Kenilworth | 7985 | KNW | 1.46 KM |
| Canley | 1129 | CNL | 5.65 KM |
| Tile Hill | 1035 | THL | 6.27 KM |
| Warwick | 4600 | WRW | 7.45 KM |
| Coventry | 1030 | COV | 7.76 KM |
Nearby Listings
| Address | Price | Type | Score | Distance |
|---|---|---|---|---|
| Sturley Close, Kenilworth | £ 275,000 | BUY | 7 / 10 | 0.00 KM |
| Sturley Close, Kenilworth | £ 280,000 | BUY | Unknown | 0.00 KM |
| Sturley Close, Kenilworth, CV8 | £ 260,000 | BUY | 8 / 10 | 0.01 KM |
| Sturley Close, Kenilworth | £ 289,950 | BUY | 7 / 10 | 0.04 KM |
| Tisdale Rise, Kenilworth | £ 325,000 | BUY | 7 / 10 | 0.06 KM |
Nearby Properties
| Address | Price | Distance |
|---|---|---|
| 23 Sturley Close | £ 89,950 | 0.00 KM |
| 30 Sturley Close | £ 248,000 | 0.00 KM |
| 9 Sturley Close | £ 205,000 | 0.00 KM |
| 21 Sturley Close | £ 230,000 | 0.00 KM |
| 19 Sturley Close | £ 189,950 | 0.00 KM |