Lawson Rose says ..
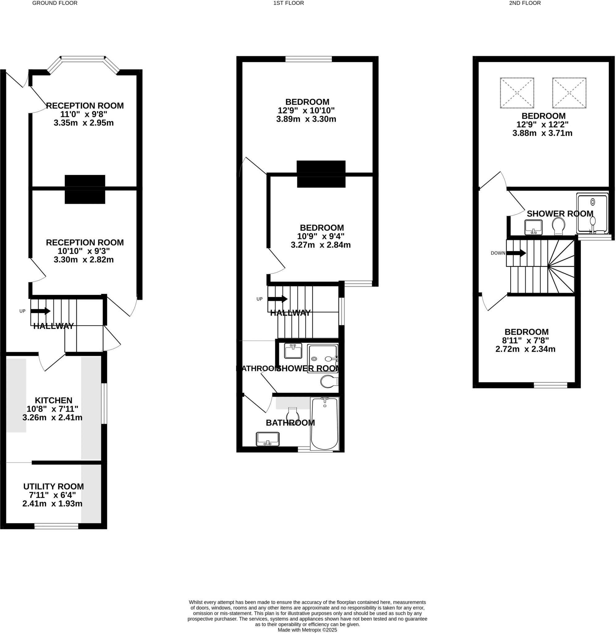
Located on Renny Road in Fratton, this beautifully presented bay and forecourt home offers generous living space across three well-appointed floors. Thoughtfully modernised by the current owners, the property perfectly blends contemporary style with classic charm. On the ground floor, you'll...
Property Oracle says ..
Therefore, we give this property 6 / 10. *Disclaimer: This is our option and does constitute a recommendation or financial advice. Do your own research. *
- Price
- 6
- Condition
- 8
- Location
- 7
- Land
- 3
- Bedrooms
- 4
- Bathrooms
- 3
- Sqft (est)
- 802.81
The heatmap indicates the level of crime in the area. The color of the heatmap indicates the crime severity and recency.
Metrics Year-on-Year
- Average area value
- 225,874.00 £Increased by 4.56 %
- Est sale value
- 281,786.31 £Increased by 35.00 %
- Average area rental value
- 914.00 £/moDecreased by 25.20 %
- Est letting value
- 802.81 £/moUnchanged by 0.00 %
- Est rental Yield
- 4.86 %Decreased by 28.42 %
- Crime Rate
- 3.00 %Unchanged by 0.00 %
from 216,020.00 £
from 208,730.60 £
from 1,222.00 £/mo
from 802.81 £/mo
from 6.79 %
from 3.00 %
Agent Activity
Lawson Rose created the listing.
Nearby Schools
| Name | Type | Ofsted | Distance |
|---|---|---|---|
| Penhale Infant School & Nursery | Academy Converter | 0.19 KM | |
| Fratton Children'S Centre | Children's Centre | 0.19 KM | |
| Priory School | Academy Sponsor Led | Good | 0.56 KM |
| Fernhurst Junior School | Community School | Good | 0.59 KM |
| Devonshire Infant School | Community School | Good | 0.64 KM |
Images
Nearby Streets
| Name | Average Price | Average Sqft | Distance |
|---|---|---|---|
| Proctor Lane | £ 0 | 0 | 0.00 KM |
| Trafalgar Place | £ 0 | 0 | 0.00 KM |
| Fourth Street | £ 0 | 0 | 0.00 KM |
| Fratton Way | £ 162,500 | 0 | 0.00 KM |
| Bowler Court | £ 0 | 0 | 0.00 KM |
Nearby Transport
| Name | NLC | TLC | Distance |
|---|---|---|---|
| Fratton | 5509 | FTN | 0.24 KM |
| Portsmouth And Southsea | 5537 | PMS | 2.04 KM |
| Hilsea | 5539 | HLS | 3.71 KM |
| Portsmouth Harbour | 5540 | PMH | 3.91 KM |
| Cosham | 5896 | CSA | 4.94 KM |
Nearby Listings
| Address | Price | Type | Score | Distance |
|---|---|---|---|---|
| Renny Road, Portsmouth | £ 300,000 | BUY | 6 / 10 | 0.00 KM |
| Renny Road, Fratton, Portsmouth, PO1 | £ 265,000 | BUY | 7 / 10 | 0.00 KM |
| Renny Road, Portsmouth, PO1 5AZ | £ 280,000 | BUY | Unknown | 0.01 KM |
| Lincoln Road, Portsmouth, Hampshire | £ 230,000 | BUY | 6 / 10 | 0.06 KM |
| Lincoln Road, Portsmouth, Hampshire | £ 152,500 | BUY | 6 / 10 | 0.06 KM |
Nearby Properties
| Address | Price | Distance |
|---|---|---|
| 3 Renny Road | £ 137,000 | 0.01 KM |
| 9 Renny Road | £ 142,000 | 0.01 KM |
| 25 Renny Road | £ 185,000 | 0.01 KM |
| 19 Renny Road | £ 142,500 | 0.01 KM |
| 15 Renny Road | £ 191,175 | 0.01 KM |