Springhill Crescent, Madeley
By Foden Property Ltd
£ 89,950
Reviews
2 out of 5 stars
Foden Property Ltd says ..
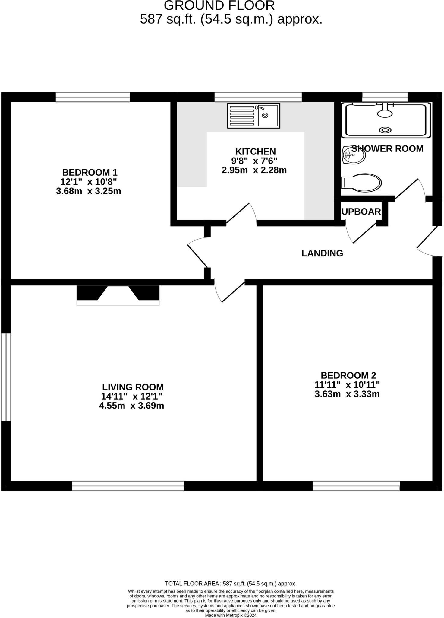
**LANDLORDS ONLY ** TENANT IN SITU ** Current long term tenant is paying £525pcm This spacious ground floor apartment offers a kitchen shower room, two double bedrooms and a generous lounge and should be viewed to fully appreciate the space on offer. Communal parking to the front of the property....
Property Oracle says ..
This two-bedroom apartment in Madeley, Telford, is listed at £89,950. The property is situated on Springhill Crescent, with close proximity to at least two schools, John Randall Primary School and Haughton School which are both rated as good or requires improvement by Ofsted. This makes the location advantageous for families. Public transportation links are also relatively close, but more details are needed regarding the distance to shops and other local services. The exterior of the property looks well-maintained, but the interior photographs show a need for updating or renovation. The kitchen and bathroom appear dated, and while the rooms are functional, some modernisation would enhance the property’s overall appeal. The living space seems cluttered, which needs to be taken into consideration. The lack of private outdoor space is a notable downside. Given the current rental income of £525pcm generated by the tenant in situ, and taking into account that similar properties in the area are selling for similar or higher prices, the overall price seems to be relatively in line with the local market for a property with this condition. More comparable information regarding square footage for similar properties would assist in a more conclusive price evaluation.
Therefore, we give this property 5 / 10. *Disclaimer: This is our option and does constitute a recommendation or financial advice. Do your own research. *
- Price
- 7
- Condition
- 5
- Location
- 7
- Land
- 1
- Bedrooms
- 2
- Bathrooms
- 1
- Sqft (est)
- 587.00
The heatmap indicates the level of crime in the area. The color of the heatmap indicates the crime severity and recency.
Metrics Year-on-Year
- Average area value
- 382,875.00 £Decreased by 13.12 %
- Est sale value
- 304,066.00 £Decreased by 4.43 %
- Average area rental value
- 1,824.00 £/moIncreased by 43.40 %
- Est letting value
- 1,174.00 £/moIncreased by 100.00 %
- Est rental Yield
- 5.72 %Increased by 65.32 %
- Crime Rate
- 13.00 %Unchanged by 0.00 %
Agent Activity
Foden Property Ltd created the listing.
Nearby Schools
| Name | Type | Ofsted | Distance |
|---|---|---|---|
| John Randall Primary School | Community School | Requires improvement | 0.15 KM |
| Haughton School | Community Special School | Good | 0.18 KM |
| Sutton Hill Children Centre - Strengthening Families | Children's Centre | 0.73 KM | |
| Sir Alexander Fleming Primary School | Community School | Good | 0.81 KM |
| St Mary'S Catholic Primary School | Voluntary Aided School | Good | 1.27 KM |
Images
Nearby Streets
| Name | Average Price | Average Sqft | Distance |
|---|---|---|---|
| Sutton Hill | £ 211,500 | 0 | 0.00 KM |
| Meadow Close | £ 0 | 0 | 0.00 KM |
| Sheridan Way | £ 195,000 | 0 | 0.00 KM |
| Harley Close | £ 0 | 0 | 0.00 KM |
| Norton Close | £ 0 | 0 | 0.00 KM |
Nearby Transport
| Name | NLC | TLC | Distance |
|---|---|---|---|
| Telford Central | 4691 | TFC | 5.15 KM |
| Oakengates | 4689 | OKN | 6.65 KM |
| Shifnal | 4619 | SFN | 8.04 KM |
Nearby Listings
| Address | Price | Type | Score | Distance |
|---|---|---|---|---|
| Springhill Crescent, Madeley | £ 89,950 | BUY | 5 / 10 | 0.00 KM |
| Springhill Crescent, Madeley, Telford, Shropshire, TF7 | £ 190,000 | BUY | 6 / 10 | 0.04 KM |
| Springhill Crescent, Madeley, Telford, Shropshire, TF7 | £ 180,000 | BUY | 7 / 10 | 0.08 KM |
| Springhill Close, Madeley, Telford, Shropshire, TF7 | £ 195,000 | BUY | 7 / 10 | 0.10 KM |
| Hills Lane Drive, Madeley | £ 170,000 | BUY | 7 / 10 | 0.11 KM |
Nearby Properties
| Address | Price | Distance |
|---|---|---|
| 12 Springhill Crescent | £ 90,000 | 0.08 KM |
| 35 Springhill Crescent | £ 100,000 | 0.08 KM |
| 43 Springhill Crescent | £ 112,000 | 0.08 KM |
| 47 Singleton | £ 69,950 | 0.12 KM |
| 42 Singleton | £ 11,950 | 0.12 KM |