Connells says ..
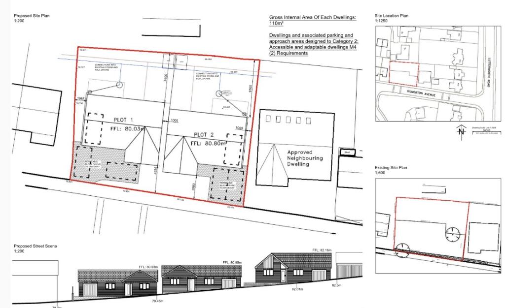
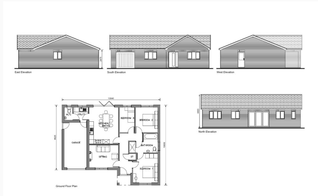
This new build bungalow will benefit from three bedrooms, kitchen/dining room, separate utility room & an integral garage. Situated in a popular area within easy reach of Fosse shopping park and motorway links, viewing will be highly recommended.
Property Oracle says ..
This property is a new build, three-bedroom detached bungalow situated in Aylestone, Leicester. The location offers convenience with proximity to Fosse Shopping Park and major motorway links. Several nearby schools are rated ‘Good’ by Ofsted, making it potentially attractive to families. The architectural plans reveal a well-designed layout, incorporating a garage and what appears to be a decent-sized plot, although exact dimensions are lacking. The list price of £475,000 aligns with other comparable properties in the area, but further information about the property’s actual size (square footage) and specific features (e.g., kitchen appliances, garden size) is needed for a complete assessment of value. The absence of photographs of the completed property restricts a full evaluation of its condition and overall appeal. Prospective buyers should carefully review the specifications and carry out an in-person viewing to fully gauge the property’s quality and suitability to their needs.
Therefore, we give this property 6 / 10. *Disclaimer: This is our option and does constitute a recommendation or financial advice. Do your own research. *
- Price
- 7
- Condition
- 6
- Location
- 7
- Land
- 4
- Bedrooms
- 3
- Bathrooms
- 1
The heatmap indicates the level of crime in the area. The color of the heatmap indicates the crime severity and recency.
Metrics Year-on-Year
- Average area value
- 236,429.00 £Decreased by 2.75 %
- Average area rental value
- 1,138.00 £/moIncreased by 31.11 %
- Est rental Yield
- 5.78 %Increased by 35.05 %
- Crime Rate
- 2.00 %Unchanged by 0.00 %
Agent Activity
Connells created the listing.
Nearby Schools
| Name | Type | Ofsted | Distance |
|---|---|---|---|
| Eyres Monsell Primary School | Community School | Good | 1.17 KM |
| Glen Hills Primary School | Academy Converter | Good | 1.24 KM |
| Montrose School | Community School | Good | 1.43 KM |
| Eyres Monsell And Gilmorton Sure Start Children'S Centre | Children's Centre Linked Site | 1.70 KM | |
| Rolleston Primary School | Community School | Requires improvement | 1.70 KM |
Images
Nearby Streets
| Name | Average Price | Average Sqft | Distance |
|---|---|---|---|
| Tunnicliffe Close | £ 460,000 | 0 | 0.00 KM |
| Glenhills Way | £ 475,000 | 0 | 0.00 KM |
| Morcom Drive | £ 406,063 | 0 | 0.00 KM |
| Waterman Close | £ 0 | 0 | 0.00 KM |
| The Slade Greens | £ 245,000 | 0 | 0.00 KM |
Nearby Transport
| Name | NLC | TLC | Distance |
|---|---|---|---|
| South Wigston | 1949 | SWS | 3.23 KM |
| Narborough | 1881 | NBR | 5.42 KM |
| Leicester | 1947 | LEI | 5.64 KM |
Nearby Listings
| Address | Price | Type | Score | Distance |
|---|---|---|---|---|
| Gilmorton Avenue, Leicester | £ 475,000 | BUY | 6 / 10 | 0.00 KM |
| Gilmorton Avenue, Leicester | £ 475,000 | BUY | 7 / 10 | 0.04 KM |
| Bridgemere Close, Leicester, LE2 | £ 395,000 | BUY | 7 / 10 | 0.07 KM |
| Lutterworth Road, Aylestone, Leicester | £ 500,000 | BUY | 7 / 10 | 0.10 KM |
| Bridgemere Close, Leicester, LE2 | £ 395,000 | BUY | 7 / 10 | 0.11 KM |
Nearby Properties
| Address | Price | Distance |
|---|---|---|
| 4 Keenan Close | £ 141,000 | 0.07 KM |
| 9 Keenan Close | £ 122,500 | 0.07 KM |
| 1 Keenan Close | £ 145,500 | 0.07 KM |
| 2 Keenan Close | £ 134,950 | 0.07 KM |
| 20 Keenan Close | £ 197,000 | 0.07 KM |