Canterbury Road, Margate, CT9
By Miles & Barr
£ 220,000
Reviews
2 out of 5 stars
Miles & Barr says ..
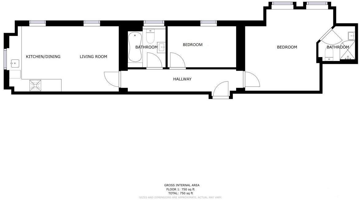
TWO BEDROOM, TWO BATHROOM FIRST FLOOR APARTMENT WITH SECURE ALLOCATED PARKING CLOSE TO BEACHES AND MAINLINE STATION. Within the historic charm of this Grade II listed building is a spacious two-bedroomed, first-floor apartment. On the market with no forward chain, it is close to beache...
Property Oracle says ..
This is a two-bedroom flat located on Canterbury Road in Westbrook, Margate. The property appears to be in good condition, with modern kitchen and bathroom fittings. It benefits from its proximity to local transportation, including Margate train station, and nearby schools. The flat is competitively priced compared to the average price per square foot in the area. As a flat, it doesn’t offer any private garden or land. The location on a main road might be a drawback for some buyers.
Therefore, we give this property 5 / 10. *Disclaimer: This is our option and does constitute a recommendation or financial advice. Do your own research. *
- Price
- 8
- Condition
- 7
- Location
- 6
- Land
- 1
- Bedrooms
- 2
- Bathrooms
- 2
- Sqft (est)
- 750.00
The heatmap indicates the level of crime in the area. The color of the heatmap indicates the crime severity and recency.
Metrics Year-on-Year
- Average area value
- 357,707.00 £Decreased by 10.10 %
- Est sale value
- 341,250.00 £Increased by 2.71 %
- Average area rental value
- 1,362.00 £/moIncreased by 5.75 %
- Est letting value
- 750.00 £/moUnchanged by 0.00 %
- Est rental Yield
- 4.57 %Increased by 17.78 %
- Crime Rate
- 11.00 %Unchanged by 0.00 %
Agent Activity
Miles & Barr created the listing.
Nearby Schools
| Name | Type | Ofsted | Distance |
|---|---|---|---|
| Cherry Tree | Other Independent Special School | Good | 0.30 KM |
| Hartsdown Academy | Academy Converter | Requires improvement | 0.63 KM |
| Garlinge Children'S Centre | Children's Centre | 0.97 KM | |
| Garlinge Primary School And Nursery | Foundation School | Good | 1.10 KM |
| St Gregory'S Catholic Primary School, Margate | Academy Converter | Good | 1.64 KM |
Images
Nearby Streets
| Name | Average Price | Average Sqft | Distance |
|---|---|---|---|
| Naylands | £ 0 | 0 | 0.00 KM |
| All Saints Avenue | £ 0 | 0 | 0.00 KM |
| Waverley Road | £ 0 | 0 | 0.00 KM |
| Pembroke Avenue | £ 450,000 | 0 | 0.00 KM |
| Hall by the Sea Road | £ 0 | 0 | 0.00 KM |
Nearby Transport
| Name | NLC | TLC | Distance |
|---|---|---|---|
| Margate | 5018 | MAR | 0.47 KM |
| Westgate-On-Sea | 5195 | WGA | 3.28 KM |
| Ramsgate | 5023 | RAM | 6.54 KM |
| Birchington-On-Sea | 5163 | BCH | 7.38 KM |
| Broadstairs | 5006 | BSR | 7.78 KM |
Nearby Listings
| Address | Price | Type | Score | Distance |
|---|---|---|---|---|
| Canterbury Road, Margate, CT9 | £ 220,000 | BUY | 5 / 10 | 0.00 KM |
| Canterbury Road, Margate, CT9 | £ 230,000 | BUY | 5 / 10 | 0.00 KM |
| Former Nurse Residence, Canterbury Road , Westbrook | £ 230,000 | BUY | 4 / 10 | 0.00 KM |
| Canterbury Road, Westbrook, Margate, Kent | £ 200,000 | BUY | 6 / 10 | 0.00 KM |
| Former Nurses Residence, 38 Canterbury Road, Margate, Kent, CT9 | £ 230,000 | BUY | 4 / 10 | 0.00 KM |
Nearby Properties
| Address | Price | Distance |
|---|---|---|
| 99a Canterbury Road | £ 130,000 | 0.09 KM |
| 8 Hatfeild Road | £ 30,000 | 0.09 KM |
| 6 Hatfeild Road | £ 465,000 | 0.09 KM |
| 12 Hatfeild Road | £ 430,000 | 0.09 KM |
| 1 Hatfeild Road | £ 32,000 | 0.09 KM |