Building Plot For 2x Semi-Detached Properties - Cliff Bank Hamlet, Waterfoot, Rossendale
By Farrow & Farrow
£ 175,000
Reviews
3 out of 5 stars
Farrow & Farrow says ..
*** NEW *** - BUILD PLOT FOR 2 x SEMI-DETACHED CONTEMPORARY HOMES WITH FULL PLANNING PERMISSION - Superb Opportunity, Ready To Start Build Project, GDV Predicted c. £600,000, All Permissions / Approval Documentation In Place
Property Oracle says ..
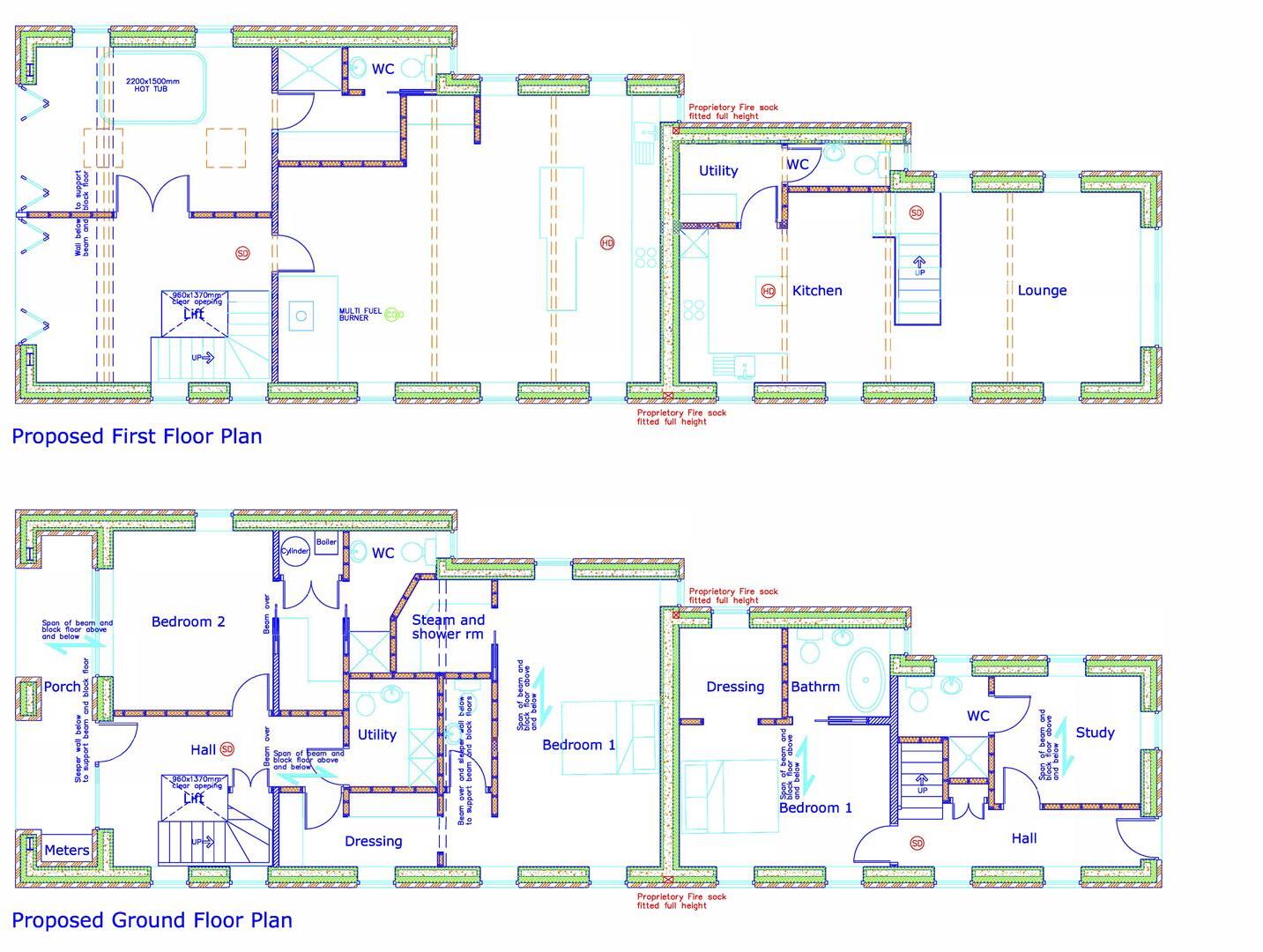
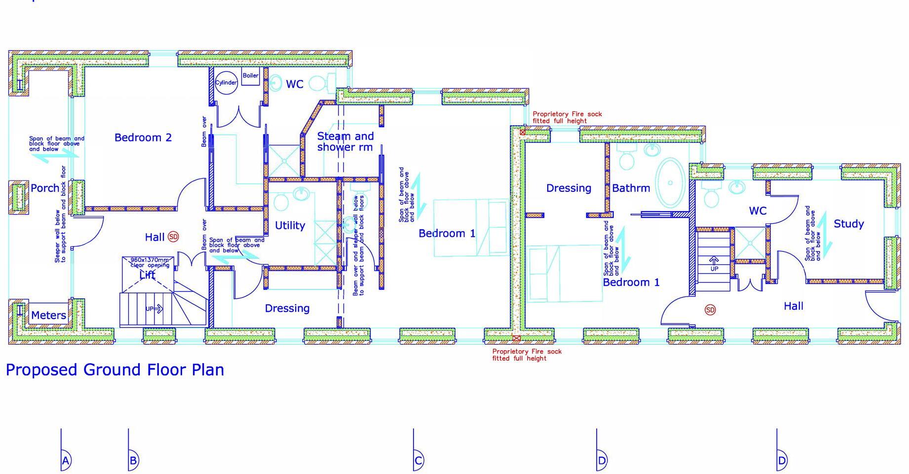
This property, located in Waterfoot, Rossendale, presents a unique opportunity as a building plot for two semi-detached houses. The location benefits from proximity to well-regarded schools and local amenities. The images suggest a modern design with high-quality finishes. The plot allows for gardens and parking, enhancing its appeal. Considering the development potential and the area’s average property prices, the list price appears competitive. This property is ideal for developers or individuals looking to build modern homes in a desirable location.
Therefore, we give this property 7 / 10. *Disclaimer: This is our option and does constitute a recommendation or financial advice. Do your own research. *
- Price
- 7
- Condition
- 9
- Location
- 7
- Land
- 6
- Bedrooms
- 4
- Bathrooms
- 3
- Sqft (est)
- 858.00
The heatmap indicates the level of crime in the area. The color of the heatmap indicates the crime severity and recency.
Metrics Year-on-Year
- Average area value
- 221,238.00 £Decreased by 17.55 %
- Est sale value
- 216,216.00 £Increased by 8.62 %
- Average area rental value
- 875.00 £/moIncreased by 9.79 %
- Est letting value
- 0.00 £/mo
- Est rental Yield
- 4.75 %Increased by 33.43 %
- Crime Rate
- 13.00 %Unchanged by 0.00 %
Agent Activity
Farrow & Farrow created the listing.
Nearby Schools
| Name | Type | Ofsted | Distance |
|---|---|---|---|
| St Anne'S Church Of England Primary School | Voluntary Aided School | Good | 0.37 KM |
| St Peter'S Roman Catholic Primary School, Newchurch | Voluntary Aided School | Outstanding | 0.60 KM |
| Staghills Nursery School | Local Authority Nursery School | Outstanding | 0.87 KM |
| Staghills Children'S Centre | Children's Centre | 0.91 KM | |
| Bacup And Rawtenstall Grammar School | Academy Converter | Outstanding | 0.99 KM |
Images
Nearby Streets
| Name | Average Price | Average Sqft | Distance |
|---|---|---|---|
| Rose Street | £ 0 | 0 | 0.00 KM |
| New Road | £ 0 | 0 | 0.00 KM |
| St Anne's Crescent | £ 0 | 0 | 0.00 KM |
| Thistlemount Mews | £ 0 | 0 | 0.00 KM |
| Ashworth Lane | £ 147,500 | 0 | 0.00 KM |
Nearby Transport
| Name | NLC | TLC | Distance |
|---|---|---|---|
| Burnley Manchester Road | 2549 | BYM | 9.27 KM |
| Burnley Barracks | 2743 | BUB | 9.96 KM |
Nearby Listings
| Address | Price | Type | Score | Distance |
|---|---|---|---|---|
| Building Plot For 2x Semi-Detached Properties - Cliff Bank Hamlet, Waterfoot, Rossendale | £ 175,000 | BUY | 7 / 10 | 0.00 KM |
| Robert Street, Waterfoot, Rossendale | £ 149,950 | BUY | Unknown | 0.11 KM |
| Former Sites of 321 and 323 Burnley Road East, Rossendale, BB4 9JR | £ 3,000 | BUY | 5 / 10 | 0.15 KM |
| Bridleway, Newchurch, Rawtenstall, BB4 9 | £ 299,950 | BUY | 7 / 10 | 0.19 KM |
| Ashworth Road, Waterfoot, Rossendale, BB4 | £ 159,995 | BUY | Unknown | 0.20 KM |
Nearby Properties
| Address | Price | Distance |
|---|---|---|
| 6 Robert Street | £ 55,500 | 0.10 KM |
| 12 Robert Street | £ 95,000 | 0.10 KM |
| 1 Robert Street | £ 104,500 | 0.10 KM |
| 4 Robert Street | £ 20,000 | 0.10 KM |
| 15 Robert Street | £ 112,000 | 0.10 KM |