Church Road, Maidstone, Kent, ME15
By Leafy Estates
£ 2,500,000
Reviews
3 out of 5 stars
Leafy Estates says ..
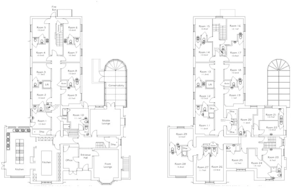
The detached building is laid out over 2 floors with basement and comprises 29 bedrooms - 2 of which have ensuite shower rooms with the remaining 27 having a wc and wash basin - a large and newly fitted kitchen with nu
Property Oracle says ..
This detached property on Church Road in Maidstone presents a unique opportunity. The property boasts a substantial square footage and a high number of bedrooms and bathrooms, making it suitable for a variety of uses, potentially including conversion into multiple units or use as a large HMO. The modern interiors and well-maintained exteriors suggest that the property is in good condition and ready for immediate occupancy. However, the list price of £2,500,000 appears to be high compared to the average property prices in the area. While the property offers several advantages, including a garden, parking, and proximity to local amenities and transportation, potential buyers should carefully consider the price in relation to the local market conditions.
Therefore, we give this property 6 / 10. *Disclaimer: This is our option and does constitute a recommendation or financial advice. Do your own research. *
- Price
- 4
- Condition
- 8
- Location
- 6
- Land
- 7
- Bedrooms
- 29
- Bathrooms
- 29
- Sqft (est)
- 3,543.48
The heatmap indicates the level of crime in the area. The color of the heatmap indicates the crime severity and recency.
Metrics Year-on-Year
- Average area value
- 279,877.00 £Decreased by 1.23 %
- Est sale value
- 1,300,457.16 £Increased by 21.12 %
- Average area rental value
- 1,053.00 £/moDecreased by 7.39 %
- Est letting value
- 3,543.48 £/moUnchanged by 0.00 %
- Est rental Yield
- 4.51 %Decreased by 6.43 %
- Crime Rate
- 4.00 %Unchanged by 0.00 %
Agent Activity
Leafy Estates created the listing.
Nearby Schools
| Name | Type | Ofsted | Distance |
|---|---|---|---|
| Oneschool Global Uk - Maidstone Campus | Other Independent School | 0.22 KM | |
| Archbishop Courtenay Primary School | Academy Sponsor Led | Requires improvement | 0.29 KM |
| Maidstone, St Michael'S Church Of England Junior School | Voluntary Controlled School | Good | 0.52 KM |
| St Michael'S Church Of England Infant School Maidstone | Voluntary Controlled School | Outstanding | 0.52 KM |
| Sunshine Children'S Centre | Children's Centre | 1.34 KM |
Images
Nearby Streets
| Name | Average Price | Average Sqft | Distance |
|---|---|---|---|
| Eccleston Road | £ 0 | 0 | 0.00 KM |
| Wharf Road | £ 0 | 0 | 0.00 KM |
| Lower Tovil | £ 0 | 0 | 0.00 KM |
| Tovil Business Park | £ 0 | 0 | 0.00 KM |
| Orchard Place | £ 0 | 0 | 0.00 KM |
Nearby Transport
| Name | NLC | TLC | Distance |
|---|---|---|---|
| Maidstone West | 5222 | MDW | 0.71 KM |
| Maidstone Barracks | 5237 | MDB | 1.42 KM |
| Maidstone East | 5115 | MDE | 1.71 KM |
| East Farleigh | 5234 | EFL | 3.36 KM |
| Barming | 5133 | BMG | 4.46 KM |
Nearby Listings
| Address | Price | Type | Score | Distance |
|---|---|---|---|---|
| Church Road, Maidstone, Kent, ME15 | £ 2,500,000 | BUY | 6 / 10 | 0.00 KM |
| Church Road, Tovil, Maidstone | £ 825,000 | BUY | 7 / 10 | 0.09 KM |
| Clifford Way, Maidstone, Kent | £ 112,000 | BUY | Unknown | 0.16 KM |
| Clifford Way, Maidstone, Kent | £ 122,500 | BUY | 5 / 10 | 0.16 KM |
| Clifford Way, Maidstone, Kent | £ 210,000 | BUY | 5 / 10 | 0.16 KM |
Nearby Properties
| Address | Price | Distance |
|---|---|---|
| 9 Church Road | £ 230,000 | 0.00 KM |
| 2 Church Road | £ 355,000 | 0.00 KM |
| 10 Church Road | £ 127,000 | 0.00 KM |
| 12 Church Road | £ 250,000 | 0.00 KM |
| 3 Church Road | £ 169,000 | 0.00 KM |