FO
Station Road, Warnham
By Fowlers
£ 475,000
Fowlers says ..
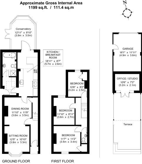
PRELIMINARY DETAILS, PROPERTY ACCEPTING VIEWINGS. A beautifully presented and extended Victorian cottage situated on the edge of Warnham village with countryside on the doorstep and excellent access to Warnham train station with its service to Horsham, Gatwick and London. The property is fully mo...
- Bedrooms
- 3
- Bathrooms
- 1
The heatmap indicates the level of crime in the area. The color of the heatmap indicates the crime severity and recency.
Metrics Year-on-Year
- Average area value
- 797,000.00 £Decreased by 17.13 %
- Average area rental value
- 1,825.00 £/moDecreased by 2.20 %
- Est rental Yield
- 2.75 %Increased by 18.03 %
- Crime Rate
- 12.00 %Unchanged by 0.00 %
from 961,800.00 £
from 1,866.00 £/mo
from 2.33 %
from 12.00 %
Agent Activity
Fowlers created the listing.
Nearby Schools
| Name | Type | Ofsted | Distance |
|---|---|---|---|
| Holbrook Primary School | Community School | Good | 1.88 KM |
| North Heath Community Primary School | Community School | Good | 2.04 KM |
| Warnham Cofe Primary School | Voluntary Controlled School | Good | 2.12 KM |
| Trafalgar Community Infant School | Community School | Good | 2.41 KM |
| The College Of Richard Collyer In Horsham | Further Education | Outstanding | 2.49 KM |
Images
Nearby Streets
| Name | Average Price | Average Sqft | Distance |
|---|---|---|---|
| Wren Close | £ 0 | 0 | 0.00 KM |
| Lakeside | £ 0 | 0 | 0.00 KM |
| Daux Hill | £ 0 | 0 | 0.00 KM |
| Martlets Close | £ 0 | 0 | 0.00 KM |
| Collingwood Road | £ 425,000 | 0 | 0.00 KM |
Nearby Transport
| Name | NLC | TLC | Distance |
|---|---|---|---|
| Warnham | 5316 | WNH | 0.13 KM |
| Littlehaven | 5498 | LVN | 2.90 KM |
| Horsham | 5309 | HRH | 3.23 KM |
| Christs Hospital | 5319 | CHH | 5.93 KM |
| Ockley | 5310 | OLY | 6.56 KM |
Nearby Listings
| Address | Price | Type | Score | Distance |
|---|---|---|---|---|
| Station Road, Warnham | £ 475,000 | BUY | Unknown | 0.00 KM |
| Goldfinch Close, Horsham, West Sussex, RH12 5HE | £ 459,950 | BUY | Unknown | 0.92 KM |
| Greenfinch Way, Horsham | £ 400,000 | BUY | 7 / 10 | 1.00 KM |
| Skylark View, Horsham, RH12 | £ 300,000 | BUY | 7 / 10 | 1.00 KM |
| Skylark View, Horsham, RH12 | £ 425,000 | BUY | 6 / 10 | 1.05 KM |
Nearby Properties
| Address | Price | Distance |
|---|---|---|
| Hudson House | £ 190,000 | 0.01 KM |
| 9 Station Road | £ 352,500 | 0.01 KM |
| 15 Station Road | £ 218,000 | 0.01 KM |
| 12 Station Road | £ 279,950 | 0.01 KM |
| 3 Station Road | £ 330,000 | 0.02 KM |