Key Move says ..
Offered to the market with no onward chain, this well-presented three-bedroom terraced family home provides generous living space throughout and is ideally suited for families, first-time buyers, or investors alike
Property Oracle says ..
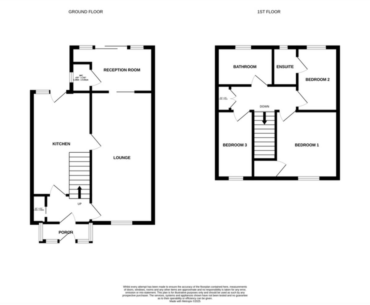
This is a 3-bedroom terraced house located in Penhill, Swindon. The property offers 1,020 sqft of living space and includes 3 bathrooms. While the house requires renovation, it presents an opportunity for buyers to customize and add value. The location provides access to local schools and amenities, with Swindon train station within a reasonable distance. The garden, though in need of landscaping, is a valuable asset. Considering the condition and location, the asking price of £220,000 appears to be fair.
Therefore, we give this property 5 / 10. *Disclaimer: This is our option and does constitute a recommendation or financial advice. Do your own research. *
- Price
- 7
- Condition
- 4
- Location
- 6
- Land
- 5
- Bedrooms
- 3
- Bathrooms
- 3
- Sqft (est)
- 1,020.00
The heatmap indicates the level of crime in the area. The color of the heatmap indicates the crime severity and recency.
Metrics Year-on-Year
- Average area value
- 481,967.00 £Increased by 28.07 %
- Est sale value
- 408,000.00 £Decreased by 15.97 %
- Average area rental value
- 1,254.00 £/moIncreased by 10.97 %
- Est letting value
- 1,020.00 £/moUnchanged by 0.00 %
- Est rental Yield
- 3.12 %Decreased by 13.33 %
- Crime Rate
- 14.00 %Unchanged by 0.00 %
Agent Activity
Key Move created the listing.
Nearby Schools
| Name | Type | Ofsted | Distance |
|---|---|---|---|
| Abbey Meads Community Primary School | Academy Converter | 0.53 KM | |
| Seven Fields Primary School | Academy Converter | Requires improvement | 0.87 KM |
| Sure Start Pinehurst And Penhill Children'S Centre | Children's Centre | 1.11 KM | |
| Catherine Wayte Primary School | Academy Converter | 1.21 KM | |
| Swindon Academy | Academy Sponsor Led | Good | 1.66 KM |
Images
Nearby Streets
| Name | Average Price | Average Sqft | Distance |
|---|---|---|---|
| Latton Close | £ 0 | 0 | 0.00 KM |
| Gable Close | £ 246,667 | 0 | 0.00 KM |
| Winterslow Road | £ 200,000 | 0 | 0.00 KM |
| Staverton Way | £ 0 | 0 | 0.00 KM |
| Westwood Road | £ 0 | 0 | 0.00 KM |
Nearby Transport
| Name | NLC | TLC | Distance |
|---|---|---|---|
| Swindon (Wilts) | 3333 | SWI | 3.41 KM |
Nearby Listings
| Address | Price | Type | Score | Distance |
|---|---|---|---|---|
| Imber Walk, Swindon, SN2 5 | £ 220,000 | BUY | 5 / 10 | 0.00 KM |
| 5 Imber Walk | £ 230,000 | BUY | 5 / 10 | 0.02 KM |
| Imber Walk, Swindon | £ 230,000 | BUY | 6 / 10 | 0.03 KM |
| Imber Walk, Penhill, Swindon, SN2 | £ 230,000 | BUY | 6 / 10 | 0.04 KM |
| Penhill, Swindon, SN2 | £ 170,000 | BUY | Unknown | 0.09 KM |
Nearby Properties
| Address | Price | Distance |
|---|---|---|
| 31 Melksham Close | £ 125,000 | 0.11 KM |
| 75 Ramsbury Avenue | £ 89,000 | 0.12 KM |
| 57 Ramsbury Avenue | £ 130,000 | 0.12 KM |
| 65 Ramsbury Avenue | £ 80,000 | 0.12 KM |
| 87 Ramsbury Avenue | £ 140,500 | 0.12 KM |