Fourier Grove, Dartford, Kent. DA1
By Moxy Property Consultants
£ 415,000
Reviews
3 out of 5 stars
Moxy Property Consultants says ..
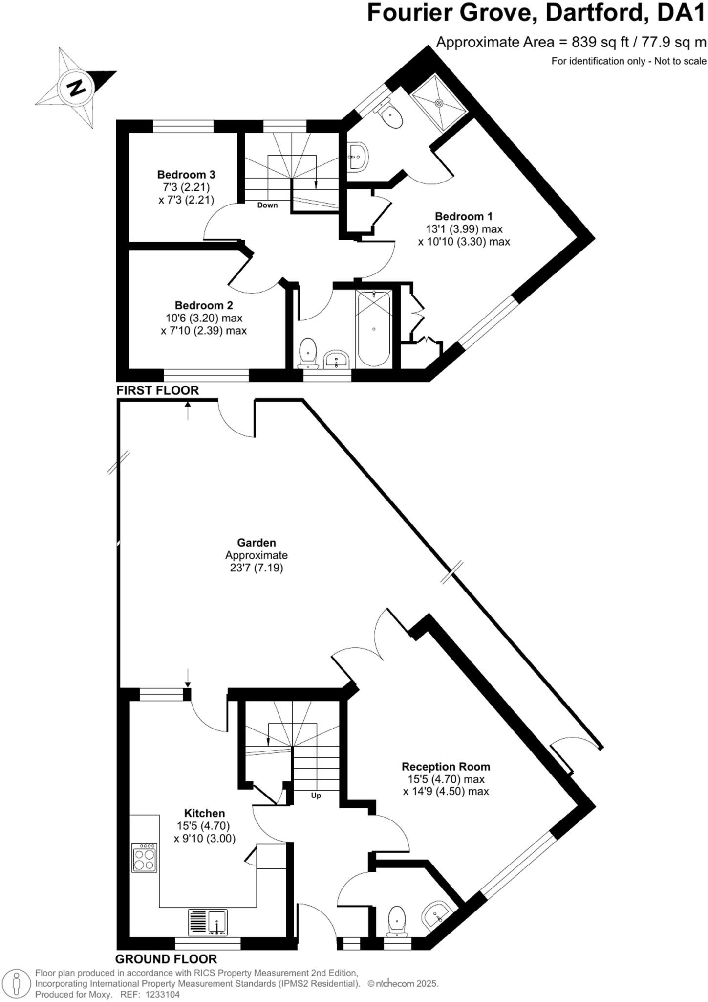
Nestled in a sought after area, this immaculately maintained, three bedroom, semi-detached residence should be top of your list to view. Boasting a perfect blend of modern convenience and comfortable living spaces, this property offers a fantastic opportunity to own a move in ready home!
Property Oracle says ..
This three-bedroom, two-bathroom semi-detached house in Dartford, Kent is presented in excellent condition. The property boasts a modern interior with a contemporary kitchen, spacious living area, and well-appointed bathrooms. The images showcase a clean, well-maintained property with updated fixtures and fittings. The location in the Bridge area of Dartford offers convenient access to Dartford train station, connecting residents to London and other areas. Nearby schools such as The Leigh UTC and Dartford Bridge Community Primary School are additional positives. While the available photographs show only a small paved garden, the overall condition and location of the property indicate it’s likely to appeal to a range of potential buyers, from families to professionals. The lack of plot size data limits a more definitive analysis of the value-for-money factor. However, based on nearby property listings, the list price appears to be reasonable but not exceptionally competitive within the current market.
Therefore, we give this property 6 / 10. *Disclaimer: This is our option and does constitute a recommendation or financial advice. Do your own research. *
- Price
- 7
- Condition
- 9
- Location
- 7
- Land
- 4
- Bedrooms
- 3
- Bathrooms
- 2
The heatmap indicates the level of crime in the area. The color of the heatmap indicates the crime severity and recency.
Metrics Year-on-Year
- Average area value
- 320,968.00 £Decreased by 12.07 %
- Average area rental value
- 1,437.00 £/moDecreased by 3.56 %
- Est rental Yield
- 5.37 %Increased by 9.59 %
- Crime Rate
- 7.00 %Unchanged by 0.00 %
Agent Activity
Moxy Property Consultants created the listing.
Nearby Schools
| Name | Type | Ofsted | Distance |
|---|---|---|---|
| The Leigh Utc | University Technical College | Good | 0.18 KM |
| Dartford Bridge Community Primary School | Academy Sponsor Led | 0.46 KM | |
| River Mill Primary School | Free Schools | 0.96 KM | |
| Temple Hill Children'S Centre | Children's Centre | 1.19 KM | |
| Temple Hill Primary Academy | Academy Converter | Good | 1.19 KM |
Images
Nearby Streets
| Name | Average Price | Average Sqft | Distance |
|---|---|---|---|
| Farthing Close | £ 325,000 | 0 | 0.00 KM |
| Bob Dunn Way | £ 0 | 0 | 0.00 KM |
| Riverside Wharf | £ 325,000 | 0 | 0.00 KM |
| Hardy Grove | £ 300,000 | 0 | 0.00 KM |
| Victoria Industrial Park | £ 400,000 | 0 | 0.00 KM |
Nearby Transport
| Name | NLC | TLC | Distance |
|---|---|---|---|
| Dartford | 5101 | DFD | 1.65 KM |
| Purfleet | 7453 | PFL | 2.60 KM |
| Slade Green | 5154 | SGR | 3.74 KM |
| Stone Crossing | 5248 | SCG | 4.57 KM |
| Crayford | 5100 | CRY | 5.17 KM |
Nearby Listings
| Address | Price | Type | Score | Distance |
|---|---|---|---|---|
| Fourier Grove, Dartford, Kent. DA1 | £ 415,000 | BUY | 6 / 10 | 0.00 KM |
| Muir Drive, Dartford, Kent, DA1 | £ 260,000 | BUY | Unknown | 0.04 KM |
| Muir Drive, Dartford | £ 250,000 | BUY | 7 / 10 | 0.05 KM |
| Muir Drive, Dartford, Kent, DA1 | £ 455,000 | BUY | 6 / 10 | 0.09 KM |
| Muir Drive, Dartford, Kent | £ 455,000 | BUY | 6 / 10 | 0.09 KM |
Nearby Properties
| Address | Price | Distance |
|---|---|---|
| 20 Bennett Place | £ 365,000 | 0.12 KM |
| 7 Bennett Place | £ 233,000 | 0.12 KM |
| 10 Bennett Place | £ 145,995 | 0.12 KM |
| 24 Bennett Place | £ 380,000 | 0.12 KM |
| 13 Bennett Place | £ 220,000 | 0.12 KM |