15 Redlands Road, Kelvinside, G12
By Yates Hellier Ltd
£ 300,000
Reviews
3 out of 5 stars
Yates Hellier Ltd says ..
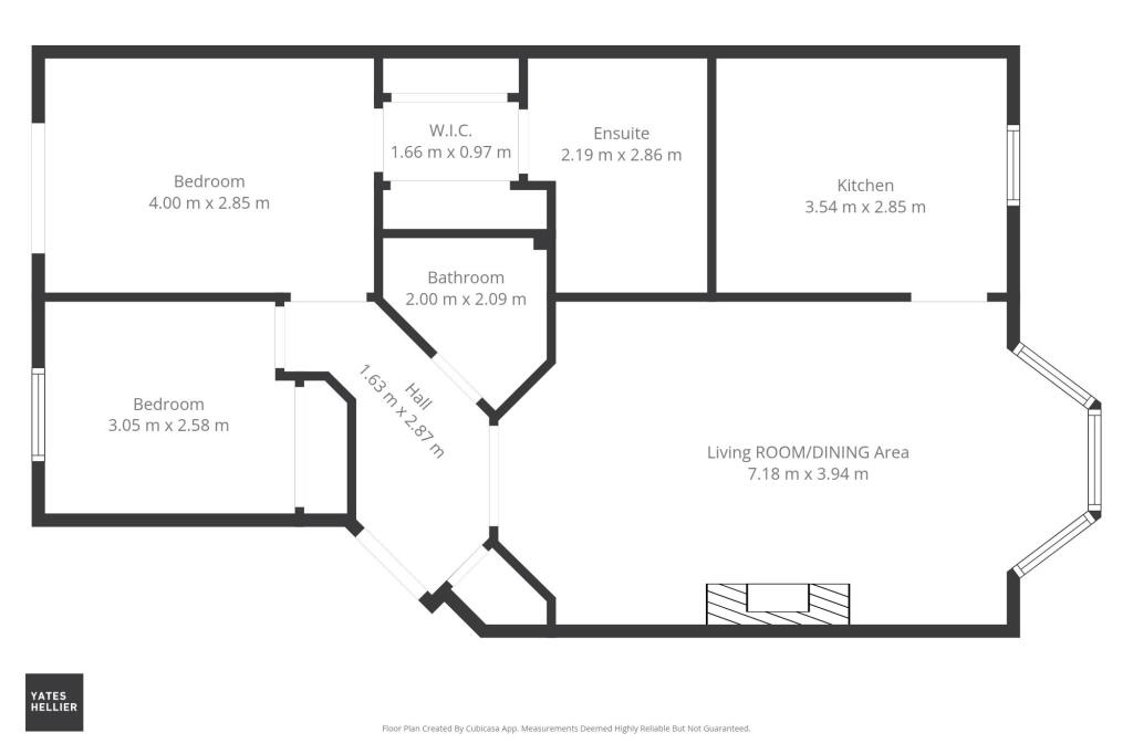
This beautifully appointed and rarely available two-bedroom elevated ground-floor apartment is located within the prestigious and leafy Redlands Road in the heart of Kelvinside, Glasgow’s West End.Positioned within an elegant blonde sandstone building, this characterful property offers a seamless...
Property Oracle says ..
This is a two-bedroom flat located in the desirable Kelvinside area of Glasgow. The property is in generally good condition and benefits from a garden. The property is well-located for access to local amenities and transportation. The flat includes two bathrooms, which is a plus. The property is listed at £300,000, which is slightly above the average price for the area, but the condition and garden may justify this. The property also benefits from parking.
Therefore, we give this property 7 / 10. *Disclaimer: This is our option and does constitute a recommendation or financial advice. Do your own research. *
- Price
- 7
- Condition
- 7
- Location
- 8
- Land
- 8
- Bedrooms
- 2
- Bathrooms
- 2
- Sqft (est)
- 800.72
The heatmap indicates the level of crime in the area. The color of the heatmap indicates the crime severity and recency.
Metrics Year-on-Year
- Average area value
- 273,565.00 £Increased by 3.79 %
- Est sale value
- 225,803.04 £Increased by 9.73 %
- Average area rental value
- 1,350.00 £/moDecreased by 11.01 %
- Est letting value
- 800.72 £/moUnchanged by 0.00 %
- Est rental Yield
- 5.92 %Decreased by 14.33 %
- Crime Rate
- 0.00 %
Agent Activity
Yates Hellier Ltd created the listing.
Images
Nearby Streets
| Name | Average Price | Average Sqft | Distance |
|---|---|---|---|
| Redlands Terrace Lane | £ 0 | 0 | 0.00 KM |
| Horselethill Road | £ 380,000 | 0 | 0.00 KM |
| Belhaven Terrace West Lane | £ 450,000 | 0 | 0.00 KM |
| Kirklee Gardens | £ 395,000 | 0 | 0.00 KM |
| Kirklee Gardens Lane | £ 585,000 | 0 | 0.00 KM |
Nearby Transport
| Name | NLC | TLC | Distance |
|---|---|---|---|
| Partick | 9917 | PTK | 1.76 KM |
| Maryhill | 9957 | MYH | 1.80 KM |
| Kelvindale | 1655 | KVD | 1.83 KM |
| Hyndland | 9845 | HYN | 1.84 KM |
| Summerston | 9959 | SUM | 2.04 KM |
Nearby Listings
| Address | Price | Type | Score | Distance |
|---|---|---|---|---|
| 15 Redlands Road, Kelvinside, G12 | £ 300,000 | BUY | 7 / 10 | 0.00 KM |
| 2/2 13 Redlands Road, Kelvinside, G12 0SJ | £ 330,000 | BUY | Unknown | 0.02 KM |
| Redlands Lane, Dowanhill, Glasgow | £ 629,000 | BUY | 7 / 10 | 0.04 KM |
| Belhaven Terrace West,, Glasgow, G12 | £ 495,000 | BUY | 6 / 10 | 0.14 KM |
| 0/2 23 Belhaven Terrace West, Dowanhill, G12 0UL | £ 495,000 | BUY | Unknown | 0.14 KM |