Pearsons says ..
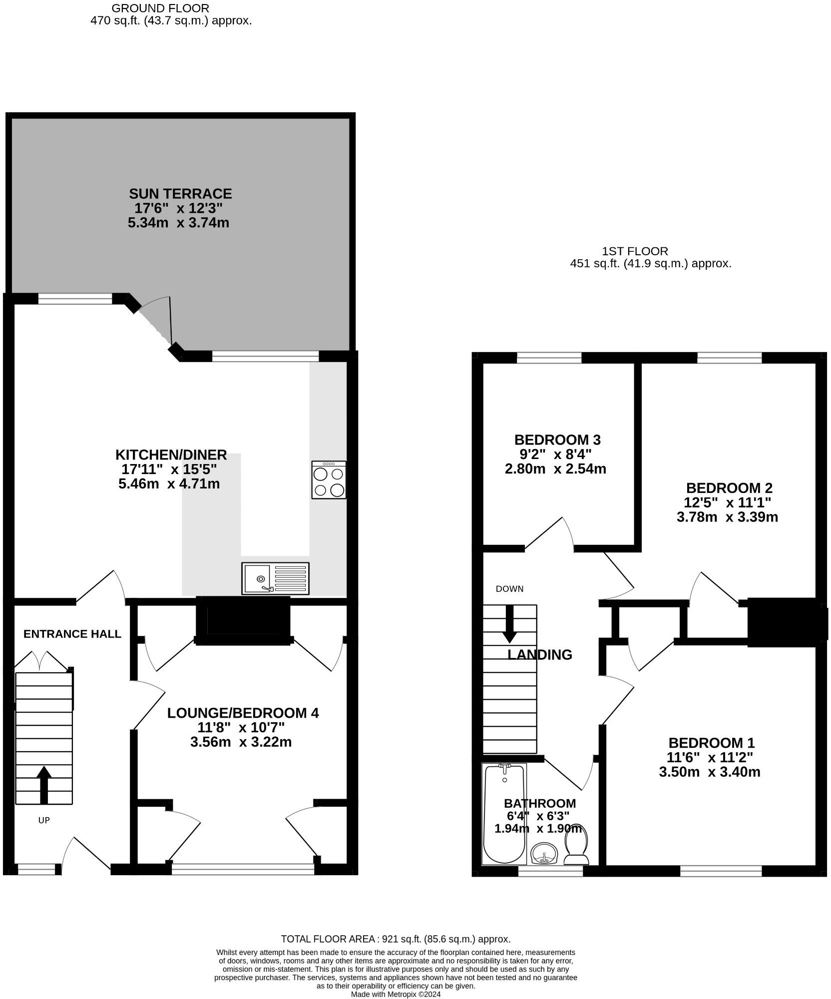
Split across two floors of accomodation, this spacious three/four-bedroom apartment offers highly requested open-plan living accommodation and is sold with no forward chain. Entering via a communal hallway and terrace, the internal accommodation comprises; entrance hall, lounge and an open-plan k...
Property Oracle says ..
This four-bedroom property located on Palmerston Road in Southsea, Portsmouth, presents a mixed bag of pros and cons. Its strong selling point is its location. Southsea is a desirable coastal area known for its vibrant atmosphere, and the proximity to the city center and railway station is a significant advantage. The property’s location near several schools could be attractive to families. However, the provided photos reveal that the property could benefit from some modernisation. The interior decor seems somewhat dated, and while the kitchen looks relatively modern, some updates might increase the property’s market value and desirability. The small, paved patio area provides some outdoor space but is limited. The lack of information regarding plot size makes a definitive square footage assessment impossible. Overall, this property offers a comfortable living space in a good location, but potential buyers should factor in the likely costs associated with refurbishment to bring it up to modern standards. While the price is relatively in line with others in the area, the lack of detail regarding comparative sales and the absence of plot size data make it impossible to accurately determine the overall value relative to the market.
Therefore, we give this property 5 / 10. *Disclaimer: This is our option and does constitute a recommendation or financial advice. Do your own research. *
- Price
- 7
- Condition
- 6
- Location
- 7
- Land
- 3
- Bedrooms
- 4
- Bathrooms
- 1
- Sqft (est)
- 921.00
The heatmap indicates the level of crime in the area. The color of the heatmap indicates the crime severity and recency.
Metrics Year-on-Year
- Average area value
- 190,742.00 £Decreased by 45.70 %
- Est sale value
- 332,481.00 £Decreased by 1.10 %
- Average area rental value
- 1,259.00 £/moDecreased by 5.12 %
- Est letting value
- 1,842.00 £/moIncreased by 100.00 %
- Est rental Yield
- 7.92 %Increased by 74.83 %
- Crime Rate
- 19.00 %Unchanged by 0.00 %
Agent Activity
Pearsons marked this listing as sold.
Pearsons created the listing.
Nearby Schools
| Name | Type | Ofsted | Distance |
|---|---|---|---|
| St John'S College | Other Independent School | 0.33 KM | |
| Cottage Grove Primary School | Academy Converter | 0.57 KM | |
| Portsmouth High School | Other Independent School | 0.61 KM | |
| St Swithun'S Catholic Primary School | Voluntary Aided School | Good | 1.03 KM |
| Mayville High School | Other Independent School | 1.07 KM |
Images
Nearby Streets
| Name | Average Price | Average Sqft | Distance |
|---|---|---|---|
| St Judes Close | £ 1,095,000 | 0 | 0.00 KM |
| Queens Way | £ 0 | 0 | 0.00 KM |
| Worsley Road | £ 0 | 0 | 0.00 KM |
| Sussex Road | £ 0 | 0 | 0.00 KM |
| Castle Close | £ 0 | 0 | 0.00 KM |
Nearby Transport
| Name | NLC | TLC | Distance |
|---|---|---|---|
| Portsmouth And Southsea | 5537 | PMS | 1.42 KM |
| Fratton | 5509 | FTN | 1.99 KM |
| Portsmouth Harbour | 5540 | PMH | 2.46 KM |
| Hilsea | 5539 | HLS | 5.75 KM |
| Cosham | 5896 | CSA | 6.66 KM |
Nearby Listings
| Address | Price | Type | Score | Distance |
|---|---|---|---|---|
| Palmerston Road, Southsea | £ 265,000 | BUY | Unknown | 0.03 KM |
| Palmerston Road, Southsea | £ 395,000 | BUY | Unknown | 0.03 KM |
| Palmerston Road, Southsea | £ 395,000 | BUY | Unknown | 0.03 KM |
| Palmerston Road, Southsea | £ 265,000 | BUY | 6 / 10 | 0.05 KM |
| Palmerston Road, Southsea | £ 265,000 | BUY | 5 / 10 | 0.06 KM |
Nearby Properties
| Address | Price | Distance |
|---|---|---|
| 48 Kent Road | £ 180,000 | 0.09 KM |
| 44 Kent Road | £ 140,000 | 0.09 KM |
| 42 Kent Road | £ 88,000 | 0.09 KM |
| 16a Marmion Road | £ 150,000 | 0.13 KM |
| 28a Marmion Road | £ 195,000 | 0.13 KM |