Kilmington Road, London, SW13
By Fine & Country
£ 1,400,000
Reviews
3 out of 5 stars
Fine & Country says ..
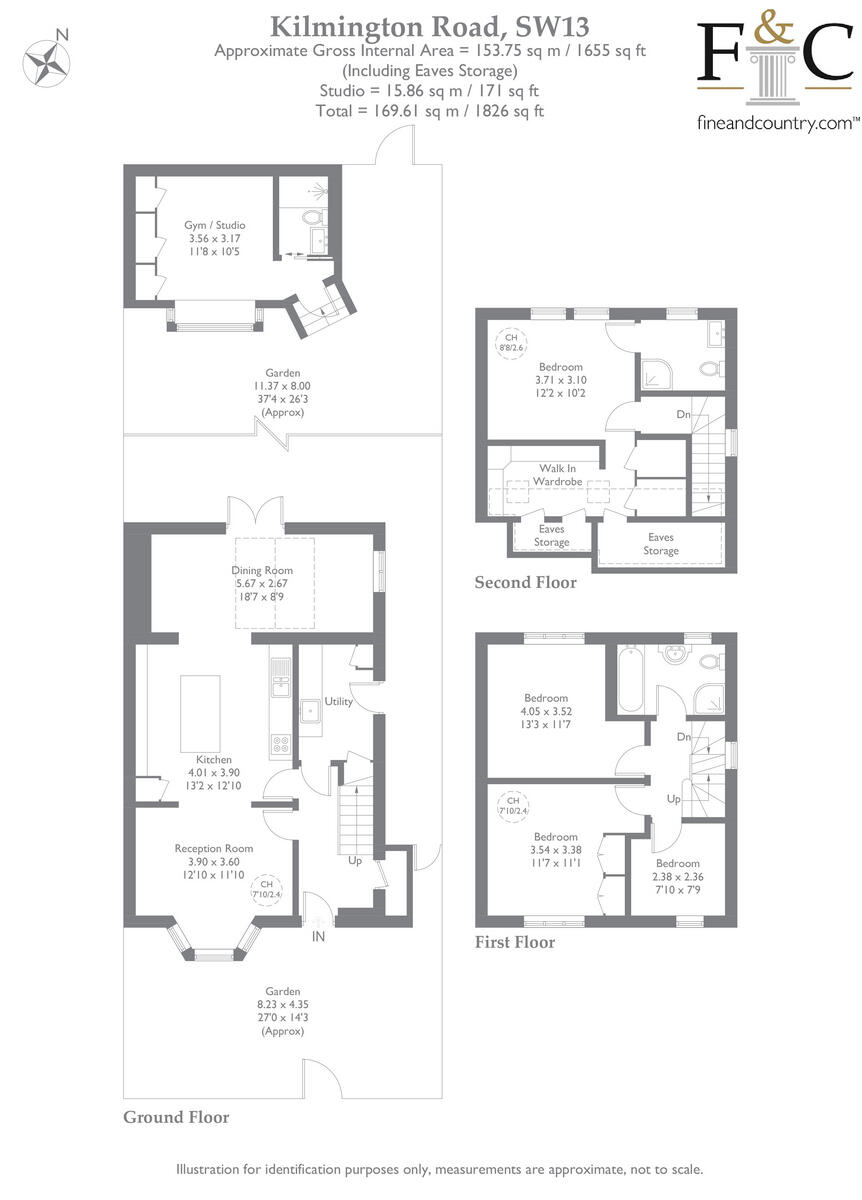
Fine & Country is thrilled to unveil this exceptional and meticulously reimagined four-bedroom semi-detached residence, nestled on the coveted Kilmington Road in Barnes London SW13
Property Oracle says ..
This semi-detached property on Kilmington Road, Barnes, offers a blend of modern living and suburban charm. The house features four bedrooms and three bathrooms, making it suitable for families. The interior is well-presented, with a modern kitchen and updated bathrooms. The property also benefits from a garden, providing valuable outdoor space. Located in a sought-after area with good schools and transport links, this property is a desirable family home. The price is competitive within the local market, reflecting the property’s condition, size, and location.
Therefore, we give this property 7 / 10. *Disclaimer: This is our option and does constitute a recommendation or financial advice. Do your own research. *
- Price
- 7
- Condition
- 8
- Location
- 8
- Land
- 7
- Bedrooms
- 4
- Bathrooms
- 3
- Sqft (est)
- 1,826.00
The heatmap indicates the level of crime in the area. The color of the heatmap indicates the crime severity and recency.
Metrics Year-on-Year
- Average area value
- 566,772.00 £Decreased by 52.41 %
- Est sale value
- 657,360.00 £Decreased by 49.72 %
- Average area rental value
- 3,583.00 £/moIncreased by 12.28 %
- Est letting value
- 3,652.00 £/moIncreased by 100.00 %
- Est rental Yield
- 7.59 %Increased by 135.71 %
- Crime Rate
- 2.00 %Unchanged by 0.00 %
Agent Activity
Fine & Country created the listing.
Nearby Schools
| Name | Type | Ofsted | Distance |
|---|---|---|---|
| Barnes Children'S Centre | Children's Centre | 0.22 KM | |
| Lowther Primary School | Community School | Good | 0.32 KM |
| The Swedish School | Other Independent School | Outstanding | 0.40 KM |
| St Paul'S School | Other Independent School | 0.47 KM | |
| The Harrodian School | Other Independent School | Good | 0.68 KM |
Images
Nearby Streets
| Name | Average Price | Average Sqft | Distance |
|---|---|---|---|
| Chiswick Lane South | £ 0 | 0 | 0.00 KM |
| Mawson Lane | £ 0 | 0 | 0.00 KM |
| British Grove | £ 0 | 0 | 0.00 KM |
| Hampshire Hog Lane | £ 680,000 | 0 | 0.00 KM |
| Ironmongers Mews | £ 0 | 0 | 0.00 KM |
Nearby Transport
| Name | NLC | TLC | Distance |
|---|---|---|---|
| Barnes Bridge | 5580 | BNI | 1.92 KM |
| Barnes | 5551 | BNS | 1.99 KM |
| Chiswick | 5583 | CHK | 2.99 KM |
| Mortlake | 5600 | MTL | 3.43 KM |
| Shepherd'S Bush | 9587 | SPB | 3.44 KM |
Nearby Listings
| Address | Price | Type | Score | Distance |
|---|---|---|---|---|
| Kilmington Road, London, SW13 | £ 1,400,000 | BUY | 7 / 10 | 0.00 KM |
| Kilmington Road, Barnes, SW13 | £ 1,400,000 | BUY | 7 / 10 | 0.01 KM |
| Howsman Road, Barnes, London, SW13 | £ 1,350,000 | BUY | 8 / 10 | 0.07 KM |
| Howsman Road, London, SW13 | £ 1,400,000 | BUY | 8 / 10 | 0.08 KM |
| Kilmington Road, London | £ 1,600,000 | BUY | Unknown | 0.08 KM |
Nearby Properties
| Address | Price | Distance |
|---|---|---|
| 17 Kilmington Road | £ 817,000 | 0.09 KM |
| 47 Kilmington Road | £ 1,400,000 | 0.09 KM |
| 41 Kilmington Road | £ 925,000 | 0.09 KM |
| 43 Kilmington Road | £ 1,300,000 | 0.09 KM |
| 45 Kilmington Road | £ 1,260,000 | 0.09 KM |