Cwrt Sart, Neath, Neath Port Talbot.
By Clee Tompkinson & Francis
£ 150,000
Reviews
3 out of 5 stars
Clee Tompkinson & Francis says ..
We're delighted to offer for sale this substantial plot with full planning permission located in Cwrt Sart, Neath. The property will be a detached 5 bedroom executive spacious family home - mirror image of Cwrt Y Chapel. Planning reference number is P/2006/0312. Call for more information. CTFDL.
Property Oracle says ..
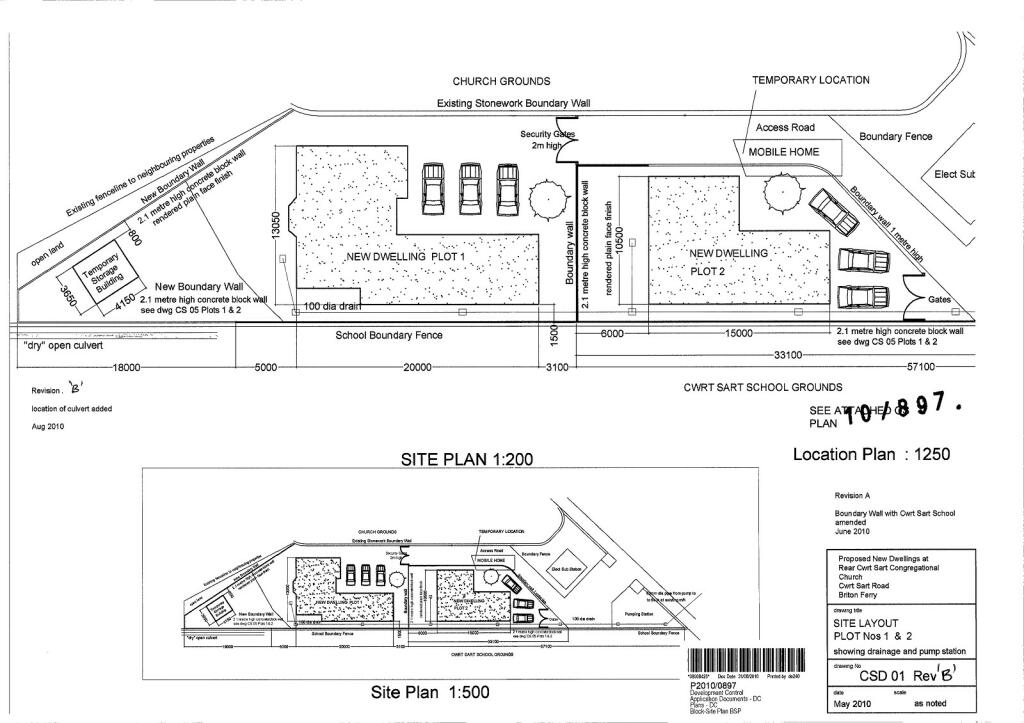
Based on the provided information, the property at Cwrt Sart, Neath, SA11 2SY is located in Briton Ferry East, Neath Port Talbot. The surrounding area shows a mix of property values, with some properties significantly more expensive than the listed price of £150,000. The lack of information regarding the property’s size, number of bedrooms and bathrooms, and condition makes a comprehensive analysis challenging. However, nearby properties on Cwrt Sart range from £71,000 to £149,950, suggesting the listed property might be at the higher end of the price range for the street. The site plan shows a potential for development, which could influence value. The proximity to Briton Ferry train station and several schools is a positive factor. More details about the property’s condition and size are needed for a complete evaluation.
Therefore, we give this property 6 / 10. *Disclaimer: This is our option and does constitute a recommendation or financial advice. Do your own research. *
- Price
- 6
- Condition
- 0
- Location
- 7
- Land
- 0
- Bedrooms
- 0
- Bathrooms
- 0
The heatmap indicates the level of crime in the area. The color of the heatmap indicates the crime severity and recency.
Metrics Year-on-Year
- Average area value
- 406,364.00 £Increased by 51.98 %
- Average area rental value
- 1,294.00 £/moIncreased by 17.32 %
- Est rental Yield
- 3.82 %Decreased by 22.83 %
- Crime Rate
- 13.00 %Unchanged by 0.00 %
Agent Activity
Clee Tompkinson & Francis created the listing.
Nearby Schools
| Name | Type | Ofsted | Distance |
|---|---|---|---|
| Ygg Tyle'R Ynn | Welsh Establishment | 0.33 KM | |
| Horizons Educare | Welsh Establishment | 0.98 KM | |
| St Joseph'S Catholic Primary School (Neath) | Welsh Establishment | 2.48 KM | |
| Gnoll Primary School | Welsh Establishment | 2.58 KM | |
| Dwr Y Felin Comprehensive School | Welsh Establishment | 2.60 KM |
Images
Nearby Streets
| Name | Average Price | Average Sqft | Distance |
|---|---|---|---|
| Morgan's Terrace | £ 0 | 0 | 0.00 KM |
| Station Road | £ 0 | 0 | 0.00 KM |
| Llys y Nant | £ 115,000 | 0 | 0.00 KM |
| Short Street | £ 202,500 | 0 | 0.00 KM |
| Alexander Road | £ 174,999 | 0 | 0.00 KM |
Nearby Transport
| Name | NLC | TLC | Distance |
|---|---|---|---|
| Briton Ferry | 4187 | BNF | 0.59 KM |
| Neath | 4216 | NTH | 2.46 KM |
| Baglan | 4186 | BAJ | 3.16 KM |
| Skewen | 4217 | SKE | 3.73 KM |
| Port Talbot Parkway | 4181 | PTA | 7.01 KM |
Nearby Listings
| Address | Price | Type | Score | Distance |
|---|---|---|---|---|
| Cwrt Sart, Neath, Neath Port Talbot. | £ 700,000 | BUY | 6 / 10 | 0.00 KM |
| Cwrt Sart, Neath, Neath Port Talbot. | £ 150,000 | BUY | 6 / 10 | 0.00 KM |
| Cwrt Sart, Neath, Neath Port Talbot. | £ 159,995 | BUY | 5 / 10 | 0.00 KM |
| Morgans Terrace, Neath, West Glamorgan. SA11 2SY | £ 129,995 | BUY | 7 / 10 | 0.07 KM |
| Morgans Terrace, Penrhiwtyn, Neath . SA11 2SY | £ 135,000 | BUY | 6 / 10 | 0.07 KM |
Nearby Properties
| Address | Price | Distance |
|---|---|---|
| 23 Cwrt Sart | £ 71,000 | 0.01 KM |
| 7 Cwrt Sart | £ 107,000 | 0.01 KM |
| 17 Cwrt Sart | £ 179,000 | 0.01 KM |
| 19 Cwrt Sart | £ 105,000 | 0.01 KM |
| 25 Cwrt Sart | £ 119,950 | 0.01 KM |