Greenfield Road, Farnham, Surrey, GU9
By Bridges Estate Agents
£ 450,000
Reviews
3 out of 5 stars
Bridges Estate Agents says ..
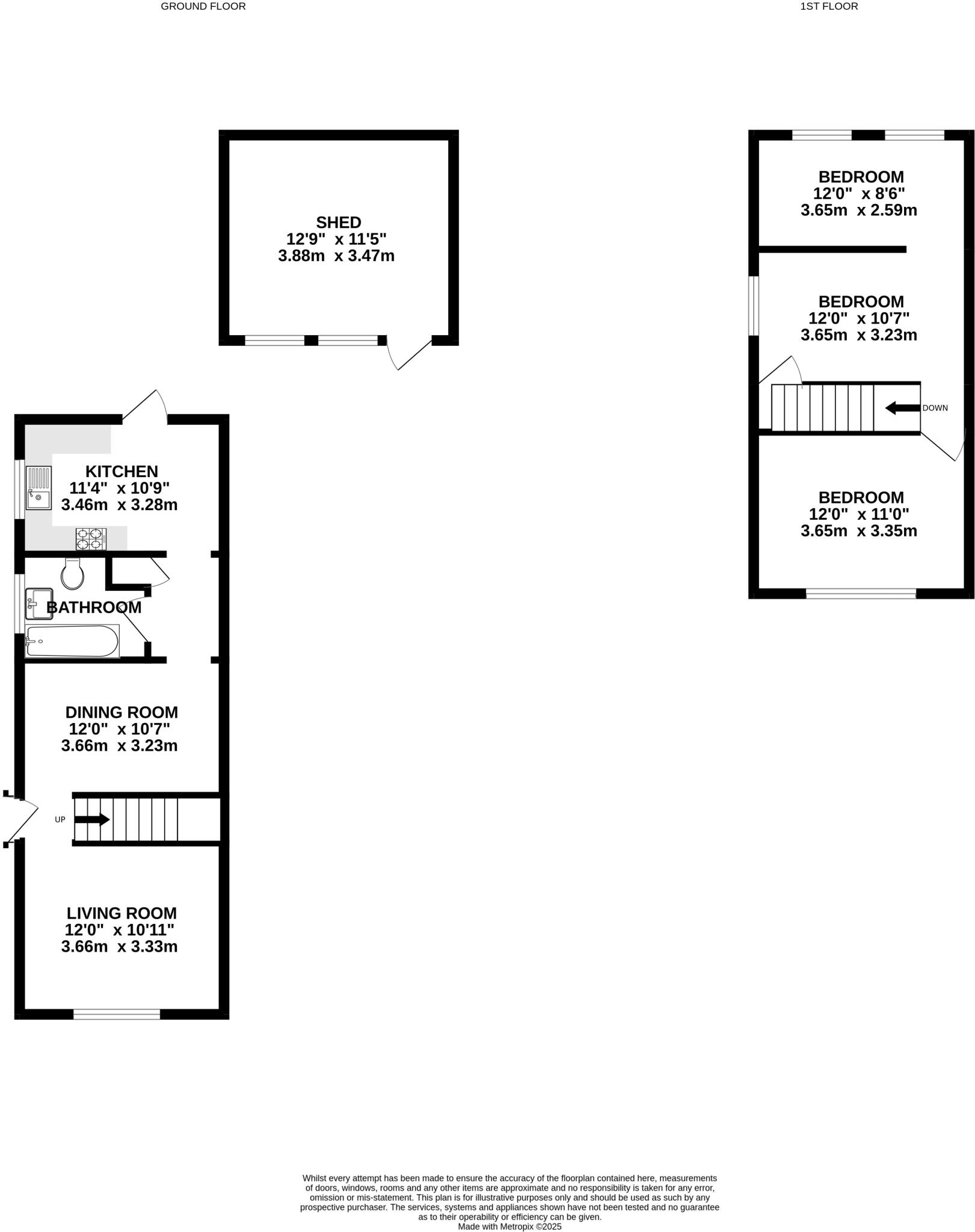
Available to the market is this three double bedroom semi-detached family home ideally situated within walking distance to sought after schools. The property comprises a welcoming entrance which provides access to a spacious front aspect lounge area, and a dining room with a feature fireplace, in...
Property Oracle says ..
The property is a 3-bedroom semi-detached house located on Greenfield Road in Farnham, Surrey. It benefits from being close to schools and a train station providing links to London. The property appears to be in reasonable condition, although some modernisation might enhance its appeal. The images suggest a functional layout, with a garden present. The kitchen and bathroom appear dated but serviceable. The list price of £450,000 appears to be relatively reasonable compared to similar properties, however, further investigation is needed into the specific condition and plot size.
Therefore, we give this property 6 / 10. *Disclaimer: This is our option and does constitute a recommendation or financial advice. Do your own research. *
- Price
- 7
- Condition
- 6
- Location
- 8
- Land
- 5
- Bedrooms
- 3
- Bathrooms
- 1
- Sqft (est)
- 893.28
The heatmap indicates the level of crime in the area. The color of the heatmap indicates the crime severity and recency.
Metrics Year-on-Year
- Average area value
- 613,333.00 £Decreased by 16.79 %
- Est sale value
- 669,960.00 £Increased by 73.61 %
- Average area rental value
- 2,749.00 £/moIncreased by 5.81 %
- Est letting value
- 2,679.84 £/moIncreased by 200.00 %
- Est rental Yield
- 5.38 %Increased by 27.19 %
- Crime Rate
- 10.00 %Unchanged by 0.00 %
Agent Activity
Bridges Estate Agents created the listing.
Nearby Schools
| Name | Type | Ofsted | Distance |
|---|---|---|---|
| St Peter'S Cofe Primary School | Voluntary Aided School | Good | 0.21 KM |
| Weydon School | Academy Converter | 0.36 KM | |
| Highfield South Farnham School | Academy Sponsor Led | Outstanding | 1.47 KM |
| Potters Gate Sure Start Children'S Centre | Children's Centre | 1.84 KM | |
| Potters Gate Cofe Primary School | Academy Converter | 1.84 KM |
Images
Nearby Streets
| Name | Average Price | Average Sqft | Distance |
|---|---|---|---|
| Lynton Close | £ 0 | 0 | 0.00 KM |
| Saint Peter's Gardens | £ 441,667 | 0 | 0.00 KM |
| School Hill | £ 0 | 0 | 0.00 KM |
| Middlefield Close | £ 0 | 0 | 0.00 KM |
| Laurel Grove | £ 0 | 0 | 0.00 KM |
Nearby Transport
| Name | NLC | TLC | Distance |
|---|---|---|---|
| Farnham | 5545 | FNH | 2.78 KM |
| Bentley (Hampshire) | 5624 | BTY | 6.30 KM |
| Aldershot | 5623 | AHT | 7.97 KM |
Nearby Listings
| Address | Price | Type | Score | Distance |
|---|---|---|---|---|
| Greenfield Road, Farnham, Surrey, GU9 | £ 450,000 | BUY | 6 / 10 | 0.00 KM |
| Greenfield Road, Farnham, Surrey, GU9 | £ 440,000 | BUY | 7 / 10 | 0.05 KM |
| Little Green Lane, Farnham, Surrey, GU9 | £ 750,000 | BUY | 6 / 10 | 0.22 KM |
| Beldham Road, Farnham, Surrey, GU9 | £ 325,000 | BUY | 6 / 10 | 0.23 KM |
| Shortheath Crest, Farnham, Surrey, GU9 | £ 850,000 | BUY | 8 / 10 | 0.23 KM |
Nearby Properties
| Address | Price | Distance |
|---|---|---|
| 44 Greenfield Road | £ 182,000 | 0.06 KM |
| 16 Greenfield Road | £ 277,500 | 0.06 KM |
| 37 Greenfield Road | £ 410,000 | 0.06 KM |
| 33 Greenfield Road | £ 410,000 | 0.06 KM |
| 18 Greenfield Road | £ 430,000 | 0.06 KM |