Fox & Sons says ..
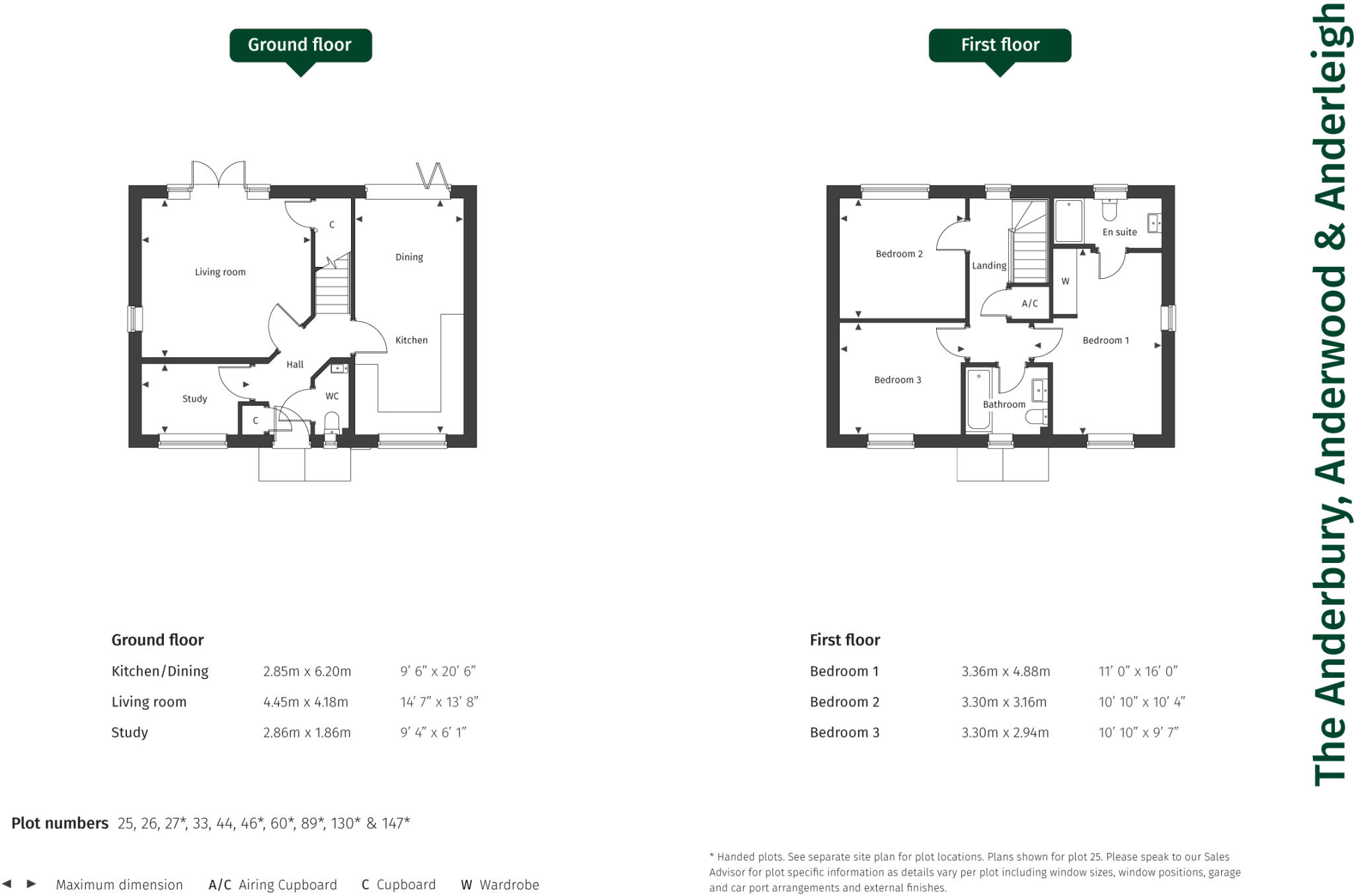
**THREE BEDROOM DETACHED HOME **1149 SQFT **GARAGE AND OFF ROAD PARKING **ENERGY EFFICIENT HEATING **STUDY AND DOWNSTAIRS WC **READY NOVEMBER 2026
Property Oracle says ..
This is a modern detached house in good condition, located in a desirable area of New Milton. The property benefits from a garden and is situated within a reasonable distance of local schools and transportation links. While the price per square foot is above the local average, the property’s condition and modern amenities justify the asking price. It would make an ideal family home.
Therefore, we give this property 7 / 10. *Disclaimer: This is our option and does constitute a recommendation or financial advice. Do your own research. *
- Price
- 7
- Condition
- 9
- Location
- 7
- Land
- 6
- Bedrooms
- 3
- Bathrooms
- 2
- Sqft (est)
- 840.34
The heatmap indicates the level of crime in the area. The color of the heatmap indicates the crime severity and recency.
Metrics Year-on-Year
- Average area value
- 413,623.00 £Decreased by 6.20 %
- Est sale value
- 415,127.96 £Increased by 32.09 %
- Average area rental value
- 1,217.00 £/moDecreased by 13.57 %
- Est letting value
- 840.34 £/moUnchanged by 0.00 %
- Est rental Yield
- 3.53 %Decreased by 7.83 %
- Crime Rate
- 0.00 %
Agent Activity
Fox & Sons created the listing.
Nearby Schools
| Name | Type | Ofsted | Distance |
|---|---|---|---|
| Ashley Junior School | Foundation School | Good | 1.34 KM |
| Ashley Infant School | Community School | Good | 1.50 KM |
| Tiptoe Primary School | Community School | Good | 1.57 KM |
| Ballard School | Other Independent School | 1.61 KM | |
| New Milton Junior School | Community School | Good | 2.72 KM |
Images
Nearby Streets
| Name | Average Price | Average Sqft | Distance |
|---|---|---|---|
| Park Road | £ 0 | 0 | 0.00 KM |
| Hilton Road | £ 0 | 0 | 0.00 KM |
| Hermitage Close | £ 1,000,000 | 0 | 0.00 KM |
| Meadow Road | £ 0 | 0 | 0.00 KM |
| The Parade | £ 0 | 0 | 0.00 KM |
Nearby Transport
| Name | NLC | TLC | Distance |
|---|---|---|---|
| New Milton | 5881 | NWM | 1.89 KM |
| Sway | 5884 | SWY | 4.35 KM |
| Hinton Admiral | 5880 | HNA | 7.79 KM |
| Brockenhurst | 5886 | BCU | 9.66 KM |
Nearby Listings
| Address | Price | Type | Score | Distance |
|---|---|---|---|---|
| Brockhills Lane, New Milton | £ 570,000 | BUY | 7 / 10 | 0.00 KM |
| Brockhills Lane, New Milton | £ 335,000 | BUY | 7 / 10 | 0.00 KM |
| Brockhills Lane, New Milton | £ 375,000 | BUY | 7 / 10 | 0.00 KM |
| Brockhills Lane, New Milton | £ 335,000 | BUY | 7 / 10 | 0.00 KM |
| Brockhills Lane, New Milton | £ 690,000 | BUY | 7 / 10 | 0.00 KM |
Nearby Properties
| Address | Price | Distance |
|---|---|---|
| Woodcroft | £ 812,000 | 0.10 KM |
| Ashmore House | £ 1,100,000 | 0.10 KM |
| Grey Gables | £ 370,000 | 0.10 KM |
| 1 Brockhills Lane | £ 260,000 | 0.10 KM |
| 3 Brockhills Lane | £ 300,000 | 0.10 KM |