FO
Lilian Close, Stoke Newington, London, N16
By Foxtons
£ 560,000
Reviews
2 out of 5 stars
Foxtons says ..
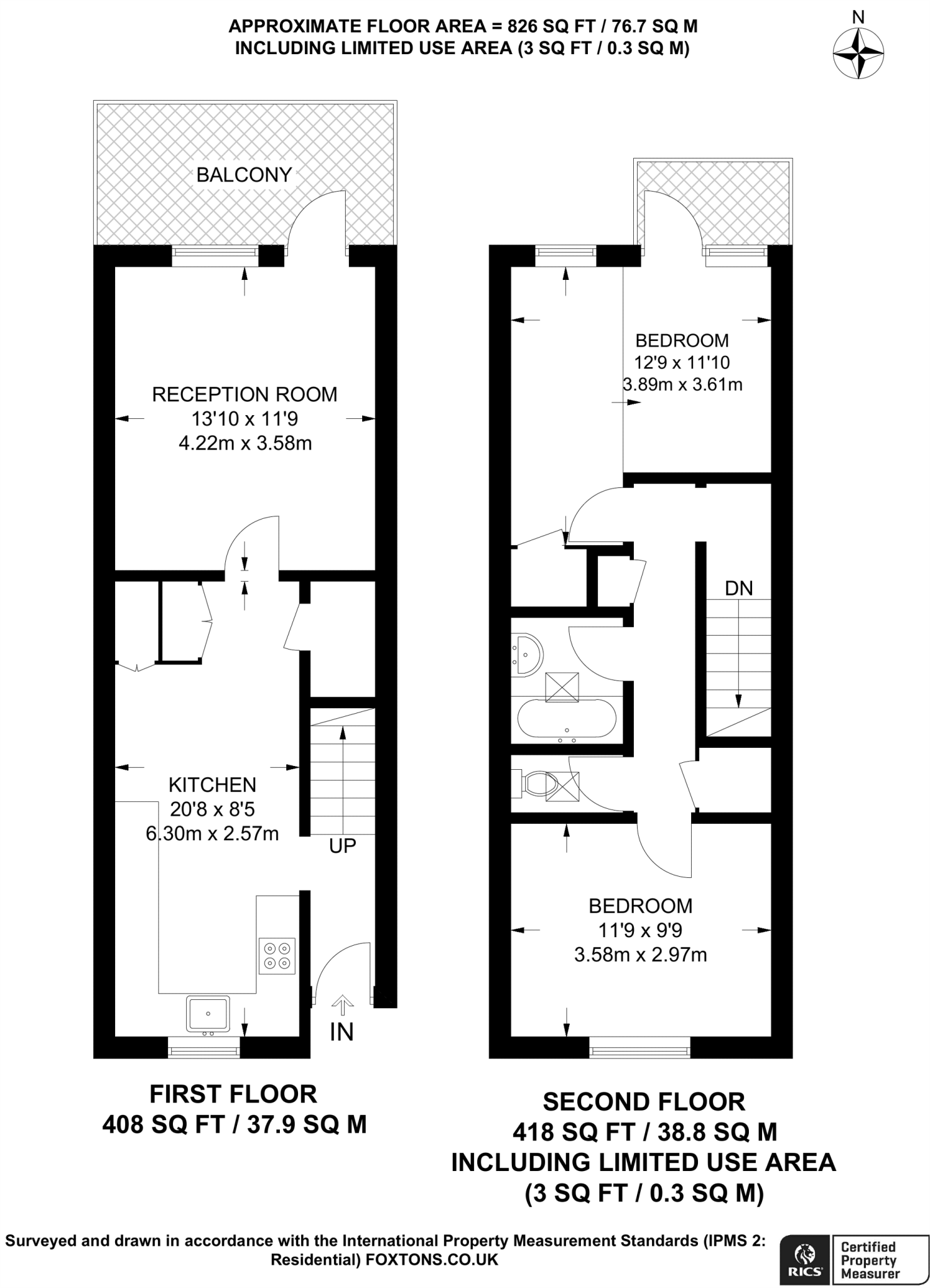
A charming 2 bedroom split level flat situated within a secure purpose built block boasting bright accommodation throughout and a private balcony.
Property Oracle says ..
Therefore, we give this property 5 / 10. *Disclaimer: This is our option and does constitute a recommendation or financial advice. Do your own research. *
- Price
- 6
- Condition
- 3
- Location
- 8
- Land
- 5
- Bedrooms
- 2
- Bathrooms
- 1
- Sqft (est)
- 825.59
- Lot (est)
- 825.59
The heatmap indicates the level of crime in the area. The color of the heatmap indicates the crime severity and recency.
Metrics Year-on-Year
- Average area value
- 920,000.00 £Increased by 33.45 %
- Est sale value
- 751,286.90 £Increased by 8.98 %
- Average area rental value
- 2,550.00 £/moIncreased by 2.12 %
- Est letting value
- 1,651.18 £/moDecreased by 33.33 %
- Est rental Yield
- 3.33 %Decreased by 23.45 %
- Crime Rate
- 4.00 %Unchanged by 0.00 %
from 689,400.00 £
from 689,367.65 £
from 2,497.00 £/mo
from 2,476.77 £/mo
from 4.35 %
from 4.00 %
Agent Activity
Foxtons created the listing.
Nearby Schools
| Name | Type | Ofsted | Distance |
|---|---|---|---|
| Stoke Newington School And Sixth Form | Community School | Good | 0.35 KM |
| Betty Layward Primary School | Community School | Good | 0.35 KM |
| Grasmere Primary School | Community School | Good | 0.41 KM |
| St Mary'S Church Of England Primary School, Stoke Newington | Voluntary Aided School | Good | 0.47 KM |
| The Garden School | Community Special School | Outstanding | 0.53 KM |
Images
Nearby Streets
| Name | Average Price | Average Sqft | Distance |
|---|---|---|---|
| Scholars' Place | £ 825,000 | 0 | 0.00 KM |
| Wordsworth Road | £ 0 | 0 | 0.00 KM |
| Manor Road | £ 831,667 | 0 | 0.00 KM |
| Truman's Road | £ 0 | 0 | 0.00 KM |
| Green Lanes | £ 0 | 0 | 0.00 KM |
Nearby Transport
| Name | NLC | TLC | Distance |
|---|---|---|---|
| Stoke Newington | 6934 | SKW | 1.24 KM |
| Dalston Kingsland | 1429 | DLK | 1.27 KM |
| Rectory Road | 6967 | REC | 1.45 KM |
| Dalston Junction | 1443 | DLJ | 1.50 KM |
| Canonbury | 1441 | CNN | 1.58 KM |
Nearby Listings
| Address | Price | Type | Score | Distance |
|---|---|---|---|---|
| Lilian Close, Stoke Newington, London, N16 | £ 560,000 | BUY | 5 / 10 | 0.00 KM |
| Lilian Close, Stoke Newington, N16 | £ 775,000 | BUY | 6 / 10 | 0.01 KM |
| Barbauld Road, London | £ 800,000 | BUY | Unknown | 0.06 KM |
| Sandbrook Road, London | £ 1,350,000 | BUY | Unknown | 0.07 KM |
| 174 Albion Road, Stoke Newington, N16 | £ 525,000 | BUY | 8 / 10 | 0.08 KM |
Nearby Properties
| Address | Price | Distance |
|---|---|---|
| 8 Lilian Close | £ 340,000 | 0.02 KM |
| 19 Lilian Close | £ 697,000 | 0.02 KM |
| 12 Lilian Close | £ 282,000 | 0.02 KM |
| 29 Lilian Close | £ 140,000 | 0.02 KM |
| 21a Lilian Close | £ 960,000 | 0.02 KM |