CA
Oxford Road, Hartlepool, TS25
By Castledene Sales & Lettings
£ 120,000
Reviews
3 out of 5 stars
Castledene Sales & Lettings says ..
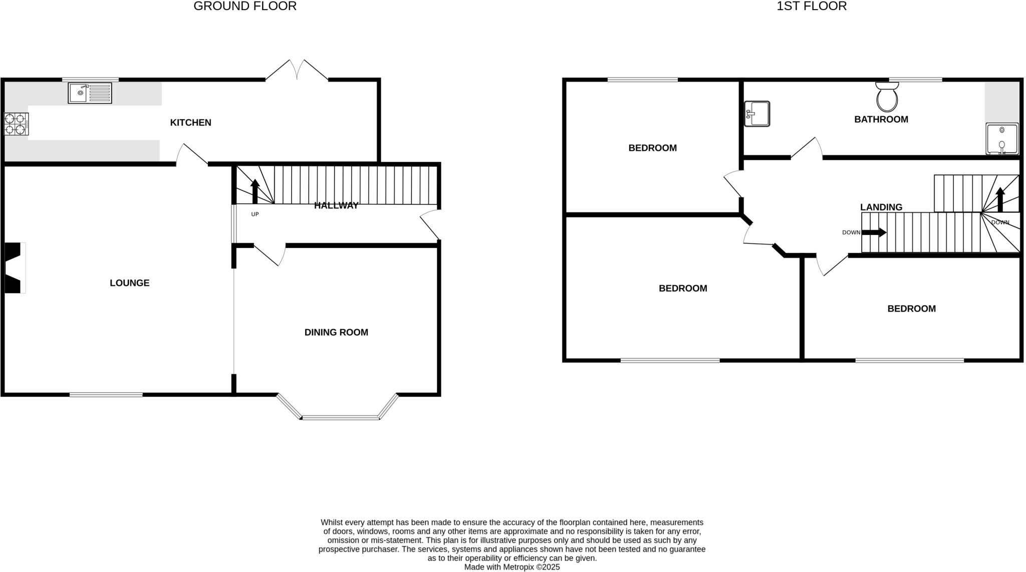
Holbrook & Co are delighted to welcome to market, this deceptively spacious three bedroom semi-detached property. Benefitting from a double storey rear extension, this home offers an open plan lounge/diner, kitchen, three bedrooms and family bathroom. Externally there is a paved driveway allo...
Property Oracle says ..
Therefore, we give this property 7 / 10. *Disclaimer: This is our option and does constitute a recommendation or financial advice. Do your own research. *
- Price
- 9
- Condition
- 7
- Location
- 7
- Land
- 8
- Bedrooms
- 3
- Bathrooms
- 1
- Sqft (est)
- 869.00
The heatmap indicates the level of crime in the area. The color of the heatmap indicates the crime severity and recency.
Metrics Year-on-Year
- Average area value
- 926,998.00 £Increased by 247.85 %
- Est sale value
- 86,900.00 £Decreased by 67.53 %
- Average area rental value
- 1,034.00 £/moIncreased by 10.47 %
- Est letting value
- 0.00 £/moDecreased by 100.00 %
- Est rental Yield
- 1.34 %Decreased by 68.17 %
- Crime Rate
- 7.00 %Unchanged by 0.00 %
from 266,491.00 £
from 267,652.00 £
from 936.00 £/mo
from 869.00 £/mo
from 4.21 %
from 7.00 %
Agent Activity
Castledene Sales & Lettings created the listing.
Nearby Schools
| Name | Type | Ofsted | Distance |
|---|---|---|---|
| Eldon Grove Academy | Academy Converter | Good | 0.68 KM |
| Kingsley Primary School | Community School | Good | 0.70 KM |
| Lynnfield Primary School And Clc | Children's Centre Linked Site | 0.76 KM | |
| St Cuthbert'S Catholic Primary School, Hartlepool | Academy Converter | 0.95 KM | |
| St Aidan'S Church Of England Memorial Primary School | Academy Converter | 1.14 KM |
Images
Nearby Streets
| Name | Average Price | Average Sqft | Distance |
|---|---|---|---|
| Wordsworth Avenue | £ 87,500 | 0 | 0.00 KM |
| Shelley Grove | £ 0 | 0 | 0.00 KM |
| Leamington Drive | £ 0 | 0 | 0.00 KM |
| Bexley Drive | £ 375,000 | 0 | 0.00 KM |
| B1277 | £ 260,000 | 0 | 0.00 KM |
Nearby Transport
| Name | NLC | TLC | Distance |
|---|---|---|---|
| Hartlepool | 8009 | HPL | 2.51 KM |
| Seaton Carew | 8007 | SEC | 3.32 KM |
| Billingham | 7910 | BIL | 9.65 KM |
Nearby Listings
| Address | Price | Type | Score | Distance |
|---|---|---|---|---|
| Oxford Road, Hartlepool, TS25 | £ 120,000 | BUY | 7 / 10 | 0.00 KM |
| Oxford Road, Hartlepool | £ 115,000 | BUY | 6 / 10 | 0.00 KM |
| Oxford Road, Hartlepool, TS25 5 | £ 55,000 | BUY | 4 / 10 | 0.07 KM |
| Oxford Road, Hartlepool | £ 110,000 | BUY | Unknown | 0.09 KM |
| Wordsworth Avenue, Hartlepool | £ 85,000 | BUY | 5 / 10 | 0.13 KM |
Nearby Properties
| Address | Price | Distance |
|---|---|---|
| 162 Oxford Road | £ 64,000 | 0.01 KM |
| 184 Oxford Road | £ 125,000 | 0.01 KM |
| 186 Oxford Road | £ 65,000 | 0.01 KM |
| 168 Oxford Road | £ 69,950 | 0.01 KM |
| 192 Oxford Road | £ 105,000 | 0.01 KM |