Mill Close, Stourport-On-Severn
By Severn Estates
£ 215,000
Reviews
2 out of 5 stars
Severn Estates says ..
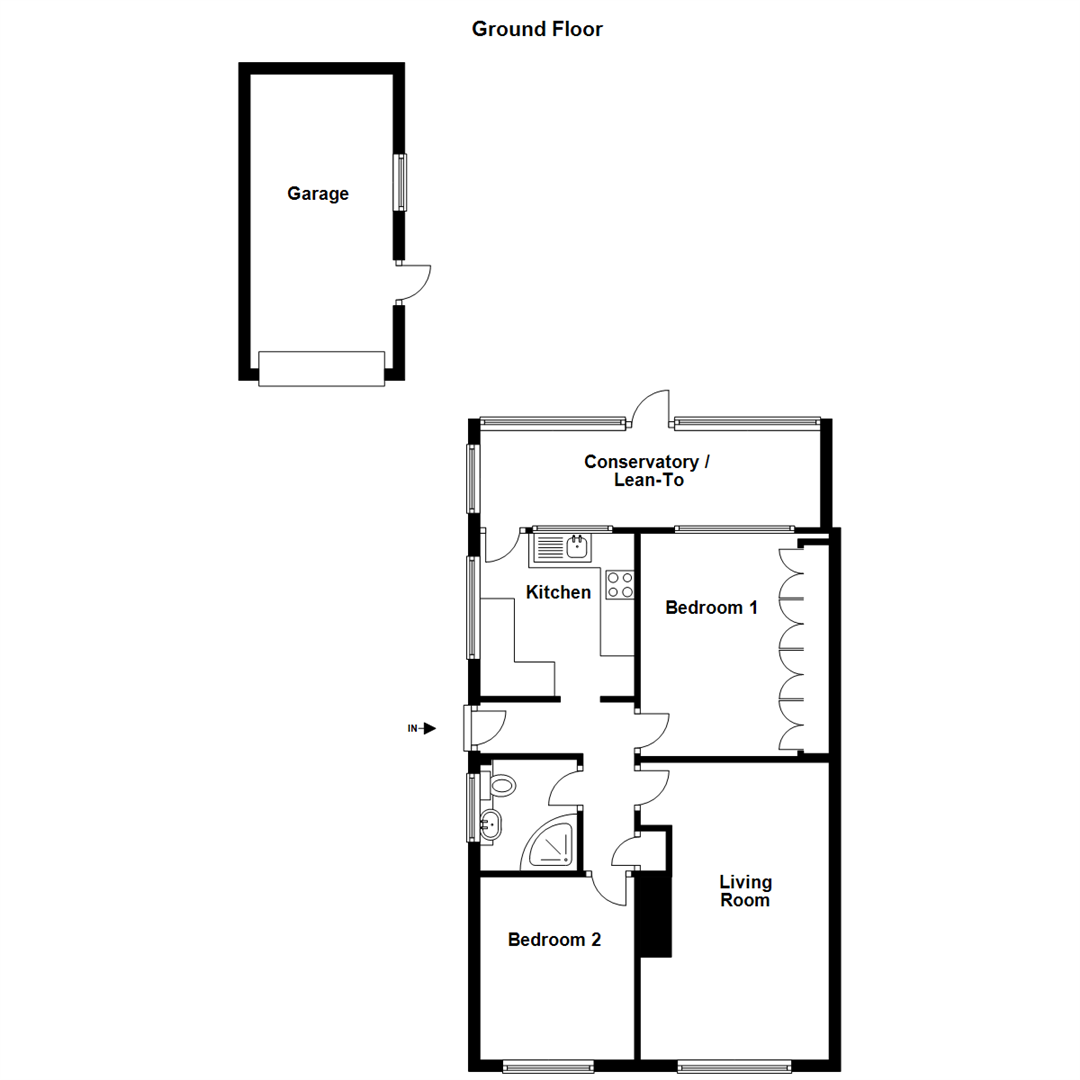
This semi detached bungalow is available with the distinct advantage of NO UPWARD CHAIN and sits within this sought after location in this popular cul-de-sac of similar properties which offers easy access to the Town Centre and main road networks. The property would benefit from some general upda...
Property Oracle says ..
This two-bedroom semi-detached bungalow in Stourport-on-Severn presents a mixed bag. The property’s location in Mill Close offers a convenient position with relative proximity to schools and transport links. The absence of detailed information on the quality of local schools and the availability of nearby amenities such as parks and shops makes it hard to give a complete judgement. However, the location in a seemingly established residential area is certainly a positive. The property itself requires some updating and modernisation. While the structure appears sound, the interior decor and fittings are dated. This would likely influence the valuation, requiring a potential buyer to factor in renovation costs. The garden, while present, looks relatively small, offering limited outdoor space. The list price of £215,000 appears reasonable based on the limited price data for similar properties in the area, but a more thorough analysis of comparable properties, including size and condition, would be needed for a conclusive valuation. Overall, the property is a potentially sound investment for someone willing to undertake some renovations. The key selling points are its location and the fact it is a bungalow, a desired style for many buyers, however a buyer must account for the modernisation required.
Therefore, we give this property 5 / 10. *Disclaimer: This is our option and does constitute a recommendation or financial advice. Do your own research. *
- Price
- 7
- Condition
- 5
- Location
- 7
- Land
- 4
- Bedrooms
- 2
- Bathrooms
- 1
- Sqft (est)
- 870.00
The heatmap indicates the level of crime in the area. The color of the heatmap indicates the crime severity and recency.
Metrics Year-on-Year
- Average area value
- 237,136.00 £Decreased by 8.09 %
- Est sale value
- 289,710.00 £Increased by 22.88 %
- Average area rental value
- 1,375.00 £/moIncreased by 36.68 %
- Est letting value
- 870.00 £/moUnchanged by 0.00 %
- Est rental Yield
- 6.96 %Increased by 48.72 %
- Crime Rate
- 2.00 %Unchanged by 0.00 %
Agent Activity
Severn Estates marked this listing as sold.
Severn Estates created the listing.
Nearby Schools
| Name | Type | Ofsted | Distance |
|---|---|---|---|
| The Stourport High School And Sixth Form College | Academy Converter | Requires improvement | 1.21 KM |
| Wilden All Saints Cofe Primary School | Academy Converter | 1.22 KM | |
| Burlish Park Primary School | Academy Sponsor Led | 1.32 KM | |
| Stourport Primary Academy | Academy Converter | Good | 1.66 KM |
| Continu Plus Academy | Free Schools Alternative Provision | Good | 2.05 KM |
Images
Nearby Streets
| Name | Average Price | Average Sqft | Distance |
|---|---|---|---|
| Orchard Close | £ 0 | 0 | 0.00 KM |
| The Links | £ 123,214 | 0 | 0.00 KM |
| Foxglove Close | £ 0 | 0 | 0.00 KM |
| Manor Close | £ 0 | 0 | 0.00 KM |
| Bond Gardens | £ 0 | 0 | 0.00 KM |
Nearby Transport
| Name | NLC | TLC | Distance |
|---|---|---|---|
| Hartlebury | 4579 | HBY | 5.25 KM |
| Kidderminster | 4581 | KID | 5.79 KM |
Nearby Listings
| Address | Price | Type | Score | Distance |
|---|---|---|---|---|
| Mill Close, Stourport-On-Severn | £ 215,000 | BUY | 5 / 10 | 0.00 KM |
| Mill Road, Stourport-on-Severn | £ 210,000 | BUY | 5 / 10 | 0.13 KM |
| Mill Road, STOURPORT-ON-SEVERN | £ 220,000 | BUY | 6 / 10 | 0.14 KM |
| Orchard Close, Stourport on Severn, DY13 9BQ | £ 250,000 | BUY | 6 / 10 | 0.15 KM |
| Plot 39, The Links, Stourport-on-Severn | £ 112,500 | BUY | 5 / 10 | 0.18 KM |
Nearby Properties
| Address | Price | Distance |
|---|---|---|
| 23 Mill Close | £ 168,000 | 0.03 KM |
| 35 Mill Close | £ 220,000 | 0.03 KM |
| 6 Mill Close | £ 157,000 | 0.03 KM |
| 2 Mill Close | £ 113,500 | 0.03 KM |
| 51 Mill Close | £ 153,000 | 0.03 KM |