Purplebricks says ..
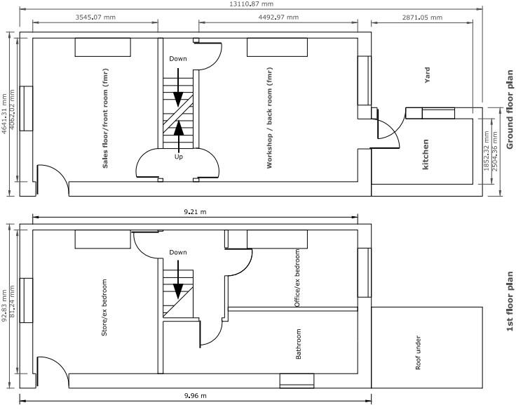
Charming 2-Bedroom End Terrace Family Home on Broadway, Haslingden - NO CHAIN DELAY - Great Opportunity as a Residential or as a Commercial Property! Step into the magic of this superb 2-bedroom end terrace family home, once the beloved local chocolate store. Located on the ever-sought-after Bro...
Property Oracle says ..
The property is located in a convenient location close to well-regarded schools and train stations. The interior appears to be in good condition, recently decorated and clean. The small paved yard is a drawback. Compared to local averages, the price is significantly lower, potentially reflecting the smaller yard.
Therefore, we give this property 6 / 10. *Disclaimer: This is our option and does constitute a recommendation or financial advice. Do your own research. *
- Price
- 8
- Condition
- 7
- Location
- 8
- Land
- 3
- Bedrooms
- 2
- Bathrooms
- 1
- Sqft (est)
- 1,283.49
The heatmap indicates the level of crime in the area. The color of the heatmap indicates the crime severity and recency.
Metrics Year-on-Year
- Average area value
- 243,333.00 £Increased by 2.42 %
- Est sale value
- 322,155.99 £Decreased by 0.40 %
- Average area rental value
- 825.00 £/moDecreased by 8.13 %
- Est letting value
- 0.00 £/mo
- Est rental Yield
- 4.07 %Decreased by 10.35 %
- Crime Rate
- 0.00 %
Agent Activity
Purplebricks created the listing.
Nearby Schools
| Name | Type | Ofsted | Distance |
|---|---|---|---|
| Haslingden Broadway Primary School | Community School | Outstanding | 0.06 KM |
| Haslingden High School And Sixth Form | Community School | Good | 0.30 KM |
| Tor View School | Academy Special Converter | Outstanding | 0.70 KM |
| Valley College | Special Post 16 Institution | 0.83 KM | |
| St Veronica'S Roman Catholic Primary School, Helmshore | Voluntary Aided School | Outstanding | 0.98 KM |
Images
Nearby Streets
| Name | Average Price | Average Sqft | Distance |
|---|---|---|---|
| Wiltshire Drive | £ 0 | 0 | 0.00 KM |
| Holly Avenue | £ 0 | 0 | 0.00 KM |
| Greens Lane | £ 220,000 | 0 | 0.00 KM |
| Edenfield Interchange | £ 0 | 0 | 0.00 KM |
| Norfolk Drive | £ 240,000 | 0 | 0.00 KM |
Nearby Transport
| Name | NLC | TLC | Distance |
|---|---|---|---|
| Accrington | 2552 | ACR | 8.84 KM |
| Huncoat | 2558 | HCT | 9.47 KM |
Nearby Listings
| Address | Price | Type | Score | Distance |
|---|---|---|---|---|
| Broadway, Rossendale, BB4 | £ 142,000 | BUY | 6 / 10 | 0.00 KM |
| Grasmere Road, Haslingden, Rossendale, BB4 4 | £ 210,000 | BUY | 6 / 10 | 0.32 KM |
| Haslingden, Rossendale, BB4 | £ 249,950 | BUY | Unknown | 0.41 KM |
| Fields Road, Haslingden, Rossendale, BB4 6QA | £ 155,000 | BUY | 7 / 10 | 0.43 KM |
| Grasmere Road, Haslingden, Rossendale, BB4 | £ 255,000 | BUY | Unknown | 0.43 KM |
Nearby Properties
| Address | Price | Distance |
|---|---|---|
| 103 Broadway | £ 93,000 | 0.01 KM |
| 206 Broadway | £ 237,000 | 0.01 KM |
| 218 Broadway | £ 197,500 | 0.01 KM |
| 214 Broadway | £ 156,000 | 0.01 KM |
| 87 Broadway | £ 134,000 | 0.01 KM |