HA
High Street, Steyning, West Sussex, BN44 3YE
By Hamilton Graham
£ 600,000
Reviews
2 out of 5 stars
Hamilton Graham says ..
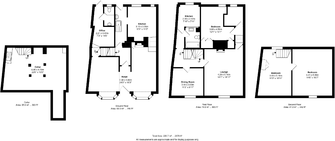
A substantial Grade II listed building, probably of 16th Century origin, with a rendered front elevation under a Horsham stone and clay-tiled roof. The building is offered with vacant possession and a...
Property Oracle says ..
Therefore, we give this property 5 / 10. *Disclaimer: This is our option and does constitute a recommendation or financial advice. Do your own research. *
- Price
- 5
- Condition
- 3
- Location
- 8
- Land
- 5
- Bedrooms
- 3
- Bathrooms
- 1
- Sqft (est)
- 1,932.12
The heatmap indicates the level of crime in the area. The color of the heatmap indicates the crime severity and recency.
Metrics Year-on-Year
- Average area value
- 488,889.00 £Decreased by 16.70 %
- Est sale value
- 1,292,588.28 £Increased by 34.88 %
- Average area rental value
- 1,367.00 £/moDecreased by 11.29 %
- Est letting value
- 1,932.12 £/moUnchanged by 0.00 %
- Est rental Yield
- 3.36 %Increased by 6.67 %
- Crime Rate
- 149.00 %Unchanged by 0.00 %
from 586,913.00 £
from 958,331.52 £
from 1,541.00 £/mo
from 1,932.12 £/mo
from 3.15 %
from 149.00 %
Agent Activity
Hamilton Graham created the listing.
Nearby Schools
| Name | Type | Ofsted | Distance |
|---|---|---|---|
| Steyning Grammar School | Academy Converter | 0.61 KM | |
| Steyning Cofe Primary School | Voluntary Controlled School | Good | 0.74 KM |
| Upper Beeding Primary School | Community School | Outstanding | 2.88 KM |
| Ashurst Cofe Primary School | Voluntary Aided School | Good | 4.87 KM |
| Lancing College | Other Independent School | 5.38 KM |
Images
Nearby Streets
| Name | Average Price | Average Sqft | Distance |
|---|---|---|---|
| Ingram Close | £ 0 | 0 | 0.00 KM |
| Greenacres | £ 0 | 0 | 0.00 KM |
| Penland's Close | £ 0 | 0 | 0.00 KM |
| Portway | £ 662,500 | 0 | 0.00 KM |
| Abbey Road | £ 585,000 | 0 | 0.00 KM |
Nearby Transport
| Name | NLC | TLC | Distance |
|---|---|---|---|
| Lancing | 5275 | LAC | 6.81 KM |
| East Worthing | 5283 | EWR | 7.96 KM |
| Shoreham-By-Sea | 5277 | SSE | 8.63 KM |
| Worthing | 5279 | WRH | 9.39 KM |
Nearby Listings
| Address | Price | Type | Score | Distance |
|---|---|---|---|---|
| High Street, Steyning, West Sussex, BN44 3YE | £ 600,000 | BUY | 5 / 10 | 0.00 KM |
| Bank Passage, Steyning, West Sussex | £ 1,500,000 | BUY | 7 / 10 | 0.03 KM |
| Church Street, Steyning, West Sussex, BN44 3YB | £ 500,000 | BUY | Unknown | 0.04 KM |
| Church Street, Steyning, BN44 | £ 475,000 | BUY | 6 / 10 | 0.04 KM |
| Bank Passage, Steyning, West Sussex, BN44 3YA | £ 1,500,000 | BUY | 7 / 10 | 0.05 KM |
Nearby Properties
| Address | Price | Distance |
|---|---|---|
| 1 Bank Passage | £ 260,000 | 0.05 KM |
| 2 Bank Passage | £ 172,950 | 0.05 KM |
| 2a Bank Passage | £ 134,500 | 0.05 KM |
| 33 High Street | £ 970,000 | 0.08 KM |
| 27 High Street | £ 415,000 | 0.08 KM |