Grey Corries Plot With Planning, Spean Bridge, Highland, PH34 4EU
By Braveheart Auctions Limited
£ 72,000
Reviews
3 out of 5 stars
Braveheart Auctions Limited says ..
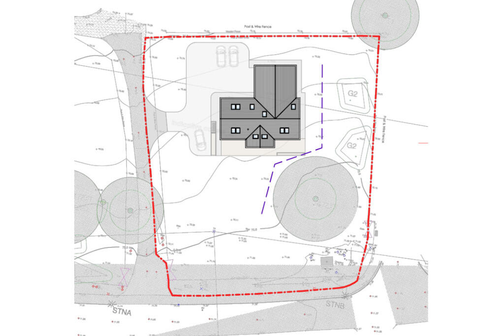
Large plot of land with excellent access and PLANNING PERMISSION GRANTED for erection of house with internal garage in excellent location in the affluent village of Spean Bridge. Excellent for investor/ developer/ builder or self-build. Realistic completed development value of over £500,000 in ...
Property Oracle says ..
This plot of land is located in Spean Bridge, Highland, Scotland. It benefits from planning permission for a new build. The location is near the A86, which provides connectivity to other areas. Spean Bridge railway station is approximately 1km away, offering convenient access to public transport. The surrounding area is scenic, with views of the Scottish Highlands, but is rural.
Therefore, we give this property 7 / 10. *Disclaimer: This is our option and does constitute a recommendation or financial advice. Do your own research. *
- Price
- 8
- Condition
- 0
- Location
- 7
- Land
- 7
- Bedrooms
- 0
- Bathrooms
- 0
The heatmap indicates the level of crime in the area. The color of the heatmap indicates the crime severity and recency.
Metrics Year-on-Year
- Average area value
- 100,833.00 £Decreased by 30.42 %
- Average area rental value
- 877.00 £/moIncreased by 4.40 %
- Est rental Yield
- 10.44 %Increased by 50.00 %
- Crime Rate
- 0.00 %
Agent Activity
Braveheart Auctions Limited created the listing.
Images
Nearby Streets
| Name | Average Price | Average Sqft | Distance |
|---|---|---|---|
| Aonachan Gardens | £ 0 | 0 | 0.00 KM |
| Spean Lodge | £ 595,000 | 0 | 0.00 KM |
| Spean Crescent | £ 0 | 0 | 0.00 KM |
Nearby Transport
| Name | NLC | TLC | Distance |
|---|---|---|---|
| Spean Bridge | 8836 | SBR | 1.04 KM |
| Roy Bridge | 8835 | RYB | 8.44 KM |
Nearby Listings
| Address | Price | Type | Score | Distance |
|---|---|---|---|---|
| Grey Corries Plot With Planning, Spean Bridge, Highland, PH34 4EU | £ 67,000 | BUY | 6 / 10 | 0.00 KM |
| Grey Corries Plot With Planning, Spean Bridge, Highland, PH34 4EU | £ 72,000 | BUY | 7 / 10 | 0.00 KM |
| Birch Grove, Spean Bridge, Inverness-Shire, PH34 4EU | £ 290,000 | BUY | Unknown | 0.19 KM |
| Plots 1 & 2, Roy Bridge Road, Spean Bridge, PH34 4EU4 | £ 75,000 | BUY | 8 / 10 | 0.20 KM |
| Letterfinlay, Spean Bridge | £ 600,000 | BUY | 8 / 10 | 0.25 KM |