Wheatsheaf Lane, Staines-upon-Thames, TW18
By Gregory Brown
£ 465,000
Reviews
3 out of 5 stars
Gregory Brown says ..
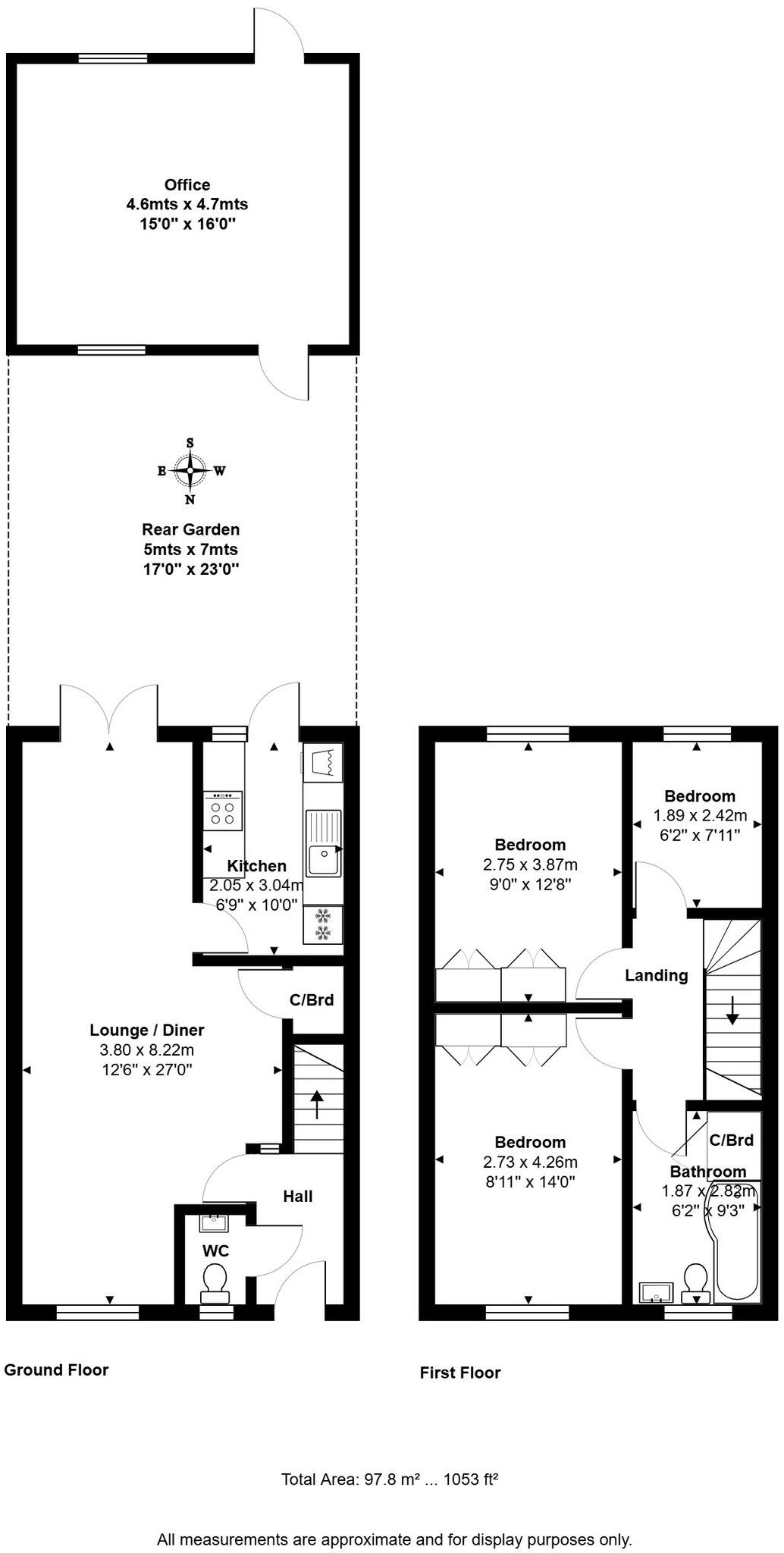
VERY WELL PRESENTED & SPACIOUS THREE BEDROOM PROPERTY SITUATED ALONG THIS MUCH SOUGHT AFTER ROAD IDEALLY POSITIONED FOR STAINES TOWN CENTRE, LOCAL SHOPS & SCHOOLS. The property benefits from a spacious lounge/diner, modern fitted kitchen, three well-proportioned bedrooms, modern white ...
Property Oracle says ..
The property is a 3-bedroom, 1-bathroom terraced house located on Wheatsheaf Lane in Staines-upon-Thames, Surrey. It has a plot size of 1,053 sqft and a total area of 1,036 sqft. The list price is £465,000.
The property appears to be in good condition, with a modern kitchen and bathroom. The interior is well-presented and clean. The garden is relatively small but well-maintained, featuring artificial turf and a patio area. The property benefits from a detached garage/workshop in the rear garden.
The location is convenient, with several primary schools within a short distance, all rated ‘Good’ by Ofsted. Staines train station is approximately 1.31km away, providing good transport links to London and surrounding areas.
Considering the average house price in the area is £729,279 and the average price per sqft is £307, the list price of £465,000 for this 1,036 sqft property seems reasonable, particularly given its good condition and convenient location. However, the lack of information on comparable properties with similar sqft makes a definitive statement difficult. The nearby properties listed have significantly varying prices and lack sqft data, hindering a precise comparison.
Therefore, we give this property 7 / 10. *Disclaimer: This is our option and does constitute a recommendation or financial advice. Do your own research. *
- Price
- 7
- Condition
- 8
- Location
- 8
- Land
- 6
- Bedrooms
- 3
- Bathrooms
- 1
- Sqft (est)
- 1,036.00
- Lot (est)
- 1,053.00
The heatmap indicates the level of crime in the area. The color of the heatmap indicates the crime severity and recency.
Metrics Year-on-Year
- Average area value
- 512,500.00 £Decreased by 7.89 %
- Est sale value
- 688,940.00 £Increased by 39.41 %
- Average area rental value
- 2,075.00 £/moIncreased by 3.18 %
- Est letting value
- 2,072.00 £/moIncreased by 100.00 %
- Est rental Yield
- 4.86 %Increased by 11.98 %
- Crime Rate
- 7.00 %Unchanged by 0.00 %
Agent Activity
Gregory Brown created the listing.
Nearby Schools
| Name | Type | Ofsted | Distance |
|---|---|---|---|
| Our Lady Of The Rosary Rc Primary School | Voluntary Aided School | Good | 0.66 KM |
| Riverbridge Primary School | Academy Converter | Good | 0.74 KM |
| Staines Preparatory School | Other Independent School | 1.31 KM | |
| The Matthew Arnold School | Academy Converter | Good | 1.96 KM |
| Buckland Primary School | Community School | Good | 2.01 KM |
Images
Nearby Streets
| Name | Average Price | Average Sqft | Distance |
|---|---|---|---|
| Park Avenue | £ 0 | 0 | 0.00 KM |
| Parkside Place | £ 0 | 0 | 0.00 KM |
| St Peter's Close | £ 700,000 | 0 | 0.00 KM |
| Thames Side | £ 0 | 0 | 0.00 KM |
| Pinewood Drive | £ 215,000 | 0 | 0.00 KM |
Nearby Transport
| Name | NLC | TLC | Distance |
|---|---|---|---|
| Staines | 5670 | SNS | 1.31 KM |
| Chertsey | 5553 | CHY | 3.79 KM |
| Ashford (Surrey) | 5667 | AFS | 4.39 KM |
| Egham | 5669 | EGH | 4.75 KM |
| Heathrow Terminal 5 | 9846 | HWV | 5.70 KM |
Nearby Listings
| Address | Price | Type | Score | Distance |
|---|---|---|---|---|
| Wheatsheaf Lane, Staines-upon-Thames, TW18 | £ 465,000 | BUY | 7 / 10 | 0.00 KM |
| Wheatsheaf Lane, Staines-upon-Thames, Surrey, TW18 | £ 600,000 | BUY | 6 / 10 | 0.07 KM |
| Wheatsheaf Lane, Staines, Surrey, TW18 | £ 675,000 | BUY | 7 / 10 | 0.07 KM |
| Garrick Close, Staines-upon-Thames, Surrey, TW18 | £ 525,000 | BUY | 6 / 10 | 0.09 KM |
| Garrick Close, Staines-upon-Thames, TW18 | £ 450,000 | BUY | 7 / 10 | 0.10 KM |
Nearby Properties
| Address | Price | Distance |
|---|---|---|
| 53 Wheatsheaf Lane | £ 242,500 | 0.01 KM |
| 61 Wheatsheaf Lane | £ 206,000 | 0.01 KM |
| 51 Wheatsheaf Lane | £ 276,000 | 0.01 KM |
| 65 Wheatsheaf Lane | £ 134,950 | 0.01 KM |
| 49 Wheatsheaf Lane | £ 405,000 | 0.01 KM |