East of Exe Ltd says ..
Property located in Altamira, Topsham
Property Oracle says ..
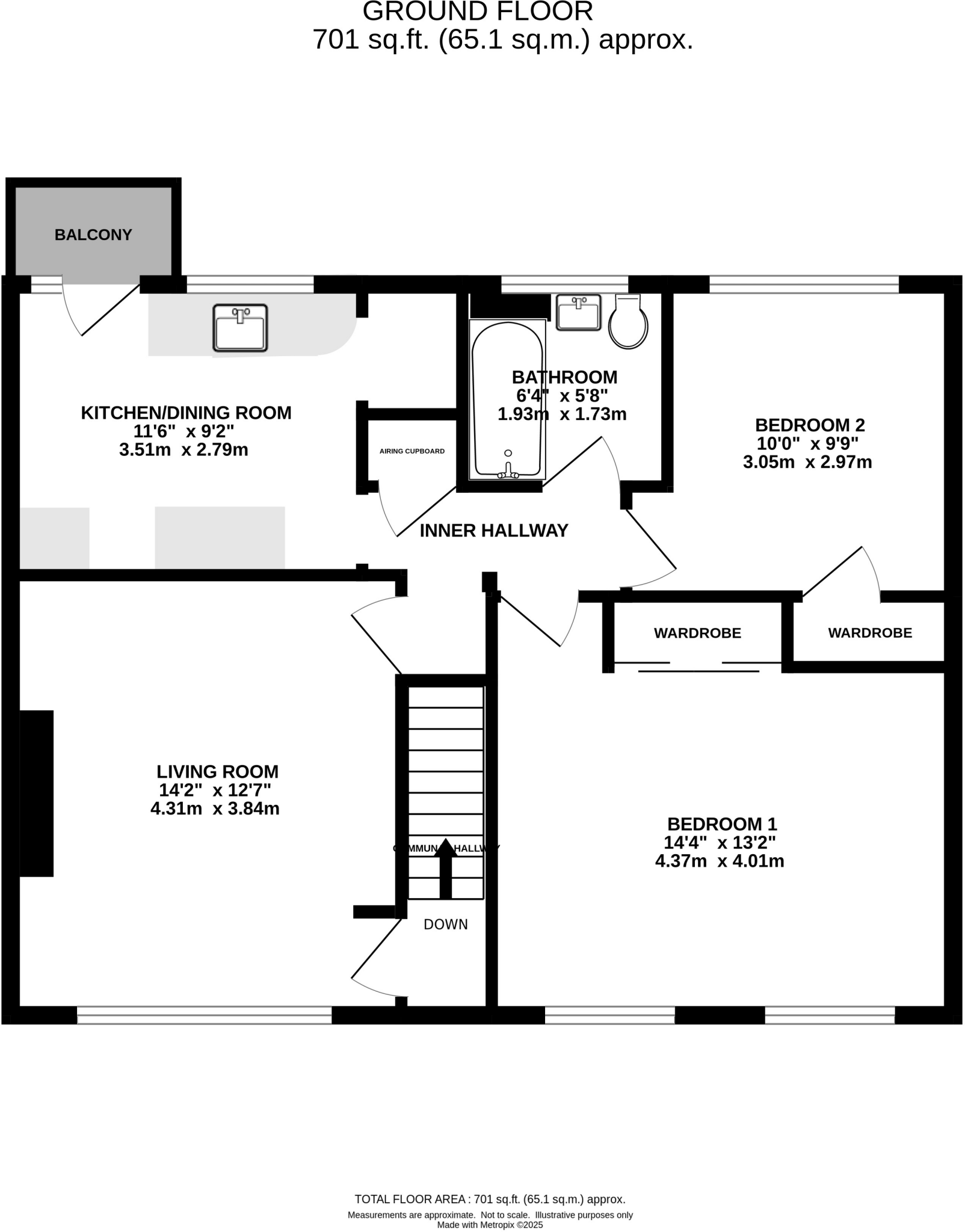
This property is a 2-bedroom apartment located in Topsham, Devon. The apartment has recently been renovated to a high standard, as evidenced by the photos. The property is conveniently located near Topsham railway station, providing easy access to Exeter and other areas. The average price per square foot in the area is £419, while this property is listed at £240,000. Given the recent renovation, the relatively small size of the apartment (700.73 sqft), and its location in a desirable area, the list price may be considered reasonable, although it is lower than the average price for the area. The lack of plot size may be a drawback for some buyers.
Therefore, we give this property 6 / 10. *Disclaimer: This is our option and does constitute a recommendation or financial advice. Do your own research. *
- Price
- 7
- Condition
- 9
- Location
- 8
- Land
- 1
- Bedrooms
- 2
- Bathrooms
- 1
- Sqft (est)
- 700.73
The heatmap indicates the level of crime in the area. The color of the heatmap indicates the crime severity and recency.
Metrics Year-on-Year
- Average area value
- 528,231.00 £Increased by 3.23 %
- Est sale value
- 449,167.93 £Increased by 28.71 %
- Average area rental value
- 1,833.00 £/moIncreased by 1.05 %
- Est letting value
- 1,401.46 £/moIncreased by 100.00 %
- Est rental Yield
- 4.16 %Decreased by 2.12 %
- Crime Rate
- 52.00 %Unchanged by 0.00 %
Agent Activity
East of Exe Ltd created the listing.
Nearby Schools
| Name | Type | Ofsted | Distance |
|---|---|---|---|
| The Topsham School | Community School | Good | 1.03 KM |
| Lady Seaward'S Church Of England Primary School | Academy Converter | Outstanding | 2.30 KM |
| Trinity Church Of England Voluntary Aided Primary And Nursery School | Voluntary Aided School | 2.57 KM | |
| Clyst St Mary Primary School | Community School | Good | 3.04 KM |
| Clyst Vale Children'S Centre | Children's Centre | 3.05 KM |
Images
Nearby Streets
| Name | Average Price | Average Sqft | Distance |
|---|---|---|---|
| Strand View | £ 1,200,000 | 0 | 0.00 KM |
| Grove Hill | £ 0 | 0 | 0.00 KM |
| Swains Court | £ 650,000 | 0 | 0.00 KM |
| Tremletts Yard | £ 0 | 0 | 0.00 KM |
| Hamilton Road | £ 450,000 | 0 | 0.00 KM |
Nearby Transport
| Name | NLC | TLC | Distance |
|---|---|---|---|
| Topsham | 5758 | TOP | 0.58 KM |
| Exton | 5760 | EXN | 2.42 KM |
| Newcourt | 9589 | NCO | 2.82 KM |
| Lympstone Commando | 5762 | LYC | 3.15 KM |
| Digby And Sowton | 5753 | DIG | 3.75 KM |
Nearby Listings
| Address | Price | Type | Score | Distance |
|---|---|---|---|---|
| Topsham | £ 255,000 | BUY | 6 / 10 | 0.00 KM |
| Altamira, Topsham | £ 250,000 | BUY | Unknown | 0.00 KM |
| Altamira, Topsham, Exeter, Devon, EX3 | £ 200,000 | BUY | 5 / 10 | 0.00 KM |
| Altamira, Topsham | £ 240,000 | BUY | 6 / 10 | 0.00 KM |
| Altamira, Topsham | £ 240,000 | BUY | 5 / 10 | 0.00 KM |
Nearby Properties
| Address | Price | Distance |
|---|---|---|
| 52 Altamira | £ 182,000 | 0.00 KM |
| 25 Altamira | £ 185,000 | 0.00 KM |
| 59 Altamira | £ 165,000 | 0.00 KM |
| 43 Altamira | £ 157,000 | 0.00 KM |
| 18 Altamira | £ 190,000 | 0.00 KM |