Church View, Ash, Surrey, GU12
By Bridges Estate Agents
£ 450,000
Reviews
3 out of 5 stars
Bridges Estate Agents says ..
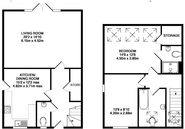
**NO CHAIN** Set in a quiet no through road, and within walking distance of Ash station and the local amenities, is this spacious two bedroom semi-detached home. The accommodation is significant to say the least, boasting just under 1200 sqft of living space. The downstairs boasts a large living ...
Property Oracle says ..
This property is a 2 bedroom, 2 bathroom semi-detached house located in Ash, Surrey. The property benefits from a modern interior and a good-sized rear garden. The location is convenient, with nearby schools and transportation links. While the property is smaller than the average for the area, the list price is slightly below the average price, making it potentially good value for money.
Therefore, we give this property 7 / 10. *Disclaimer: This is our option and does constitute a recommendation or financial advice. Do your own research. *
- Price
- 7
- Condition
- 9
- Location
- 8
- Land
- 7
- Bedrooms
- 2
- Bathrooms
- 2
- Sqft (est)
- 746.75
The heatmap indicates the level of crime in the area. The color of the heatmap indicates the crime severity and recency.
Metrics Year-on-Year
- Average area value
- 511,667.00 £Increased by 11.73 %
- Est sale value
- 300,193.50 £Increased by 17.54 %
- Average area rental value
- 2,000.00 £/moIncreased by 43.88 %
- Est letting value
- 746.75 £/moUnchanged by 0.00 %
- Est rental Yield
- 4.69 %Increased by 28.85 %
- Crime Rate
- 13.00 %Unchanged by 0.00 %
Agent Activity
Bridges Estate Agents created the listing.
Nearby Schools
| Name | Type | Ofsted | Distance |
|---|---|---|---|
| Ash Grange Nursery And Primary School | Community School | Good | 0.32 KM |
| Ash Grange Sure Start Children'S Centre | Children's Centre | 0.57 KM | |
| Shawfield Primary School | Community School | Good | 0.69 KM |
| Walsh Memorial Cofe Controlled Infant School | Voluntary Controlled School | Outstanding | 0.87 KM |
| Walsh Cofe Junior School | Voluntary Controlled School | Requires improvement | 0.87 KM |
Images
Nearby Streets
| Name | Average Price | Average Sqft | Distance |
|---|---|---|---|
| Blackwater Close | £ 0 | 0 | 0.00 KM |
| Holme Close | £ 0 | 0 | 0.00 KM |
| Potters Crescent | £ 56,875 | 0 | 0.00 KM |
| Headley Way | £ 0 | 0 | 0.00 KM |
| The Croft | £ 0 | 0 | 0.00 KM |
Nearby Transport
| Name | NLC | TLC | Distance |
|---|---|---|---|
| Ash | 5641 | ASH | 0.80 KM |
| Ash Vale | 5547 | AHV | 2.58 KM |
| North Camp | 5636 | NCM | 3.21 KM |
| Aldershot | 5623 | AHT | 4.42 KM |
| Wanborough | 5639 | WAN | 5.82 KM |
Nearby Listings
| Address | Price | Type | Score | Distance |
|---|---|---|---|---|
| Church View, Ash, Surrey, GU12 | £ 450,000 | BUY | 6 / 10 | 0.00 KM |
| Church View, Ash, Surrey, GU12 | £ 450,000 | BUY | 7 / 10 | 0.00 KM |
| Church View, Ash | £ 425,000 | BUY | 7 / 10 | 0.01 KM |
| Ewins Close, Ash, Guildford, Surrey, GU12 | £ 550,000 | BUY | 7 / 10 | 0.13 KM |
| Ash Church Mews, Ash, GU12 | £ 325,000 | BUY | 7 / 10 | 0.19 KM |
Nearby Properties
| Address | Price | Distance |
|---|---|---|
| 39a Church View | £ 162,250 | 0.01 KM |
| 31 Church View | £ 220,000 | 0.01 KM |
| 23 Church View | £ 275,000 | 0.01 KM |
| 25 Church View | £ 206,000 | 0.01 KM |
| 29 Church View | £ 145,000 | 0.01 KM |