Barnard Marcus says ..
AUCTION SALE 16 December 2025 - Land with planning permission for an end of terrace houseFreehold siteFull vacant possessionTO SELL YOUR PROPERTY IN OUR NEXT AUCTION CALL US NOW
Property Oracle says ..
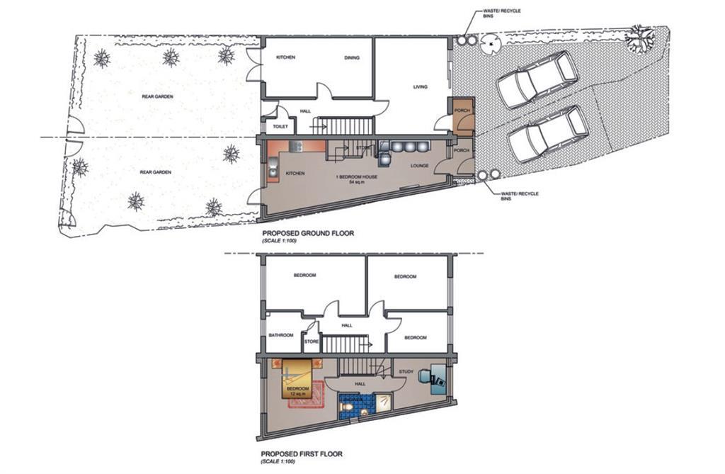
This is a plot of land in Hextable, near Swanley, with potential for development. The location offers good access to local amenities, schools, and transport links. The price seems reasonable for the land itself, but prospective buyers should be aware of the additional costs associated with building a property. The images are CGI only.
Therefore, we give this property 6 / 10. *Disclaimer: This is our option and does constitute a recommendation or financial advice. Do your own research. *
- Price
- 8
- Condition
- 5
- Location
- 6
- Land
- 7
- Bedrooms
- 0
- Bathrooms
- 0
The heatmap indicates the level of crime in the area. The color of the heatmap indicates the crime severity and recency.
Metrics Year-on-Year
- Average area value
- 1,145,000.00 £Increased by 51.85 %
- Average area rental value
- 1,717.00 £/moDecreased by 6.07 %
- Est rental Yield
- 1.80 %Decreased by 38.14 %
- Crime Rate
- 14.00 %Unchanged by 0.00 %
Agent Activity
Barnard Marcus created the listing.
Nearby Schools
| Name | Type | Ofsted | Distance |
|---|---|---|---|
| Hextable Primary School | Community School | Good | 0.55 KM |
| St Pauls' Church Of England Voluntary Controlled Primary School | Voluntary Controlled School | Good | 1.35 KM |
| Downsview Community Primary School | Community School | Good | 1.68 KM |
| St Bartholomew'S Catholic Primary School, Swanley | Voluntary Aided School | Good | 1.71 KM |
| Swanley Children'S Centre | Children's Centre | 1.72 KM |
Images
Nearby Streets
| Name | Average Price | Average Sqft | Distance |
|---|---|---|---|
| Main Road | £ 0 | 0 | 0.00 KM |
| The Beeches | £ 0 | 0 | 0.00 KM |
| New Barn Road | £ 0 | 0 | 0.00 KM |
| Poppy Close | £ 0 | 0 | 0.00 KM |
| Alexandra Close | £ 350,000 | 0 | 0.00 KM |
Nearby Transport
| Name | NLC | TLC | Distance |
|---|---|---|---|
| Swanley | 5075 | SAY | 2.52 KM |
| Crayford | 5100 | CRY | 4.22 KM |
| Bexley | 5093 | BXY | 5.16 KM |
| Dartford | 5101 | DFD | 5.65 KM |
| Farningham Road | 5105 | FNR | 5.79 KM |
Nearby Listings
| Address | Price | Type | Score | Distance |
|---|---|---|---|---|
| Panters, Hextable, SWANLEY | £ 50,000 | BUY | 6 / 10 | 0.00 KM |
| Panters, Hextable, SWANLEY | £ 50,000 | BUY | 6 / 10 | 0.00 KM |
| Panters, Hextable, Swanley | £ 350,000 | BUY | 7 / 10 | 0.01 KM |
| Lower Road, Hextable | £ 375,000 | BUY | 6 / 10 | 0.08 KM |
| Land Adjacent to 30 Panters, Hextable, Swanley, BR8 7RW | £ 60,000 | BUY | 4 / 10 | 0.09 KM |
Nearby Properties
| Address | Price | Distance |
|---|---|---|
| 67 Panters | £ 175,000 | 0.00 KM |
| 53 Panters | £ 205,000 | 0.00 KM |
| 32 Panters | £ 267,000 | 0.00 KM |
| 78 Panters | £ 185,000 | 0.00 KM |
| 50 Panters | £ 305,000 | 0.00 KM |