Acorn says ..
Set along the ever-popular Collindale Avenue in the heart of Erith, this beautifully kept 1930s home delivers the kind of space, finish and quiet residential setting that buyers in Northumberland Heath wait patiently for. The property sits proudly on a generous plot, offering off-street parking f...
Property Oracle says ..
This is a three-bedroom terraced house in Northumberland Heath, Erith. The property is in generally good condition, with a modern kitchen and bathroom. It has a garden with a shed. The property is located close to local amenities and schools. The list price is reasonable for the area.
Therefore, we give this property 6 / 10. *Disclaimer: This is our option and does constitute a recommendation or financial advice. Do your own research. *
- Price
- 7
- Condition
- 7
- Location
- 6
- Land
- 6
- Bedrooms
- 3
- Bathrooms
- 1
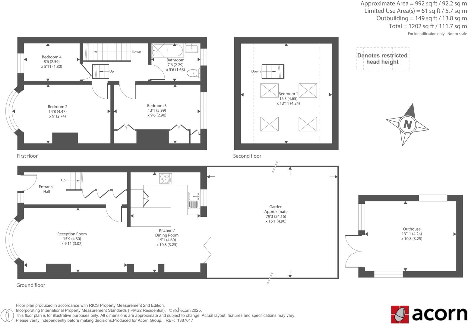
- Sqft (est)
- 1,202.00
- Lot (est)
- 149.00
The heatmap indicates the level of crime in the area. The color of the heatmap indicates the crime severity and recency.
Metrics Year-on-Year
- Average area value
- 510,714.00 £Increased by 18.39 %
- Est sale value
- 471,184.00 £Decreased by 17.99 %
- Average area rental value
- 1,850.00 £/moDecreased by 3.09 %
- Est letting value
- 1,202.00 £/moDecreased by 50.00 %
- Est rental Yield
- 4.35 %Decreased by 18.08 %
- Crime Rate
- 6.00 %Unchanged by 0.00 %
Agent Activity
Acorn created the listing.
Nearby Schools
| Name | Type | Ofsted | Distance |
|---|---|---|---|
| Northumberland Heath Children'S Centre | Children's Centre Linked Site | 0.32 KM | |
| Northumberland Heath Primary School | Academy Converter | Good | 0.41 KM |
| St Fidelis Catholic Primary School | Voluntary Aided School | Good | 0.58 KM |
| Barnehurst Junior School | Academy Converter | Outstanding | 1.01 KM |
| King Henry School | Academy Sponsor Led | 1.02 KM |
Images
Nearby Streets
| Name | Average Price | Average Sqft | Distance |
|---|---|---|---|
| Carlton Road | £ 250,000 | 0 | 0.00 KM |
| Dickens Close | £ 480,000 | 0 | 0.00 KM |
| St. Paul's Road | £ 425,000 | 0 | 0.00 KM |
| Chapman Road | £ 0 | 0 | 0.00 KM |
| Brook Street | £ 230,000 | 0 | 0.00 KM |
Nearby Transport
| Name | NLC | TLC | Distance |
|---|---|---|---|
| Barnehurst | 5089 | BNH | 1.40 KM |
| Belvedere | 5092 | BVD | 1.75 KM |
| Erith | 5104 | ERH | 2.00 KM |
| Bexleyheath | 5094 | BXH | 3.04 KM |
| Slade Green | 5154 | SGR | 3.80 KM |
Nearby Listings
| Address | Price | Type | Score | Distance |
|---|---|---|---|---|
| Collindale Avenue, Erith | £ 425,000 | BUY | 6 / 10 | 0.00 KM |
| Collindale Avenue, Northumberland Heath, Kent, DA8 | £ 425,000 | BUY | 7 / 10 | 0.02 KM |
| Collindale Avenue, Northumberland Heath, DA8 | £ 475,000 | BUY | 7 / 10 | 0.04 KM |
| Collindale Avenue, Northumberland Heath, Erith, DA8 | £ 425,000 | BUY | 5 / 10 | 0.04 KM |
| Collindale Avenue, Erith, Kent, DA8 | £ 450,000 | BUY | 6 / 10 | 0.04 KM |
Nearby Properties
| Address | Price | Distance |
|---|---|---|
| 47 Collindale Avenue | £ 215,000 | 0.03 KM |
| 39 Collindale Avenue | £ 162,500 | 0.03 KM |
| 27 Collindale Avenue | £ 300,000 | 0.03 KM |
| 23 Collindale Avenue | £ 426,000 | 0.03 KM |
| 51 Collindale Avenue | £ 142,700 | 0.03 KM |