Robinson Reade says ..
With its cul-de-sac setting, conservatory, private garden and convenient location, this link-detached home is a superb opportunity to enjoy everything Warsash has to offer.
Property Oracle says ..
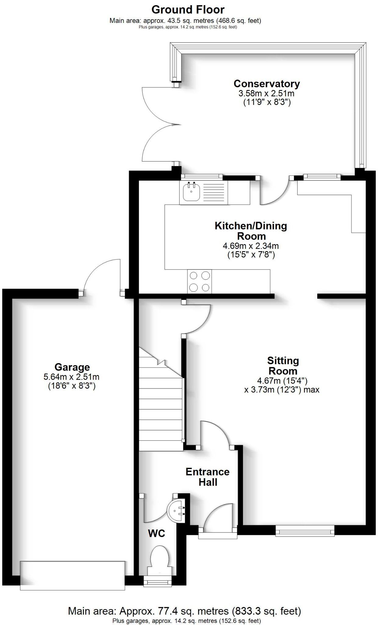
This is a three-bedroom link detached house in Warsash, Hampshire. The property is in a good location, close to local amenities and transportation links. The house appears to be in good condition, with a well-maintained interior and exterior. It benefits from a garage, a conservatory and a good-sized garden. The property is listed at £385,000, which seems reasonable for the location, condition and size of the property. The house would make an ideal family home.
Therefore, we give this property 7 / 10. *Disclaimer: This is our option and does constitute a recommendation or financial advice. Do your own research. *
- Price
- 7
- Condition
- 7
- Location
- 7
- Land
- 7
- Bedrooms
- 3
- Bathrooms
- 1
The heatmap indicates the level of crime in the area. The color of the heatmap indicates the crime severity and recency.
Metrics Year-on-Year
- Average area value
- 691,555.00 £Increased by 13.60 %
- Average area rental value
- 1,511.00 £/moDecreased by 13.06 %
- Est rental Yield
- 2.62 %Decreased by 23.62 %
- Crime Rate
- 7.00 %Unchanged by 0.00 %
Agent Activity
Robinson Reade created the listing.
Nearby Schools
| Name | Type | Ofsted | Distance |
|---|---|---|---|
| Locks Heath Junior School | Community School | Good | 0.96 KM |
| Locks Heath Infant School | Community School | Outstanding | 1.07 KM |
| Sovereign And Strawberry Meadow Children'S Centre | Children's Centre | 1.27 KM | |
| Hook-With-Warsash Church Of England Academy | Academy Converter | Good | 1.39 KM |
| Brookfield Community School | Community School | Good | 1.40 KM |
Images
Nearby Streets
| Name | Average Price | Average Sqft | Distance |
|---|---|---|---|
| Highfields | £ 775,000 | 0 | 0.00 KM |
| Dibles Road (East) | £ 491,667 | 0 | 0.00 KM |
| Sorrel Close | £ 0 | 0 | 0.00 KM |
| Greenaway Lane | £ 685,000 | 0 | 0.00 KM |
| Dibles Road (West) | £ 550,000 | 0 | 0.00 KM |
Nearby Transport
| Name | NLC | TLC | Distance |
|---|---|---|---|
| Swanwick | 5920 | SNW | 3.10 KM |
| Bursledon | 5927 | BUO | 4.18 KM |
| Hamble | 5947 | HME | 5.51 KM |
| Netley | 5911 | NTL | 6.97 KM |
| Botley | 5894 | BOE | 7.48 KM |
Nearby Listings
| Address | Price | Type | Score | Distance |
|---|---|---|---|---|
| Argosy Close, Warsash | £ 385,000 | BUY | 7 / 10 | 0.00 KM |
| Argosy Close, Warsash | £ 350,000 | BUY | 7 / 10 | 0.01 KM |
| Argosy Close, Warsash, Southampton, Hampshire, SO31 | £ 350,000 | BUY | 6 / 10 | 0.03 KM |
| Argosy Close, Warsash, Southampton, Hampshire, SO31 | £ 350,000 | BUY | 7 / 10 | 0.03 KM |
| Argosy Close, Warsash | £ 350,000 | BUY | 6 / 10 | 0.03 KM |
Nearby Properties
| Address | Price | Distance |
|---|---|---|
| 10 Argosy Close | £ 169,000 | 0.03 KM |
| 6 Argosy Close | £ 155,000 | 0.03 KM |
| 1 Argosy Close | £ 187,000 | 0.03 KM |
| 15 Argosy Close | £ 332,500 | 0.03 KM |
| 12 Argosy Close | £ 275,000 | 0.03 KM |