RO
Greenway, Davis Estate, Kent, ME5
By Robinson Michael & Jackson
£ 340,000
Reviews
4 out of 5 stars
Robinson Michael & Jackson says ..
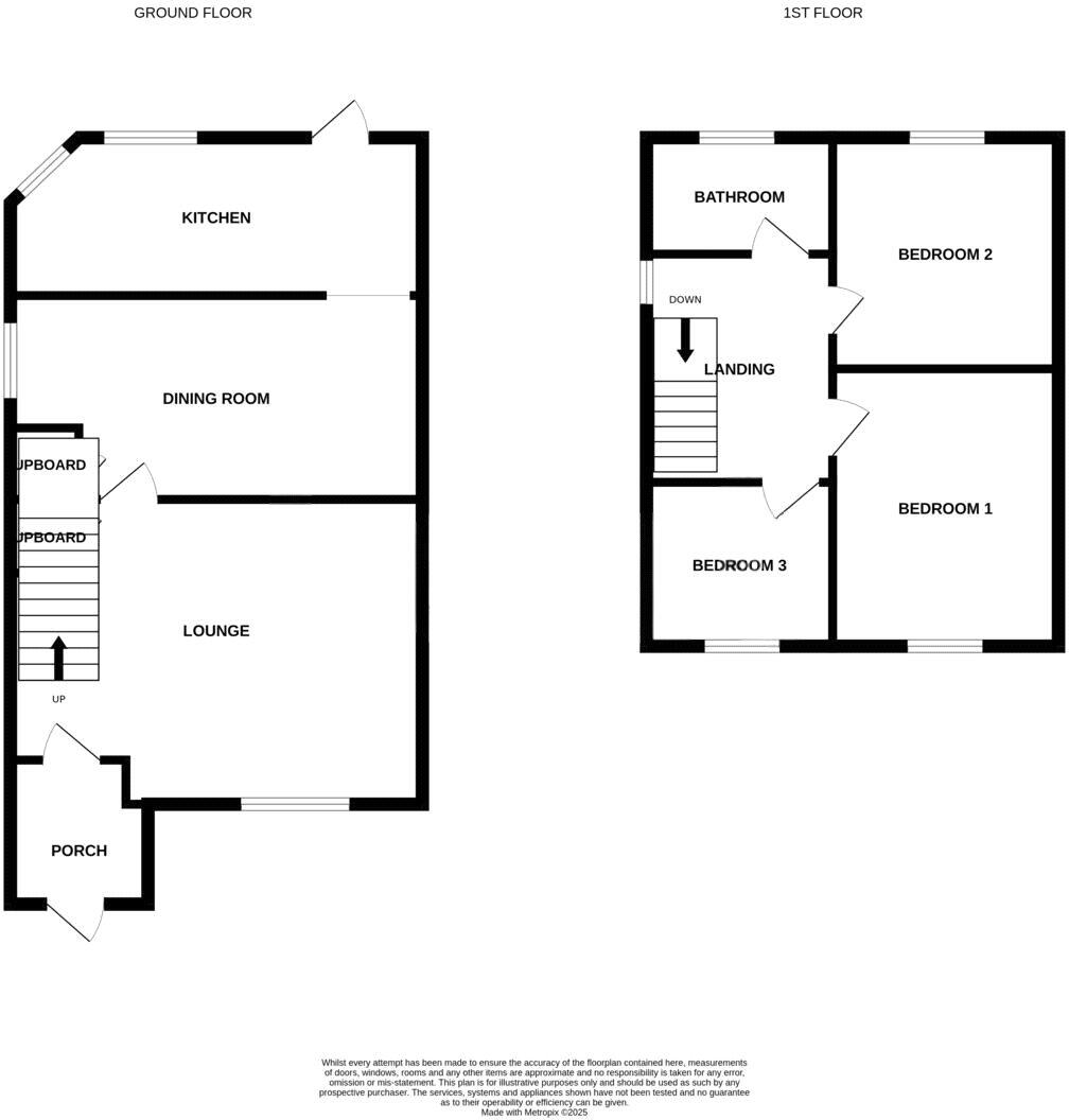
OIEO £340,000 – No Chain – Extended & Renovated Family Home Offered to the market with no onward chain, this beautifully updated three-bedroom home combines modern upgrades with spacious, well-planned accommodation perfect for contemporary family living.
Property Oracle says ..
Therefore, we give this property 8 / 10. *Disclaimer: This is our option and does constitute a recommendation or financial advice. Do your own research. *
- Price
- 9
- Condition
- 8
- Location
- 8
- Land
- 7
- Bedrooms
- 3
- Bathrooms
- 1
- Sqft (est)
- 802.00
The heatmap indicates the level of crime in the area. The color of the heatmap indicates the crime severity and recency.
Metrics Year-on-Year
- Average area value
- 394,944.00 £Increased by 20.71 %
- Est sale value
- 411,426.00 £Increased by 36.07 %
- Average area rental value
- 1,293.00 £/moDecreased by 22.11 %
- Est letting value
- 802.00 £/moUnchanged by 0.00 %
- Est rental Yield
- 3.93 %Decreased by 35.47 %
- Crime Rate
- 22.00 %Unchanged by 0.00 %
from 327,173.00 £
from 302,354.00 £
from 1,660.00 £/mo
from 802.00 £/mo
from 6.09 %
from 22.00 %
Agent Activity
Robinson Michael & Jackson marked this listing as sold.
Robinson Michael & Jackson created the listing.
Nearby Schools
| Name | Type | Ofsted | Distance |
|---|---|---|---|
| Horsted Infant School | Community School | Outstanding | 0.34 KM |
| Horsted Junior School | Community School | Good | 0.42 KM |
| Warren Wood Primary Academy | Academy Sponsor Led | Good | 1.27 KM |
| The Thomas Aveling School | Academy Converter | Good | 1.46 KM |
| Oaklands Children'S Centre | Children's Centre | 1.55 KM |
Images
Nearby Streets
| Name | Average Price | Average Sqft | Distance |
|---|---|---|---|
| Field Close | £ 290,000 | 0 | 0.00 KM |
| Hurst Close | £ 290,000 | 0 | 0.00 KM |
| Hurstwood | £ 301,667 | 0 | 0.00 KM |
| Aspen Way | £ 0 | 0 | 0.00 KM |
| Leander Road | £ 0 | 0 | 0.00 KM |
Nearby Transport
| Name | NLC | TLC | Distance |
|---|---|---|---|
| Chatham | 5199 | CTM | 3.31 KM |
| Rochester | 5203 | RTR | 3.63 KM |
| Strood (Kent) | 5191 | SOO | 4.96 KM |
| Cuxton | 5201 | CUX | 5.78 KM |
| Gillingham (Kent) | 5169 | GLM | 5.82 KM |
Nearby Listings
| Address | Price | Type | Score | Distance |
|---|---|---|---|---|
| Greenway, Davis Estate, Kent, ME5 | £ 340,000 | BUY | 8 / 10 | 0.00 KM |
| Greenway, The Davis Estate, Chatham, ME5 9UY | £ 325,000 | BUY | 7 / 10 | 0.00 KM |
| Vale Drive, Davis Estate, Chatham | £ 170,000 | BUY | 5 / 10 | 0.15 KM |
| Vale Drive, Chatham, Kent, ME5 | £ 180,000 | BUY | 7 / 10 | 0.17 KM |
| West Drive, Davis Estate, Chatham, ME5 | £ 355,000 | BUY | 6 / 10 | 0.20 KM |
Nearby Properties
| Address | Price | Distance |
|---|---|---|
| 4 Greenway | £ 150,000 | 0.01 KM |
| 3 Greenway | £ 290,000 | 0.01 KM |
| 18 Greenway | £ 179,000 | 0.01 KM |
| 8 Greenway | £ 258,000 | 0.01 KM |
| 6 Greenway | £ 170,000 | 0.01 KM |