Downham Road, Birkenhead
By Brennan Ayre O'Neill
£ 154,000
Reviews
2 out of 5 stars
Brennan Ayre O'Neill says ..
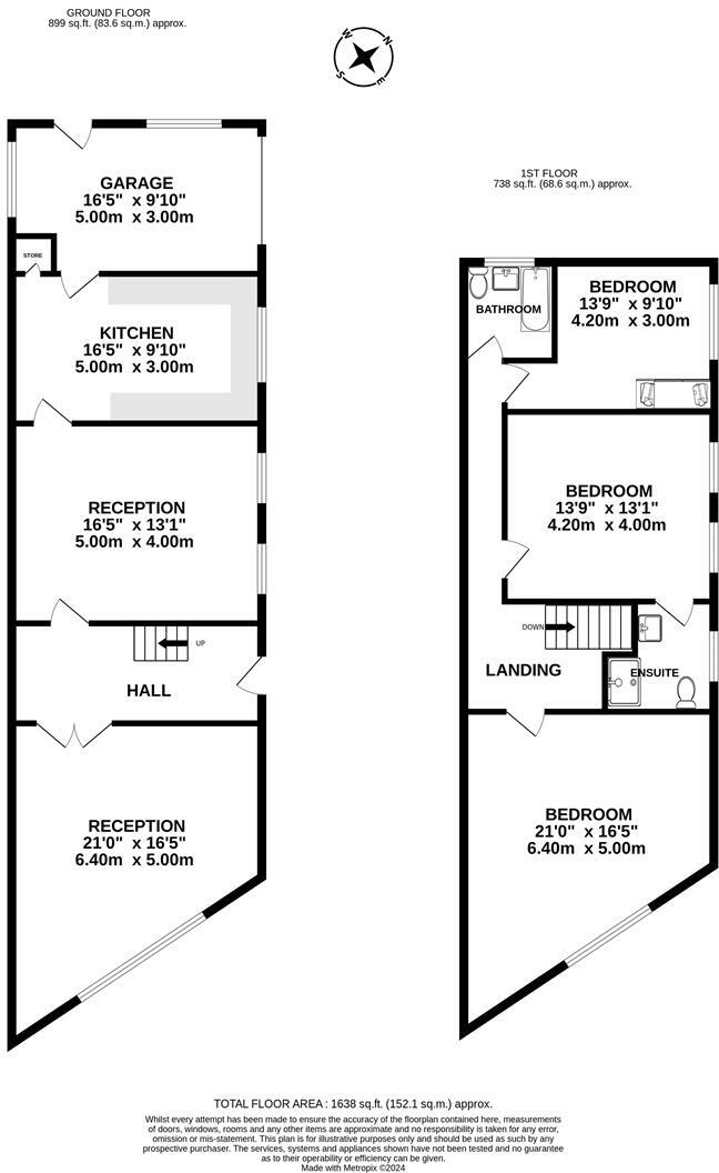
This house is surely one of the largest terraced homes in between 'The Parks' - one of the best views across Mersey Park, one of the best positions and with the best features also; maybe. For example you'll agree you'll be hard pressed to come by a home here that offers an INTEGRAL GARAGE, an EN ...
Property Oracle says ..
This three-bedroom, two-bathroom property located on Downham Road, Birkenhead, is listed at £154,000. The property benefits from an integral garage, a significant feature in this market. The interior reveals a mix of modern features, including new laminate flooring throughout and a reasonably updated kitchen, while other aspects, such as the garage, indicate a need for some attention. The property’s proximity to schools like Well Lane Primary School, along with several Merseyrail stations, makes it a convenient choice for families. The view overlooking Mersey Park is a notable positive feature. However, detailed information on plot size and the immediate neighborhood is lacking, which would provide a more thorough evaluation of the property’s potential and the price. Further, the overall condition is not uniform, with some areas showing good renovations and others in need of attention. This property could appeal to first-time buyers, families or investors seeking a property with some upside in a reasonably good location. However, the lack of information on plot size and further details of condition prevents a conclusive assessment of the overall value for money.
Therefore, we give this property 5 / 10. *Disclaimer: This is our option and does constitute a recommendation or financial advice. Do your own research. *
- Price
- 7
- Condition
- 6
- Location
- 7
- Land
- 2
- Bedrooms
- 3
- Bathrooms
- 2
- Sqft (est)
- 1,638.00
The heatmap indicates the level of crime in the area. The color of the heatmap indicates the crime severity and recency.
Metrics Year-on-Year
- Average area value
- 248,333.00 £Increased by 73.97 %
- Est sale value
- 335,790.00 £Increased by 22.02 %
- Average area rental value
- 733.00 £/moIncreased by 10.39 %
- Est letting value
- 0.00 £/mo
- Est rental Yield
- 3.54 %Decreased by 36.56 %
- Crime Rate
- 8.00 %Unchanged by 0.00 %
Agent Activity
Brennan Ayre O'Neill created the listing.
Nearby Schools
| Name | Type | Ofsted | Distance |
|---|---|---|---|
| Well Lane Primary School | Community School | Good | 0.25 KM |
| Mersey Park Primary School | Community School | Outstanding | 0.61 KM |
| Rock Ferry Primary School | Community School | Good | 1.01 KM |
| Rock Ferry Children'S Centre | Children's Centre | 1.08 KM | |
| Bedford Drive Primary School | Community School | Good | 1.10 KM |
Images
Nearby Streets
| Name | Average Price | Average Sqft | Distance |
|---|---|---|---|
| Well Lane | £ 0 | 0 | 0.00 KM |
| Orchard Court | £ 130,000 | 0 | 0.00 KM |
| Fairfax Road | £ 65,000 | 0 | 0.00 KM |
| Pembroke Court | £ 75,000 | 0 | 0.00 KM |
| "Monkey Steps" | £ 90,000 | 0 | 0.00 KM |
Nearby Transport
| Name | NLC | TLC | Distance |
|---|---|---|---|
| Green Lane | 2218 | GNL | 0.65 KM |
| Rock Ferry | 2189 | RFY | 1.02 KM |
| Birkenhead Central | 2217 | BKC | 1.20 KM |
| Conway Park | 3624 | CNP | 1.79 KM |
| Birkenhead Hamilton Square | 2219 | BKQ | 1.96 KM |
Nearby Listings
| Address | Price | Type | Score | Distance |
|---|---|---|---|---|
| Downham Road, Birkenhead | £ 154,000 | BUY | 5 / 10 | 0.00 KM |
| Park Road, Tranmere, Merseyside, CH42 | £ 100,000 | BUY | 4 / 10 | 0.05 KM |
| Downham Road, Birkenhead | £ 180,000 | BUY | 6 / 10 | 0.09 KM |
| Parkside Road, Birkenhead, Merseyside, CH42 | £ 55,000 | BUY | 5 / 10 | 0.10 KM |
| Moorland Road, Birkenhead, Wirral, Merseyside, CH42 | £ 94,950 | BUY | 5 / 10 | 0.11 KM |
Nearby Properties
| Address | Price | Distance |
|---|---|---|
| 88 Park Road | £ 75,000 | 0.07 KM |
| 54 Park Road | £ 81,000 | 0.07 KM |
| 44 Park Road | £ 62,500 | 0.07 KM |
| 76 Park Road | £ 61,450 | 0.07 KM |
| 64 Park Road | £ 66,500 | 0.07 KM |