Manor Road North, Esher
HJ

Manor Road North, Esher

By HJC

£ 1,300,000

Reviews

3 out of 5 stars

HJC says ..

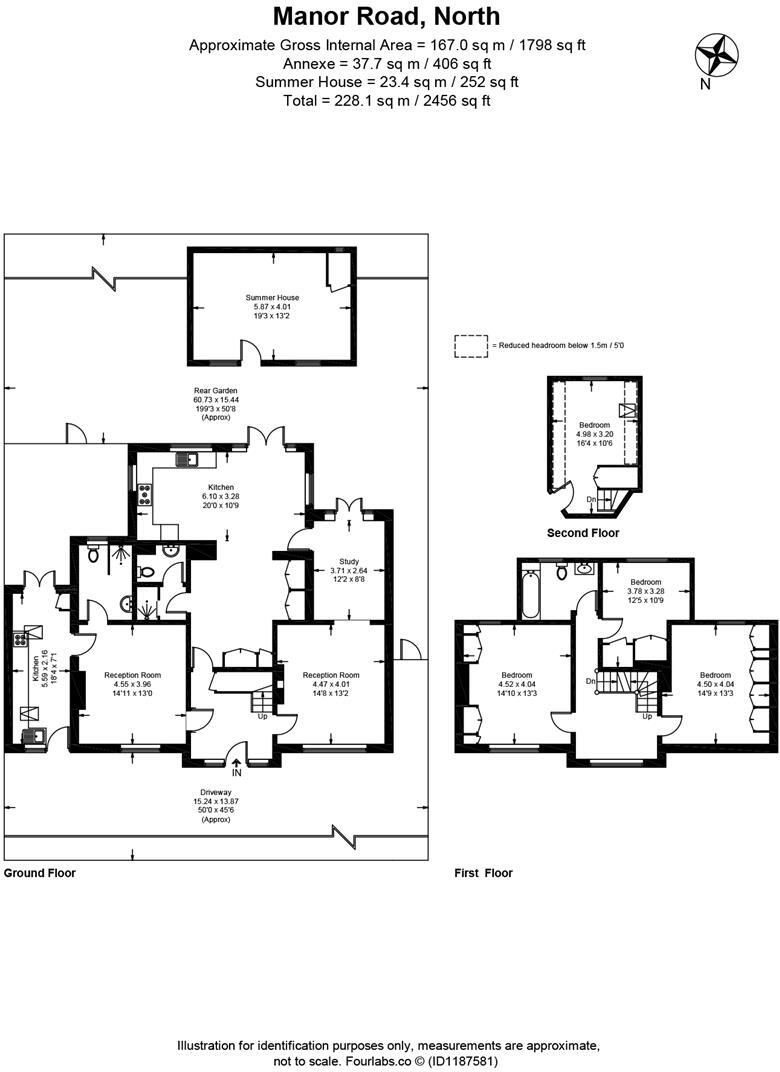
This detached 4 bedroom family home, set on a plot in excess of 1/3 of an acre in a prime Hinchley Wood location, is in need of a full schedule of modernisation and could be improved and extended to make it your own. Spread over 3 floors: downstairs comprises front reception room with original wo...

Property Oracle says ..

This property is located on Manor Road North in Esher, Surrey. The area benefits from excellent transport links with Hinchley Wood train station being approximately 0.47km away, providing convenient access to London Waterloo. There are also several highly-rated schools within a reasonable distance, including Hinchley Wood School and Hinchley Wood Primary School. The property itself is a four-bedroom, three-bathroom detached house with a substantial plot size of 2,456 sqft. The house shows signs of needing some modernisation and updating, as seen in the provided photographs. The flooring, walls, and some fixtures appear dated. The kitchen and bathrooms seem functional but could benefit from a refresh. The garden is a significant feature, offering ample space for outdoor activities and entertaining. The list price of £1,300,000 is higher than the average price of £917,665 for the area, however, the larger plot size and detached nature of the property could justify this to some extent. Considering the need for modernisation, the price may be slightly high, but a buyer could potentially add value through renovations.

Therefore, we give this property 7 / 10. *Disclaimer: This is our option and does constitute a recommendation or financial advice. Do your own research. *

Price
7
Condition
6
Location
8
Land
9
Bedrooms
4
Bathrooms
3
Sqft (est)
811.00
Lot (est)
2,456.00

The heatmap indicates the level of crime in the area. The color of the heatmap indicates the crime severity and recency.

Metrics Year-on-Year

Average area value
1,013,333.00 £
Decreased by 0.35 %
from 1,016,913.00 £
Est sale value
969,956.00 £
Increased by 88.94 %
from 513,363.00 £
Average area rental value
1,500.00 £/mo
Decreased by 52.35 %
from 3,148.00 £/mo
Est letting value
811.00 £/mo
Unchanged by 0.00 %
from 811.00 £/mo
Est rental Yield
1.78 %
Decreased by 52.02 %
from 3.71 %
Crime Rate
4.00 %
Unchanged by 0.00 %
from 4.00 %

Agent Activity

  • HJC created the listing.

Nearby Schools

NameTypeOfstedDistance
Hinchley Wood SchoolAcademy Converter0.56 KM
Hinchley Wood Primary SchoolAcademy Converter0.70 KM
The Ditton'S Sure Start Children'S CentreChildren's Centre1.20 KM
Weston Green Preparatory SchoolOther Independent School1.32 KM
Esher Sixth Form CollegeAcademy 16-19 ConverterOutstanding1.48 KM

Images

68-manor-road-north-0058.jpg 68-manor-road-north-0063.jpg 68-manor-road-north-0043.jpg 68-manor-road-north-0024.jpg 68-manor-road-north-0021.jpg 68-manor-road-north-0025.jpg 68-manor-road-north-0032.jpg 68-manor-road-north-0028.jpg 68-manor-road-north-0031.jpg 68-manor-road-north-0051.jpg 68-manor-road-north-0013.jpg 68-manor-road-north-0020.jpg 68-manor-road-north-0015.jpg 68-manor-road-north-0018.jpg 68-manor-road-north-0011.jpg 68-manor-road-north-0010.jpg 68-manor-road-north-0040.jpg 68-manor-road-north-0062.jpg 68-manor-road-north-0046.jpg 68-manor-road-north-0049.jpg 68-manor-road-north-0003.jpg 68-manor-road-north-0001.jpg 68-manor-road-north-0005.jpg 68-manor-road-north-0006.jpg 68-manor-road-north-0007.jpg

Nearby Streets

NameAverage PriceAverage SqftDistance
Priors Wood £ 000.00 KM
Newlands Avenue £ 000.00 KM
Basing Close £ 1,650,00000.00 KM
Ashdown Place £ 000.00 KM
Long Acre Place £ 1,233,33300.00 KM

Nearby Transport

NameNLCTLCDistance
Hinchley Wood5591HYW0.47 KM
Thames Ditton5610THD1.39 KM
Esher5558ESH1.87 KM
Claygate5556CLG2.16 KM
Hampton Court5561HMC2.94 KM

Nearby Listings

AddressPriceTypeScoreDistance
Manor Road North, Esher £ 1,300,000BUY7 / 100.00 KM
Manor Road North, Esher, Surrey, KT10 £ 1,395,000BUY8 / 100.06 KM
Manor Road North, Esher, Surrey, KT10 £ 1,100,000BUY6 / 100.08 KM
Manor Road North, Hinchley Wood, KT10 £ 925,000BUYUnknown0.10 KM
Manor Road North, Hinchley Wood, Esher £ 180,000BUY7 / 100.12 KM

Nearby Properties

AddressPriceDistance
34 Manor Road North £ 565,0000.05 KM
48 Manor Road North £ 801,0000.05 KM
32 Manor Road North £ 1,217,0000.05 KM
76 Manor Road North £ 765,0000.05 KM
36 Manor Road North £ 1,169,0000.06 KM